
I hjärtat av Norrtälje, precis vid hamnen, har ett nytt bostadsprojekt vuxit fram med 82 moderna bostadsrätter om 1–4 rum och kök. Här bor du med havet som granne, i ett levande kvarter med grönskande innergård, lekplats och ett gemensamt inglasat uterum – perfekt för sociala stunder året om. Just nu pågår vår tillfälliga kampanj där du har ett unikt tillfälle att förvärva din nya drömlägenhet med upp till 1 miljon kronor i rabatt. Dessutom får du själv välja tillträdesdag. Välkommen hem till Norrtälje Hamn!
Höst 2022
September 2023
Höst 2024
September 2024

Nu vågar du köpa innan du sålt! När du köper ditt nya hem i Norrtälje ger vi öppet köp. Du betalar bara handpenning, och om du inte får din gamla lägenhet såld, ja, då får du pengarna tillbaka. Börja drömma om ett nytt boende i Norrtälje hamn, ett vågstänk från havet.
Fullständiga villkor
Köper du en lägenhet nu får du 25% rabatt på valfri lägenhet. Gäller på priset i ekonomisk plan och rabatten är redan avdragen i lägenhetslistan. Kontakta mäklaren så berättar han mer.
Varmt välkommen på Riksbyggens stora visningsdag! Du hittar oss i vår nya fina visningslägenhet på Östra Rögårdsgatan 17. Passar inte tiden? Inga problem, kontakta vår mäklare för bokad visning.
Östra Rögårdsgatan 17



























Här bygger vi 82 bostadsrätter med närhet till havet. Lägenheterna är i storlekarna 34 - 105 kvm om 1-4 rum och kök. De flesta lägenheterna har balkong eller uteplats mot den grönskande innergården.
Läget i Norrtälje Hamn är strålande. Vårt nya kvarter växer fram med hem där havsbrisen alltid finns nära. Ett hemtrevligt boende med sammanlagt 82 ljusa och fina lägenheter. Här är du den första som flyttar in och behöver inte bekymra dig för renovering och reparationer.
Hitta ditt drömboende bland välplanerade ettor till femmor. Här bor du nära den härliga hamnpromenaden som kantas av uteserveringar, torghandel och en planerad pir.
Istället för att du ska behöva ta en massa beslut om kakelplattor, luckor, bänkskivor och knoppar har vi inrett de olika våningsplanen med tre olika inredningskoncept. Stilrent och genomtänkt, redan från början.
Varje våningsplan i Brf Havsbrisen får sin egen individuella köksdesign. Våra duktiga inredningsdesigners har valt ut och skapat unika kombinationer av fräscha köksluckor, stilfullt kakel, moderna beslag och slitstarka bänkskivor. Olika kombinationer på varje våning. Detta innebär att du kan hitta just den unika lägenhet som passar det du söker.
Som samhällsutvecklare bygger vi mer än bara bostäder. Vi utvecklar nya stadsdelar med människan i centrum och arbetar för ett gott liv — både i och mellan husen. På så sätt utvecklar vi socialt hållbara stadsdelar där människor vill bo, år ut och år in. Nu är vi stolta över att vara med i utvecklingen av Norrtälje Hamn, en marin stadsdel med närmare 2 000 bostäder.

Här kan du titta på huset och hitta din favoritlägenhet.
Objekt | Pris | Avgift | Antal rum | Area | Våning | Status | |
|---|---|---|---|---|---|---|---|
Objekt 0038 | 3 790 000 kr | 6 586 kr | 4 | 98 kvm | 1 av 5 | Ledig | |
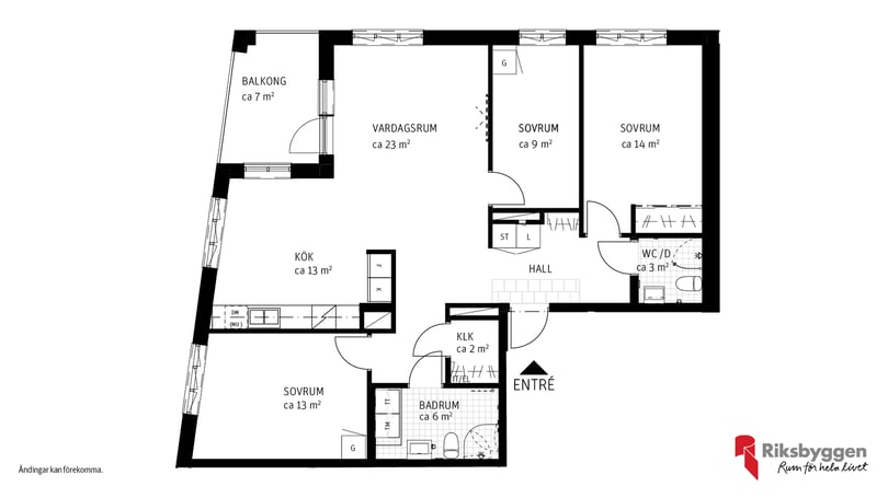
![]() ![]() ![]() ![]() ![]() ![]() ![]() ![]() ![]() ![]() ![]() ![]() ![]() ![]() ![]() ![]() ![]() ![]() ![]() ![]() ![]() ![]() ![]() ![]() ![]() ![]() ![]() 4:a med två rymliga sovrumHär bor du centralt alldeles vid havet i Norrtälje Hamn. En välplanerad 4:a med hörnbalkong i västerläge och tillgång till en fin, grönskande innergård med lekpark och härligt gemensamt inglasat uterum. Bostaden är genomtänkt i minsta detalj för att göra vardagen bekväm. Här kan du bo kvar länge, även om livet förändras. Med egen tvättmaskin, rymligt badrum och skjutdörrsgarderober finns här allt du kan önska. Läs mer om bostaden | |||||||
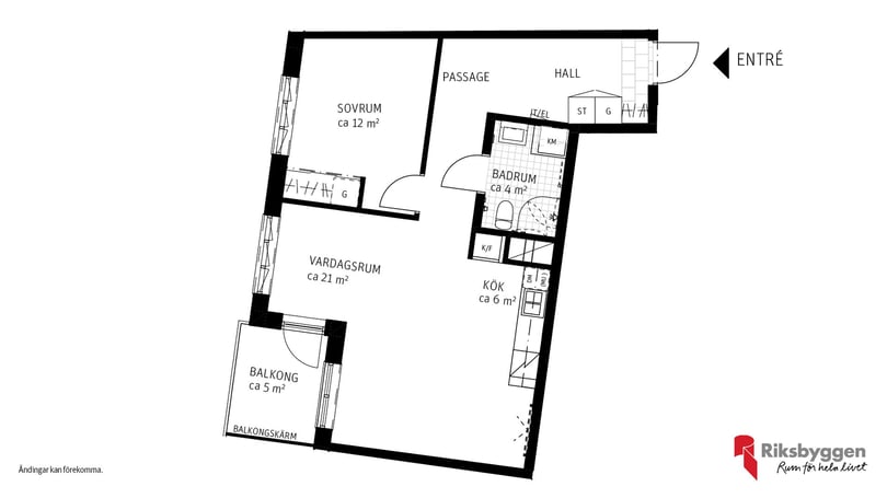
Objekt 0039 | 1 612 500 kr | 3 877 kr | 2 | 47 kvm | 2 av 5 | Ledig | |
![]() ![]() ![]() ![]() ![]() ![]() ![]() ![]() ![]() ![]() ![]() ![]() ![]() ![]() ![]() ![]() ![]() ![]() ![]() ![]() ![]() ![]() ![]() ![]() ![]() ![]() ![]() Välplanerad 2:aHär bor du centralt alldeles vid havet i Norrtälje Hamn. En välplanerad 2:a med balkong mot en fin, grönskande innergård med lekpark och härligt gemensamt inglasat uterum. Bostaden är genomtänkt i minsta detalj för att göra vardagen bekväm. Här kan du bo kvar länge, även om livet förändras. Med egen tvättmaskin, rymligt badrum och skjutdörrsgarderober finns här allt du kan önska. Läs mer om bostaden | |||||||
Objekt 0040 | 2 100 000 kr | 4 234 kr | 2 | 56 kvm | 2 av 5 | Ledig | |
![]() ![]() ![]() ![]() ![]() ![]() ![]() ![]() ![]() ![]() ![]() ![]() ![]() ![]() ![]() ![]() ![]() ![]() ![]() ![]() ![]() ![]() ![]() ![]() ![]() ![]() ![]() Välplanerad 2:a med balkongHär bor du centralt alldeles vid havet i Norrtälje Hamn. En välplanerad 2:a med balkong i västerläge och tillgång till en fin, grönskande innergård med lekpark och härligt gemensamt inglasat uterum. Bostaden är genomtänkt i minsta detalj för att göra vardagen bekväm. Här kan du bo kvar länge, även om livet förändras. Med egen tvättmaskin, rymligt badrum och skjutdörrsgarderober finns här allt du kan önska. Läs mer om bostaden | |||||||
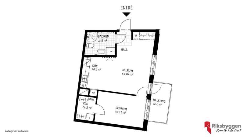
Objekt 0041 | 3 862 500 kr | 6 586 kr | 4 | 98 kvm | 2 av 5 | Ledig | |
![]() ![]() ![]() ![]() ![]() ![]() ![]() ![]() ![]() ![]() ![]() ![]() ![]() ![]() ![]() ![]() ![]() ![]() ![]() ![]() ![]() ![]() ![]() ![]() ![]() ![]() ![]() Stor 4:a med hörnbalkongHär bor du centralt alldeles vid havet i Norrtälje Hamn. En välplanerad 4:a med hörnbalkong i västerläge och tillgång till en fin, grönskande innergård med lekpark och härligt gemensamt inglasat uterum. Bostaden är genomtänkt i minsta detalj för att göra vardagen bekväm. Här kan du bo kvar länge, även om livet förändras. Med egen tvättmaskin, rymligt badrum och skjutdörrsgarderober finns här allt du kan önska. Läs mer om bostaden | |||||||
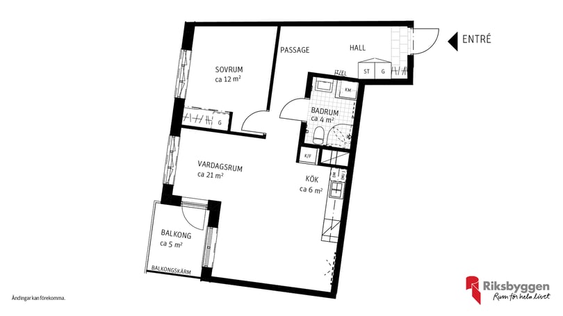
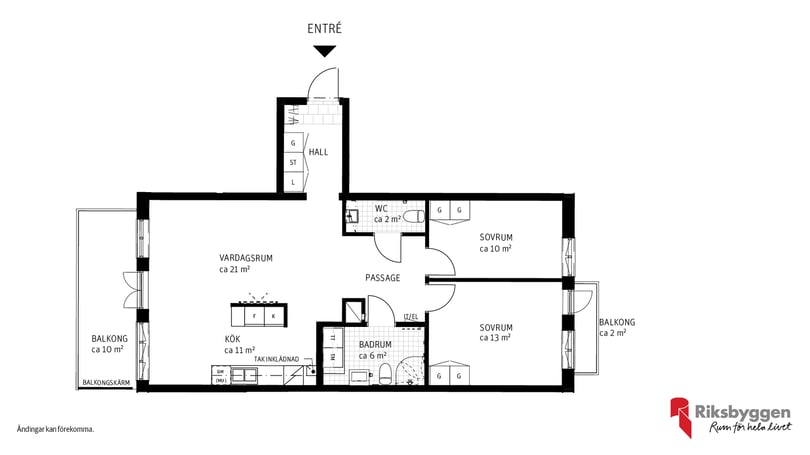
Objekt 0042 | 2 996 250 kr | 5 568 kr | 3 | 77 kvm | 2 av 5 | Ledig | |
![]() ![]() ![]() ![]() ![]() ![]() ![]() ![]() ![]() ![]() ![]() ![]() ![]() ![]() ![]() ![]() ![]() ![]() ![]() ![]() ![]() ![]() ![]() ![]() ![]() ![]() ![]() 3:a med två balkongerHär bor du centralt alldeles vid havet i Norrtälje Hamn. En välplanerad 3:a med 2 balkonger där den ena balkongen är mot en fin, grönskande innergård med lekpark och härligt gemensamt inglasat uterum. Bostaden är genomtänkt i minsta detalj för att göra vardagen bekväm. Här kan du bo kvar länge, även om livet förändras. Med egen tvättmaskin, rymligt badrum och skjutdörrsgarderober finns här allt du kan önska. Läs mer om bostaden | |||||||
Objekt 0043 | 1 687 500 kr | 3 877 kr | 2 | 47 kvm | 3 av 5 | Ledig | |
![]() ![]() ![]() ![]() ![]() ![]() ![]() ![]() ![]() ![]() ![]() ![]() ![]() ![]() ![]() ![]() ![]() ![]() ![]() ![]() ![]() ![]() ![]() ![]() ![]() ![]() ![]() 2:a med bra förvaringHär bor du centralt alldeles vid havet i Norrtälje Hamn. En välplanerad 2:a med balkong mot en fin, grönskande innergård med lekpark och härligt gemensamt inglasat uterum. Bostaden är genomtänkt i minsta detalj för att göra vardagen bekväm. Här kan du bo kvar länge, även om livet förändras. Med egen tvättmaskin, rymligt badrum och skjutdörrsgarderober finns här allt du kan önska. Läs mer om bostaden | |||||||
Objekt 0044 | 2 231 250 kr | 4 234 kr | 2 | 56 kvm | 3 av 5 | Ledig | |
![]() ![]() ![]() ![]() ![]() ![]() ![]() ![]() ![]() ![]() ![]() ![]() ![]() ![]() ![]() ![]() ![]() ![]() ![]() ![]() ![]() ![]() ![]() ![]() ![]() ![]() ![]() 2:a med rymligt sovrumHär bor du centralt alldeles vid havet i Norrtälje Hamn. En välplanerad 2:a med balkong i västerläge och tillgång till en fin, grönskande innergård med lekpark och härligt gemensamt inglasat uterum. Bostaden är genomtänkt i minsta detalj för att göra vardagen bekväm. Här kan du bo kvar länge, även om livet förändras. Med egen tvättmaskin, rymligt badrum och skjutdörrsgarderober finns här allt du kan önska. Läs mer om bostaden | |||||||
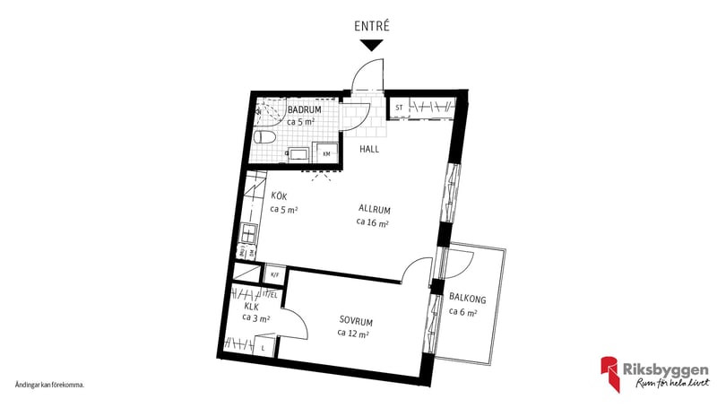
Objekt 0045 | 3 937 500 kr | 6 586 kr | 4 | 98 kvm | 3 av 5 | Ledig | |
![]() ![]() ![]() ![]() ![]() ![]() ![]() ![]() ![]() ![]() ![]() ![]() ![]() ![]() ![]() ![]() ![]() ![]() ![]() ![]() ![]() ![]() ![]() ![]() ![]() ![]() ![]() Stor 4:a med kök i vinkelHär bor du centralt alldeles vid havet i Norrtälje Hamn. En välplanerad 4:a med hörnbalkong i västerläge och tillgång till en fin, grönskande innergård med lekpark och härligt gemensamt inglasat uterum. Bostaden är genomtänkt i minsta detalj för att göra vardagen bekväm. Här kan du bo kvar länge, även om livet förändras. Med egen tvättmaskin, rymligt badrum och skjutdörrsgarderober finns här allt du kan önska. Läs mer om bostaden | |||||||
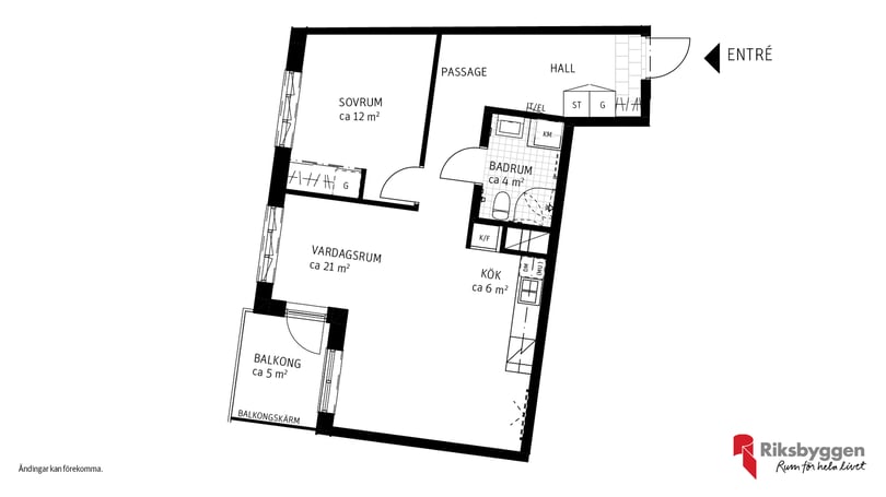
Objekt 0046 | 3 037 500 kr | 5 568 kr | 3 | 77 kvm | 3 av 5 | Ledig | |
![]() ![]() ![]() ![]() ![]() ![]() ![]() ![]() ![]() ![]() ![]() ![]() ![]() ![]() ![]() ![]() ![]() ![]() ![]() ![]() ![]() ![]() ![]() ![]() ![]() ![]() ![]() 3:a med en stor och en liten balkongHär bor du centralt alldeles vid havet i Norrtälje Hamn. En välplanerad 3:a med 2 balkonger där den ena balkongen är mot en fin, grönskande innergård med lekpark och härligt gemensamt inglasat uterum. Bostaden är genomtänkt i minsta detalj för att göra vardagen bekväm. Här kan du bo kvar länge, även om livet förändras. Med egen tvättmaskin, rymligt badrum och skjutdörrsgarderober finns här allt du kan önska. Läs mer om bostaden | |||||||
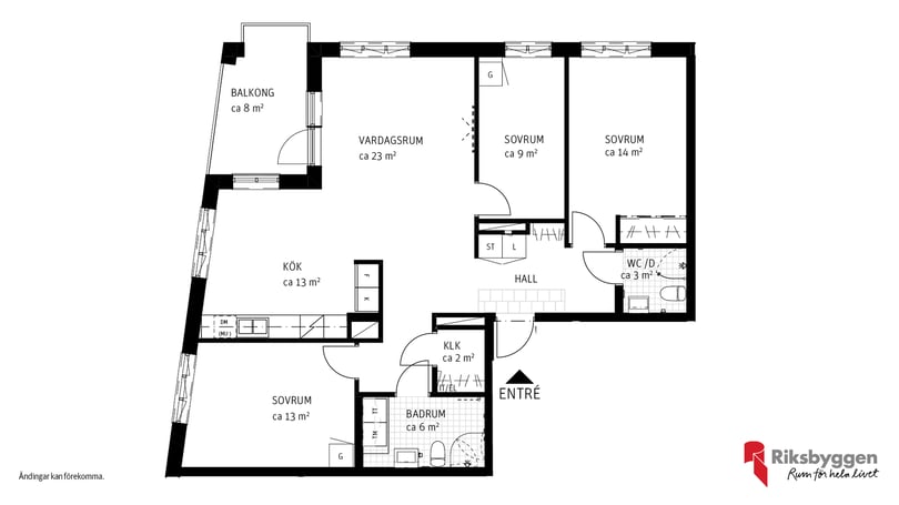
Objekt 0047 | 4 012 500 kr | 6 586 kr | 4 | 98 kvm | 4 av 5 | Ledig | |
![]() ![]() ![]() ![]() ![]() ![]() ![]() ![]() ![]() ![]() ![]() ![]() ![]() ![]() ![]() ![]() ![]() ![]() ![]() ![]() ![]() ![]() ![]() ![]() ![]() ![]() ![]() Välplanerad 4:aHär bor du centralt alldeles vid havet i Norrtälje Hamn. En välplanerad 4:a med hörnbalkong i västerläge och tillgång till en fin, grönskande innergård med lekpark och härligt gemensamt inglasat uterum. Bostaden är genomtänkt i minsta detalj för att göra vardagen bekväm. Här kan du bo kvar länge, även om livet förändras. Med egen tvättmaskin, rymligt badrum och skjutdörrsgarderober finns här allt du kan önska. Läs mer om bostaden | |||||||
I Brf Havsbrisen bor du nära den fina hamnpromenaden i Norrtälje. Den kantas av uteserveringar, torghandel och det planeras för en pir med möjlighet till bad i stan. Hamnpromenaden är Norrtäljebornas nya soliga vardagsrum – en självklar mötesplats i Norrtälje.