
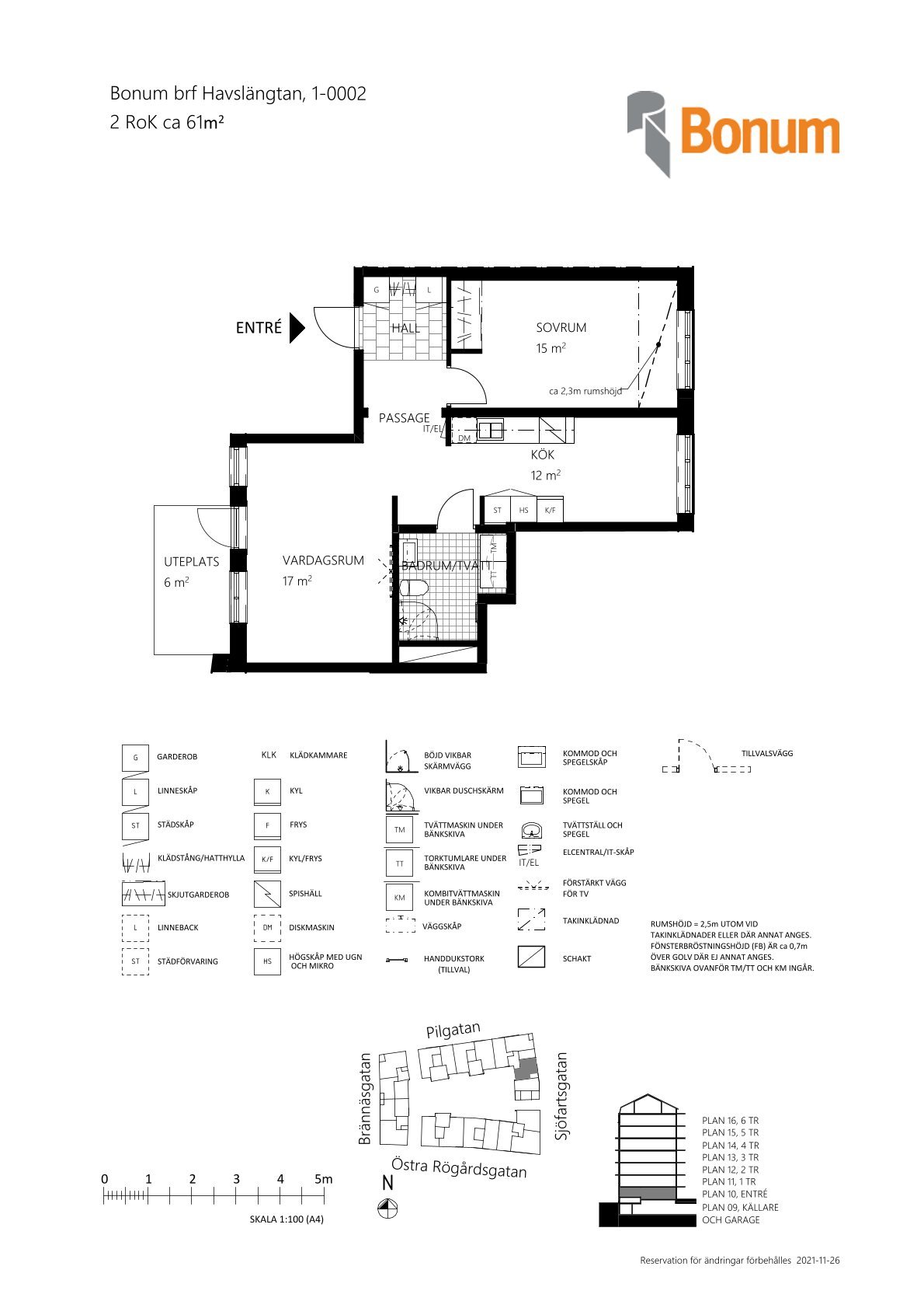
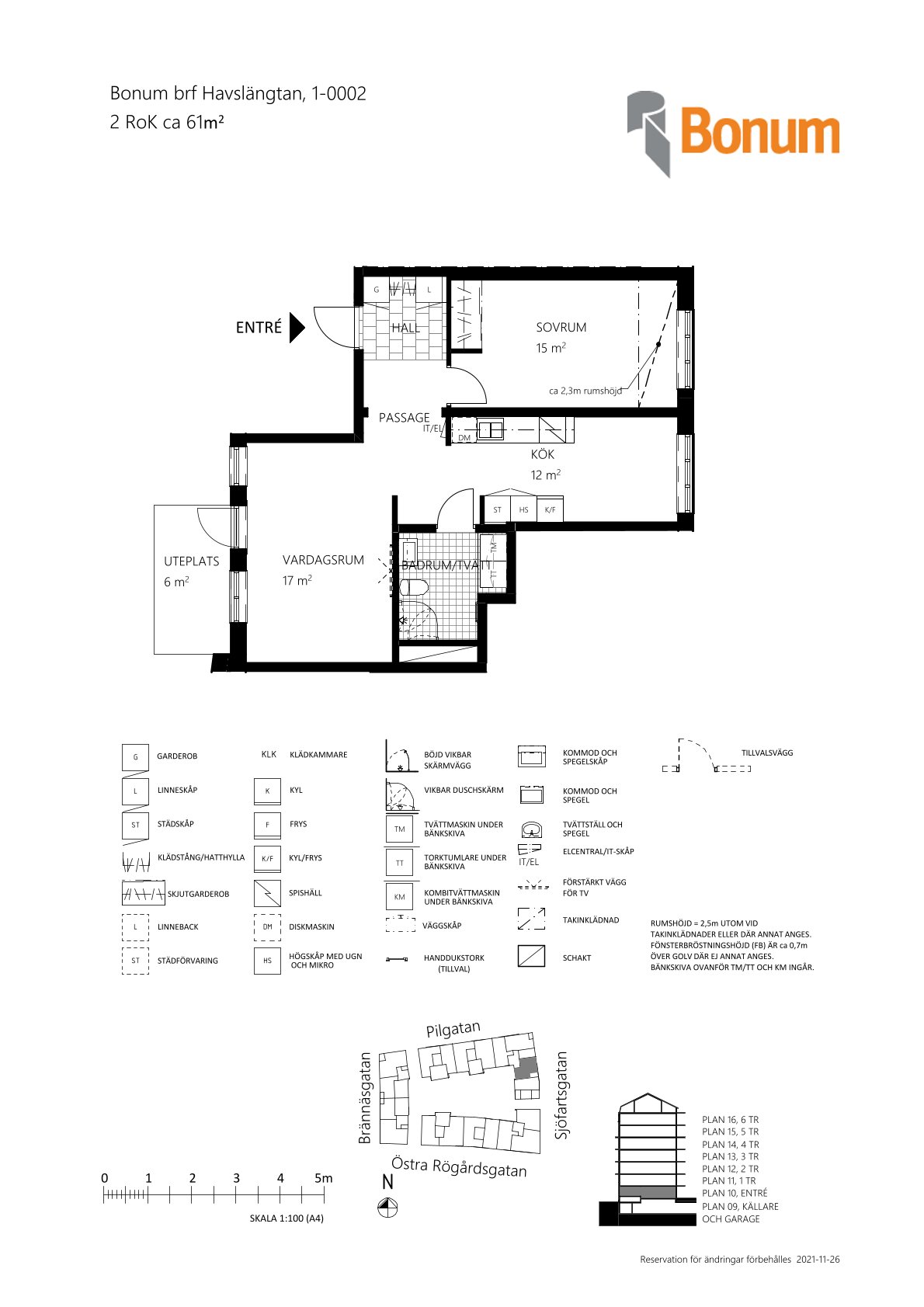
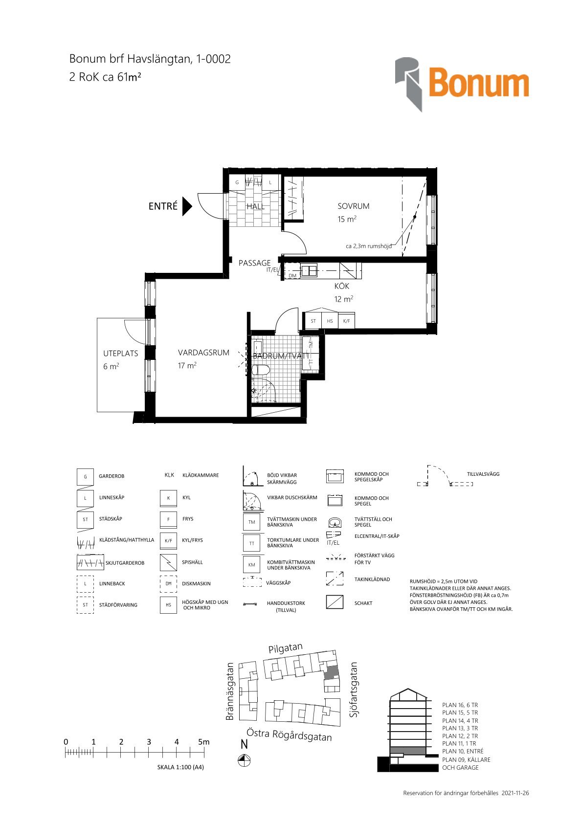
Välkommen till din nya verklighet ett vågstänk från havet i Norrtälje Hamn. En välplanerad 2:a nära den härliga hamnpromenaden som kantas av uteserveringar, torghandel och en planerad pir med möjlighet till bad i stan. Bostaden är genomtänkt i minsta detalj för att göra vardagen bekväm. Här kan du bo kvar länge, även om livet förändras. Lägenheten har egen tvättmaskin och torktumlare, dubbla toaletter samt skjutdörrsgarderober, allt för din bekvämlighet.
Mars 2022
Januari 2024

Nu vågar du köpa innan du sålt! När du köper ditt nya hem i Norrtälje ger vi öppet köp. Du betalar bara handpenning, och om du inte får din gamla lägenhet såld, ja, då får du pengarna tillbaka. Börja drömma om ett nytt boende i Norrtälje Hamn, ett vågstänk från havet.
För fullständiga villkor
Köper du en lägenhet nu får du 25% rabatt på valfri lägenhet. Gäller på priset i ekonomisk plan och rabatten är redan avdragen i lägenhetslistan. Kontakta mäklaren så berättar han mer.
Vänligen kontakta mäklare för att boka en privat visning.






På strålande läge i Norrtälje Hamn ligger vårt nya kvarter med hem som sätter blå kant på tillvaron. Ett tryggt och hemtrevligt boende med sammanlagt 48 ljusa lägenheter. Bostäderna är genomtänkta i minsta detalj för att göra vardagen bekväm. Här kan du bo kvar länge, även om livet förändras.
Bonum är Riksbyggens koncept för seniorbostäder för dig som fyllt 55 år. I Bonum bor du i ett välplanerat och centralt hus med närhet till butiker, service och kommunikationer. Allt för att din vardag ska bli så enkel och bekväm som möjligt. Vi ser också till att det finns goda parkeringsmöjligheter för dig som har bil.
När föreningen anordnar gemensamma aktiviteter eller när du vill ha en större privat tillställning finns en samlingslokal på markplan. För gäster på besök finns det en övernattningslägenhet och ofta finns det även en trevlig gård där man kan umgås.
Vitmålade väggar och tak.
Golven har 3-stav vitpigmenterad ekparkett, i hallen tillsammans med ljusgrå klinker.
Vit sockellist av trä.
Fönsterbänk i natursten i vardagsrum & kök.
Rostfri kyl, rostfri frys, alt. kombinerad rostfri kyl/frys, bestäms genom storlek på kök.
Induktionshäll.
Rostfri inbyggnadsugn & inbyggnadsmicro.
Integrerad diskmaskin.
Köksfläkt Pandora Green Flow.
Skåpsnickerier Vedum Maja vit.
Handtag i krom, stående på luckor och liggande på lådor.
Lådhurtsar med fullutdrag och dämpning.
Dämpning på väggskåp.
Diskbänk i fullutdrag med kärl för källsortering.
Laminatbänkskiva.
Bänkbelysning under väggskåp.
Ljusgrå klinker.
Kakel vit/grå blank.
Vit slät innerdörr.
Golvmonterad förhöjd WC-stol.
Halvrunt duschhörn.
Stödhandtag (levereras löst)
Vit kommod, handtag i krom.
Vitt spegelskåp med belysning.
Tvättställsblandare.
Väggskåp, Maja vit.
Handtag i krom.
Belysning under väggskåp.
Laminatbänkskiva monterad ovan maskiner.
Toalettpappershållare och handdukshängare i självhäftande krom.
Takbelysning Classic glob.
Tvättmaskin och torktumlare alt. kombimaskin, bestäms genom storlek på lägenhet.
Hitta ditt drömboende bland välplanerade tvåor och treor om 47-78 kvm med balkong mot den fina innergården och liten balkong eller fransk balkong mot gatan samt rymliga fyror med härligt gavelläge i hörnet av Sjöfartsgatan och Östra Rögårdsgatan.
I Bonum Brf Havslängtan bor du nära den härliga hamnpromenaden som kantas av uteserveringar, torghandel och en planerad pir med möjlighet till bad i stan. Det är Norrtäljebornas nya soliga vardagsrum – en självklar mötesplats i Norrtälje.
På strålande läge i Norrtälje Hamn växer vårt nya kvarter fram med hem som sätter blå kant på tillvaron. Ett tryggt och hemtrevligt boende med sammanlagt 48 ljusa lägenheter. Bostäderna är genomtänkta i minsta detalj för att göra vardagen bekväm. Här kan du bo kvar länge, även om livet förändras.
Hitta ditt drömboende bland välplanerade tvåor och treor om 47—78 kvm med en balkong mot den fina innergården och en liten eller fransk balkong mot gatan samt rymliga fyror på 98 kvm. I Bonum Brf Havslängtan bor du nära den härliga hamnpromenaden som kantas av uteserveringar, torghandel och en planerad pir med möjlighet till bad i stan. Det är Norrtäljebornas nya soliga vardagsrum — en självklar mötesplats i Norrtälje.
Husen i kvarteret har ett varierat uttryck i färg, form, materialval, våningsantal och karaktär. Välvda portiker bjuder in till den grönskande och soliga innergården med växthus, cykelverkstad och lekplats. Gården har ett lugnt och skyddat läge och smyckas med konstnärliga inslag. Till huset hör även en samlingslokal med kök, bastu och loungerum där framtidens middagar och bokklubbar kan ta plats. Har du gäster på långväga besök får de självklart låna kvarterets övernattningslägenhet med uteplats mot gården.
Vi har valt att inreda ditt nya hem med vårt inredningskoncept Harmoni. Det är ett stilrent koncept som håller över tid. Du kan lugnt kombinera de olika alternativen inom stilen — alla val passar bra tillsammans. Känner du att ett kök med träkänsla, en ramlucka eller en färgad lucka känns mer intressant? Då kanske någon av våra tillvalsstilar faller dig bättre i smaken.
I kvarteret tar vi tillvara på naturens egna ekosystemtjänster och skapar nya. Vi ser framför oss hållbara lösningar som till exempel paneler med solceller, gröna tak, fågelholkar, humlebon och grönskande miljöer där insekter pollinerar, naturen blommar och människor trivs. Dessutom uppmuntrar vi till en hållbar livsstil genom att erbjuda bilpool, utlåning av lådcykel, samt ett återvinningsrum. Det ska vara enkelt och roligt att värna om miljön!
Som samhällsutvecklare bygger vi mer än bara bostäder. Vi utvecklar nya stadsdelar med människan i centrum och arbetar för ett gott liv — både i och mellan husen. På så sätt utvecklar vi socialt hållbara stadsdelar där människor vill bo, år ut och år in. Nu är vi stolta över att vara med i utvecklingen av Norrtälje Hamn, en marin stadsdel med närmare 2 000 bostäder.