
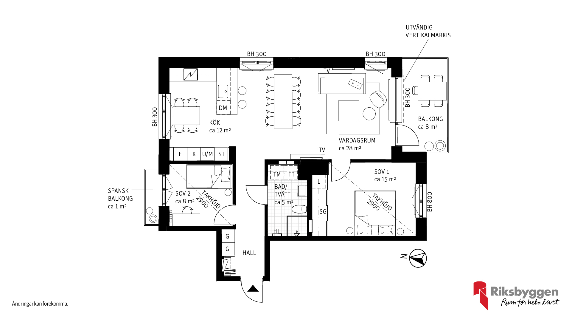
Rymlig 3:a med halvöppen planlösning mellan kök och vardagsrum. Två balkonger. Sovrum med skjutdörrsgarderob. Badrummet har tvättmaskin och torktumlare från Bosch. Kök från Vedum. Första Långgatan blir en vacker boulevard av kontinentalt snitt och Masthamnsgatan - eller Nya Lång som den också kallas - blir ett vänligt, grönt och soligt promenadstråk med uteserveringar i bästa läge.
Januari 2023
17 april
Oktober 2025
Vår-höst 2026

Nu kan du välja lägenehet i sista etappen i Brf Sydney. Du kan välja upp till 20 lägenheter. Senast måndag 16 februari kl. 23:59 vill vi ha dina val.







































Hall
2-stavs parkettgolv i vitpigmenterad ek, mattlackad. Sockel i vitpigmenterad ek. Målade väggar.
Garderober, Vedum. Skjutdörrsgarderober, Elfa.
Kök/matplats
2-stavs parkettgolv i vitpigmenterad ek, mattlackad. Sockel i vitpigmenterad ek. Målade väggar. Snickerier Vedum. Bänkskiva och stänkskydd mellan bänk och väggskåp.
Inbyggnadshäll induktion, inbyggnadsugn, inbyggnadsmikro, Integrerat kylskåp och frys, helintegrerad diskmaskin, Bosch. Vinkyl (ej lgh 6162 och lgh 3182).
Allrum/Vardagsrum
2-stavs parkettgolv i vitpigmenterad ek, mattlackad. Sockel i vitpigmenterad ek. Målade väggar.
Sovrum
2-stavs parkettgolv i vitpigmenterad ek, mattlackad. Vitpigmenterad eksockel. Målade väggar. Garderober, Vedum. Skjutdörrsgarderober, Elfa.
Klädkammare
2-stavs parkettgolv i vitpigmenterad ek, mattlackad.Sockel i vitpigmenterad ek. Målade gipsväggar. Garderober, Vedum. Skjutdörrsgarderober, Elfa.
Bad/WC/Dusch/Tvätt
Klinkergolv vit matt, 15x15 cm. Kakel vit matt, 30x60 cm på väggarna. Takbelysning infälld spotbelysning. Handdukstork. Komfortvärme golv (ej lgh 1 rum och kök). Duschväggar. WC-stol, golvmonterad. Tvättmaskin och torktumlare, Bosch.
Utförligare information finns i säljbroschyren.
Kvarteret blir en skön blandning av klassisk och modern arkitektur med fyra byggnader i varierande höjd runt föreningens grönskande, upphöjda och avskilda innergård.
Några av takvåningarna har egna terrasser, andra har en eller två balkonger. I bottenplan finns butiker, restauranger och en välsorterad livsmedelsbutik, praktiskt och bekvämt för vardagsbestyren.
Med sedumväxter och solceller på taken och cykelgarage i källaren gör vi det också enklare att leva lite mer hållbart, mitt i stan. Kort sagt, ett högkvalitativt boende i ett centralt och eftertraktat läge.
Varje våning i huset har sin egen unika färgsättning. Vi erbjuder fyra olika inredningskoncept; harmonisk linnebeige, sofistikerat betonggrått, klassiskt vitt samt valnöt/vitt-kombinationen för rooftop lägenheterna. Varje våningsplan har sin karaktäristiska färgidentitet som skapar en personlig känsla i varje hem.
Området runt Långgatorna, Järntorget och Linné är en färgstark och kontrastrik del av stan. Här finns ett aktivt kulturliv och mängder av restauranger, kaféer och butiker. När bebyggelsen på nya Masthuggkajen nu tar form innebär det att området utvidgas och att Göteborg tar ett stort steg närmare vattnet. Första Långgatan blir en vacker boulevard av kontinentalt snitt och Masthamnsgatan – eller Nya Långgatan som den också kallas — blir ett vänligt, grönt och soligt promenadstråk med uteserveringar i bästa läge.
En brokig blandning av spännande arkitektur, torg, gator och parker växer fram efterhand. Mitt i alltihopa bygger vi kvarteret Sydney, för dig som gillar att vara i händelsernas centrum och samtidigt uppskattar att bo i en lugn och skön miljö.
Vi har byggt bostäder i 80 år. Vi förstår hur viktigt det är att allt verkligen känns rätt när du flyttar in i din nya lägenhet. Vi vet också att behov och önskemål skiljer sig åt beroende på livssituation och personlig smak. Därför bjuder Brf Sydney på stor variation när det gäller både planlösningar och inredningsalternativ.
Alla lägenheter har modern köksutrustning, helkaklat badrum med tvättmaskin och torktumlare, samt egen uteplats, balkong eller terrass. Gemensamt är också de stora fönstren som ger ett härligt ljusinsläpp och de generösa sovrummen, med gott om utrymme för både säng och arbetshörna. Och självklart också valet av högkvalitativa material i allt från golv till tak. Brf Sydney bygger vi för att du ska trivas länge.
Om drömmen är en takvåning med privat terrass, så kan du förverkliga den i Brf Sydney. Här finns ett tiotal takvåningar i olika storlekar och utföranden. Vårt mest exklusiva alternativ är en fantastisk fyrarums penthousevåning på 145 kvm med 50 kvm egen terrass och två balkonger. Bor du här får du hela våningsplanet för dig själv, utan grannar vägg i vägg, och du kan ta hissen till din egen ytterdörr. Den stora, privata terrassen blir vad du gör den till; en plats för avkoppling, gemenskap eller gröna fingrar. Oavsett vilket kan du alltid njuta ostört av den fantastiska utsikten – soliga sommardagar eller stjärnklara vinternätter – terrassen bjuder in året runt.
Kvarteret Sydney är början på en omvandling av Göteborg, där staden utvecklas och vänder sig mot vattnet. Med en kombination av klassisk arkitektur och moderna lösningar överbryggar vi avståndet mellan långgatorna och älven, och skapar ett verkligt urbant kvarter där människor kan leva ett hållbart liv. Det är stort att få vara en del av detta, säger arkitekterna Lea-Vanessa Lohr och Johan Casselbrant.
Sjöfarten är en självklar del av Göteborgs historia. En historia där Masthuggskajen har spelat en helt avgörande roll. När den anlades i slutet av 1800-talet blev det möjligt för oceangående fartyg att lägga till inne i stan. Och sedan tog det fart. Härifrån skeppades allt från timmer till telefoner ut över världen. Den ökande fartygstrafiken fick inte bara handeln att blomstra. Den förde också med sig nya impulser, tankar och idéer som bidragit till att göra Göteborg till den utåtriktade, mångfasetterade stad den är idag.
För att hylla den öppna attityd som präglat och fortfarande präglar vår stad ger vi våra kvarter på Masthuggskajen namn efter några av de hamnstäder som fartygen härifrån besökte. Först ut är kvarteret Sydney, som nu blir en ny del av Göteborg. Välkommen Down Under!
Har du egen bil finns flera parkeringsgarage i närheten, och ytterligare några parkeringshus och garage kommer att byggas. Du kan också gå med i någon av de bilpooler som finns på Masthuggskajen; KINTO eller Masthuggets bilkooperativ.
Att bo mitt i stan med det mesta på nära avstånd gör cykeln till ett smidigt förstahandsalternativ. I Sydney gör vi det extra enkelt för dig som helst tar dig runt på två hjul. I källarplanet finns ett välutrustat cykelgarage som du når bekvämt via en cykelramp. Inget krångel i trappor och hissar! I garaget kan du både förvara din cykel på ett säkert sätt, fylla på luft och fixa en punktering. Här kommer det också att finnas lastcyklar att hyra. Dessutom byggs en ny station för hyrcyklar från Styr & Ställ bara ett par minuters promenad bort.
Väljer du att åka kollektivt finns spårvagnen alltid nära till hands. Sydney ligger mitt emellan knutpunkten Järntorget och hållplatsen vid Masthuggstorget.
I Sydney är det enkelt att både dela och byta grejer med varandra. I föreningens verkstads- och bytesrum finns verktyg, maskiner, stegar och annat som alla medlemmar kan låna. Här kan du också lämna saker som du inte behöver men som någon annan kan ha nytta av, och själv fynda bland sådant som andra har lämnat.
Sex av lägenheterna i Brf Sydney kommer att vara så kallade hyrköpslägenheter. Det är ettor på 35 kvm som ligger vid Nordhemsgatan. Hyrköp kommer i första hand att erbjudas till dig som medlem i Riksbyggen Förtur, därefter andra intressenter. Lägenheter kommer fördelas och erbjudas under mars 2026. Inflyttning blir då från första maj. Förturspoäng under Hyrköp innebär att du som är under 35 år och varken äger en bostad eller har något förstahandskontrakt sedan tidigare får möjlighet att hyra en lägenhet i Brf Sydney med option på att köpa den inom fyra år.
Här kan du läsa mer Riksbyggens Hyrköp
Mitt emellan kvarterets byggnader, en våning upp från gatuplan, ligger Sydneys gröna, inbjudande oas – föreningens egen avskilda, välplanerade innergård. Här finns växtbäddar, träd och buskar, slingrande trädgårdsgångar och mysiga platser för lek, gemenskap och avkoppling. I gårdens soligaste hörn finns en vindskyddad möblerad uteplats med trädäck, som också kan nås från föreningens gemensamhetslokal via stora dubbeldörrar. Som gjort för en trevlig sommarfest!
Gemensamhetslokalen har en komplett, modern köksutrustning och flexibel inredning för lätt kunna anpassas efter behov. Bredvid gemensamhetslokalen ligger föreningens stora gästlägenhet med eget pentry och plats för fyra övernattande gäster. Perfekt när du får långväga besök.