
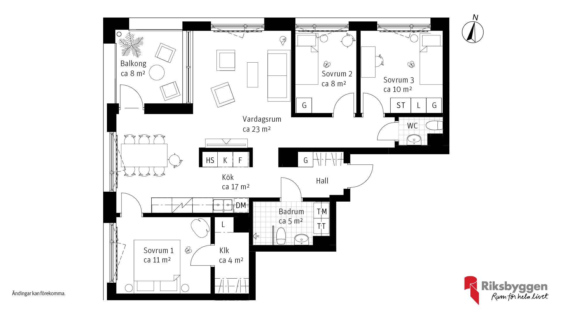
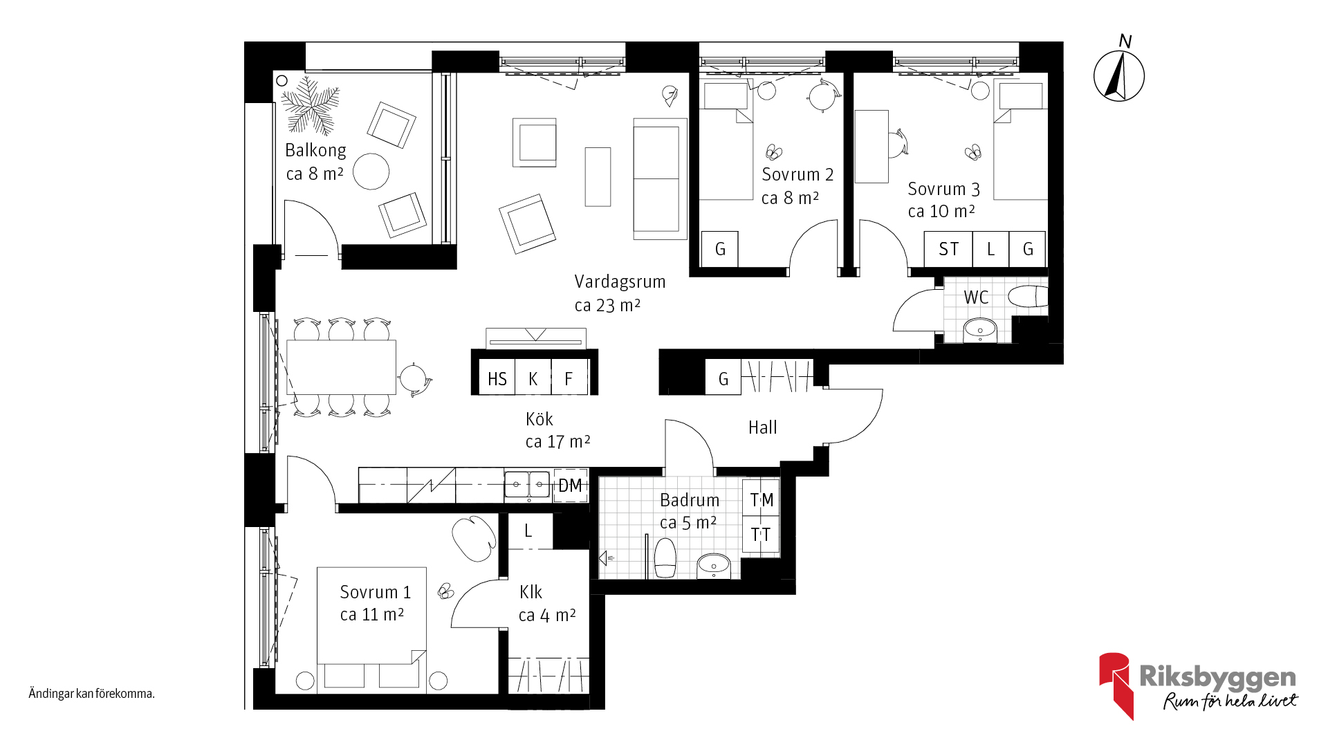
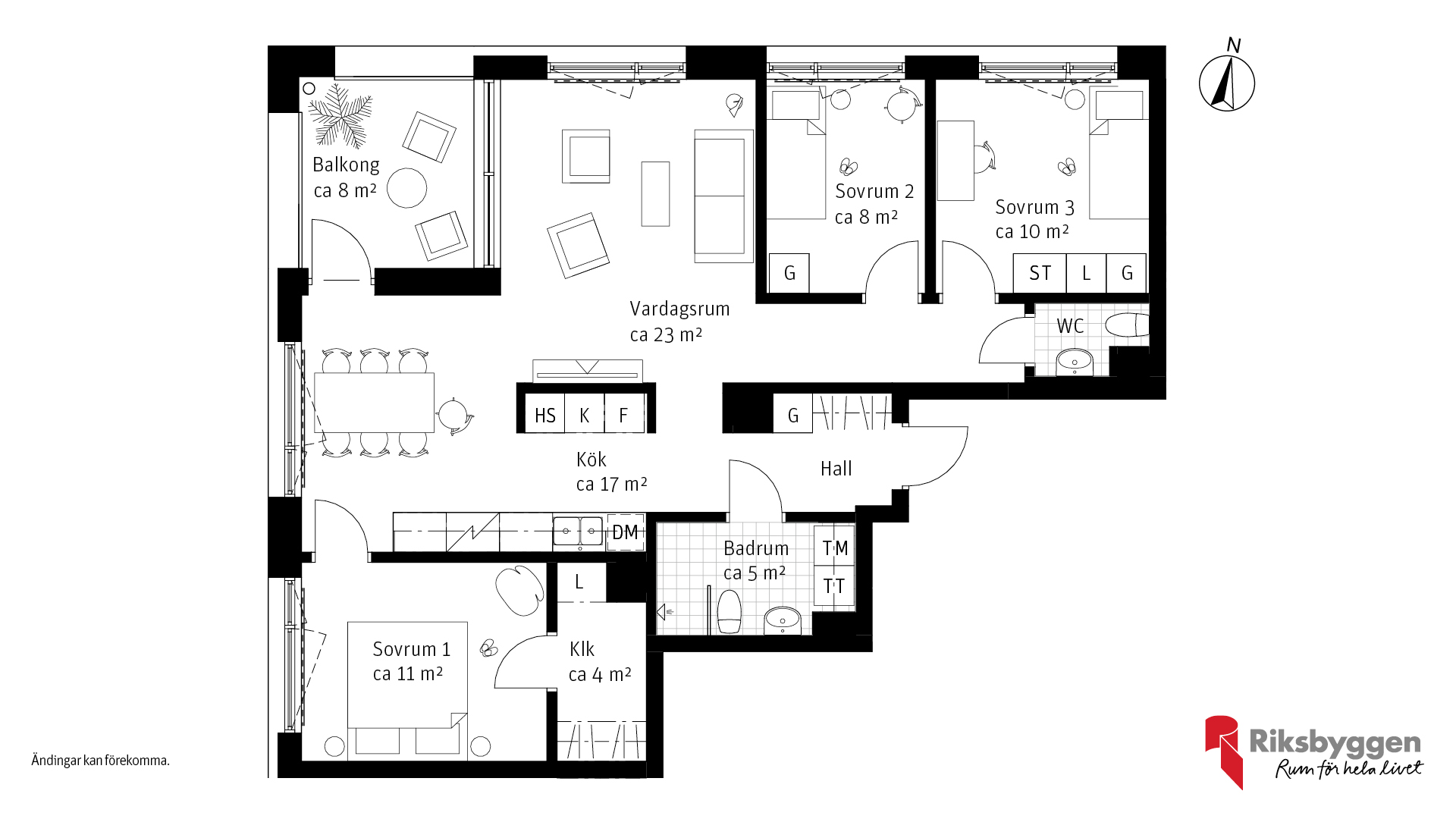
Rymlig 4:a med halvöppen planlösning mellan kök och vardagsrum. Plats för matbord i avskild vinkel med utgång till indragen vindskyddad hörnbalkong. Sovrum med stor klädkammare. Badrummet har tvättmaskin och torktumlare från Siemens och är smakfullt inrett. Extra toalett. Kök från Kvänum. Första Långgatan blir en vacker boulevard av kontinentalt snitt och Masthamnsgatan - eller Nya Lång som den också kallas - blir ett vänligt, grönt och soligt promenadstråk med uteserveringar i bästa läge.
April 2024
Vår 2024
2026
Vintern 2027/2028













































Hall
Parkettgolv 1-stav mörk ek, mattlackad och klinker, natursten Grå Bohus i hallar på våning 1.
Målade väggar. Sockel i trä målad varmgrå.
Förvaring Kvänum, ek Amber.
Kök/matplats
Parkettgolv 2-stav mörk ek, mattlackerad.
Målade väggar. Sockel i trä målad varmgrå.
Stänkskydd kant med kompositsten. Bänkskiva kompositsten Clamshell. Snickerier Kvänum Lindö ek Amber.
Vitvaror Bosch helintegrerade diskmaskin, kyl och frys.
Ugn/ micro i rostfri/svart.
Sovrum
Parkettgolv 1-stav ek, mattlackerad.
Målade väggar. Sockel i trä målad varmgrå.
Förvaring, ljus ek Kvänum.
Bad/WC/dusch/tvätt
Golv i natursten grå Bohus. Väggar i natursten grå Bohus.
Tvättmaskin, torktumlare från Siemens. Inredning från Kvänum Lindö ek vitbonad, spegel med belysning med Glo Ball från Flos.
Väggskåp Ramel vitrin från Kvänum Väggskåp med integrerad LED-lister.
Takduschset, handduksvärmare samt övriga beslag bronsfärgade. Fast duschvägg med våg formatglas. WC-stol vägghängd.
Generellt
Innerdörr Swedoor slät massiv i kulör varmgrå. Fönsterbänkar av natursten Norrvange.
Utförligare information finns i säljbroschyren.
Området runt Långgatorna, Järntorget och Linné är en färgstark och kontrastrik del av stan. Här finns ett aktivt kulturliv och mängder av restauranger, kaféer och butiker. När bebyggelsen på nya Masthuggkajen nu tar form innebär det att området utvidgas och att Göteborg tar ett stort steg närmare vattnet.
Första Långgatan blir en vacker boulevard av kontinentalt snitt och Masthamnsgatan – eller Nya Långgatan som den också kallas — blir ett vänligt, grönt och soligt promenadstråk med uteserveringar i bästa läge. En brokig blandning av spännande arkitektur, torg, gator och grönområden växer fram. Med nya Masthuggsparken som närmsta granne bygger vi Brf New York, för dig som gillar att vara i händelsernas centrum.
Resan till New York börjar på våning åtta. Kvarteret består av en trevånings "sockelbyggnad" och av två sammanlänkade höga hus, utformade så att lägenheterna får in maximalt med ljus och utsikter åt flera väderstreck.
I gatuplan blir det gemensam entrélounge, restauranger och butiker och på våning fyra till sju blir det hyreslägenheter som förvaltas av Elof Hansson Fastigheter. Bostadsrätterna i Brf New York börjar på våning åtta och sträcker sig hela vägen upp till toppen på sjuttonde respektive artonde våningen. Huset består alltså av två kvadratiskt utformade vertikala byggnader som delas horisontellt, om man vill uttrycka det lite mer geometriskt.
"Vårt koncept möjliggör ljusa och fina hörnbostäder utan insyn ovanpå en urban sockel i tre våningar."
Arkitekt David Saand på LINK Arkitektur, som gestaltat byggnaderna i kvarteret.
Storstadskänslan går igen också i inredningskoncepten som är speciellt framtagna för Brf New York. De New York-influerade färgpaletterna matchar fasadens och terrassernas varma tegeltoner. Alla detaljlösningar och material är noggrant utvalda och håller nordisk premiumkvalitet från golv till tak.
En imponerande tegelbyggnad, på samma gång kraftfull och personlig. Känslan är internationell med ett tydligt stänk av Brooklyn New York, och insidan matchar utsidan. Det är en kontrastrik smältdegel därinne med bostadsrätter, hyresrätter, kontorslokaler, butiker och restauranger. En hel stad i miniatyr på Masthuggskajen – The Parkside.
På de översta våningarna hittar du några av områdets allra häftigaste lägenheter, med härlig rymd, ytor från 124 till 167 kvadratmeter och egen, stor terrass i bästa utsiktsläge. Två av totalt sex taklägenheter byggs i etage, med en terrass på varje våning. En annan av taklägenheterna har ett helt våningsplan helt för sig själv. Från taklägenheterna kommer du kunna njuta av panoramat över älven och staden från badkaret om du vill. Hur coolt som helst!
På våning sexton finns en komplett utrustad gemensamhetslokal på hela 73 kvm. Perfekt för föreningsmöten eller ditt privata kalas. Föreningen har också en egen gästlägenhet med plats för fyra övernattande gäster. Enkelt att boka om du får många gäster.
Har du egen bil finns flera parkeringsgarage i närheten, och ytterligare några parkeringshus och garage kommer att byggas. Du kan också gå med i någon av de bilpooler som finns på Masthuggskajen; KINTO eller Masthuggets bilkooperativ.
Att bo mitt i stan med det mesta på nära avstånd gör cykeln till ett smidigt förstahandsalternativ. I Brf New York gör vi det extra enkelt för dig som helst tar dig runt på två hjul. I källarplanet finns ett välutrustat cykelgarage som du når bekvämt via en cykelramp. Här kan du både förvara din cykel på ett säkert sätt, fylla på luft och fixa en punktering. Dessutom byggs en ny station för hyrcyklar från Styr & Ställ bara ett par minuters promenad bort. Vill du hellre ta vagnen, ligger Masthuggstorgets spårvagnshållplats strax utanför dörren. Parkeringshus för bilar finns också på kort gångavstånd.
Sjöfarten är en självklar del av Göteborgs historia. En historia där Masthuggskajen har spelat en helt avgörande roll. När den anlades i slutet av 1800-talet blev det möjligt för oceangående fartyg att lägga till inne i stan. Den ökande fartygstrafiken fick inte bara handeln att blomstra. Den förde också med sig nya impulser, tankar och idéer som bidragit till att göra Göteborg till den utåtriktade, mångfasetterade stad den är idag. För att hylla den öppna attityd som präglat och fortfarande präglar vår stad ger vi våra kvarter på Masthuggskajen namn efter några av de hamnstäder som fartygen härifrån besökte.
Bland alla destinationer för fartygstrafiken från Göteborg har New York en särställning. Staden blev porten till det nya landet för många av de 1,2 miljoner svenskar som emigrerade till Nordamerika från mitten av 1800-talet till början av 1920-talet. Den första direkta ångbåtsförbindelsen mellan Göteborg och New York startade redan 1866, och med Svenska Amerika Liniens etablering 1915 blev det möjligt för många fler att ta båten direkt från Lilla London till the Big Apple. Nu bygger vårt eget New York där resan en gång började.
Snart startar byggnationen. Om du är nyfiken på hur byggnationen går kan du se det live via webbkameran. Till webbkamera The Parkside (bilden uppdateras var 5:e minut).
Stadsarkeologerna från Rio Göteborg Natur- och Kulturkooperativ, som utför de arkeologiska utgrävningen av tomten, har hittat allt från kritpipor, ostindiskt porslin till flera hundra år gamla mynt och en kanonkula. Kanonkulan är troligen från någon gång mellan år 1750 och år 1850. De har också hittat knappar av mässing och en tennsked med Amsterdams stadsvapen. Bland de äldsta fynden finns även flera dalersilver kopparmynt. Det allra äldsta är daterat år 1666.