
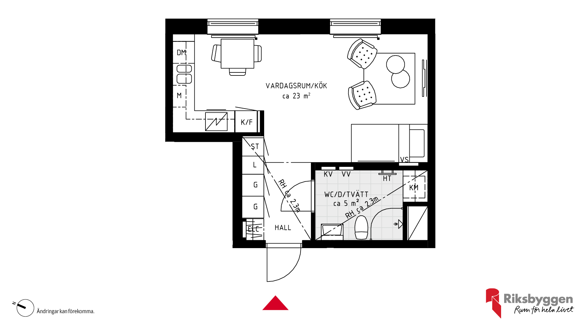
Din första dröm? Kvadratklok lägenhet om 33 kvm med ordentligt kök i vinkel. Bra förvaring i garderober i hallen. Rymligt badrum med kombimaskin.
Maj 2024
Sommar 2024






Kvarteret Futura ligger ett stenkast från Lindholmshamnens vattenspegel på Norra Älvstranden. Det centrala läget vid vattnet, ett växande utbud av handel och kultur och goda kommunikationer gör området till ett av Göteborgs mest dynamiska. Här arbetar och studerar över 21 000 människor i en innovativ, internationell miljö.
Fram till år 2026 ska 2 700 nya bostäder byggas här, parallellt anläggs parker och grönområden. Lindholmshamnen, som förr dominerades av varvsindustrin, präglas idag av en spännande blandning av industrihistoria och modern arkitektur.
I området ligger även Lindholmen Science Park, som är ett världsledande centrum för forskning och utveckling med fokus på mobil datakommunikation, intelligenta fordon och transportsystem samt modern media och design. De är en tillväxtmotor för många företag i området som till exempel Ericsson, Volvo, Chalmers, Semcon och SVT med flera andra.
Futura är inte bara ett kvarter med nya, välplanerade bostäder och spännande arkitektur i en av Göteborgs mest dynamiska stadsdelar. Det är också en framtidsvision som nu blir verklighet. En tanke om att ge fler människor i olika åldrar och livssituationer möjlighet till ett mer hållbart boende, med fin gemenskap och stora trivselvärden i en inspirerande miljö. Välkommen till kvarteret Futura.
Med ett attraktivt vattenära läge mellan Lindholmshamnens småbåtshamn och den planerade Karlastaden bygger vi framtidens hållbara boende. Kvarteret Futura kommer bestå av sex huskroppar i varierande höjd med en social och grönskande innergård. Tänk att du bara kommer vara ett stenkast från att kunna ta en paus på bryggan och varva ned till ljudet av vågskvalp. Ta en kopp kaffe på favoritfiket eller möt upp vännen för en promenad i solen. Med färjan Älvsnabben tar du dig hit från Stenpiren på bara sex minuter.
Brf Futura Götaverksgatan består av två sammanbyggda huskroppar, varav den största har sju våningar med lägenheter inklusive entréplan med kommersiella lokaler. Föreningen består av 66 lägenheter, 1–4 rum och kök. I föreningen finns även en övernattningslägenhet för långväga gäster. Under huset finns källare och under innergården ligger ett garage som är gemensamt för kvarteret.
Förutom Brf Futura Götaverksgatan ingår också Brf Futura Lindholmsallén och den kooperativa hyresrättsföreningen Futura Clara i kvarteret. Allt byggt runt en grönskande innergård för dig som vill odla, umgås eller bara njuta av tillvaron. Det kommer finnas en stor gemensamhetslokal med högt i tak för både vardag och fest och ett praktiskt cykelfixarrum.
När Riksbyggen bygger, utvecklar och förvaltar bostäder och arbetsplatser skapar vi lösningar för social gemenskap, hållbar ekonomi och minskad miljöpåverkan.
Vi arbetar för hållbarhet genom att bygga för gemenskap, skapa gröna närmiljöer och bygga och förvalta på ett ekonomiskt hållbart sätt. Vi gör det för hela samhället, för planeten och för alla boende och kunder. För oss är hållbart både stort och litet. Det stora helhetsperspektivet är en förutsättning för att kunna göra rätt i det lilla. Det som gör livet mer hållbart i hemmet, på jobbet och i framtiden.
I Brf Futura Götaverksgatan kommer du att bo i ett hus som är certifierat enligt Miljöbyggnad nivå Silver som visar på höga kvaliteter gällande energi, inomhusmiljö och byggmaterial vilket ger dig möjlighet att leva hållbart i vardagen. Husen har sedum och solceller på taken och vi använder återbrukad natursten på gården.
Riksbyggen är Sveriges grönaste varumärke inom kategorin Nyproduktion av bostäder.