
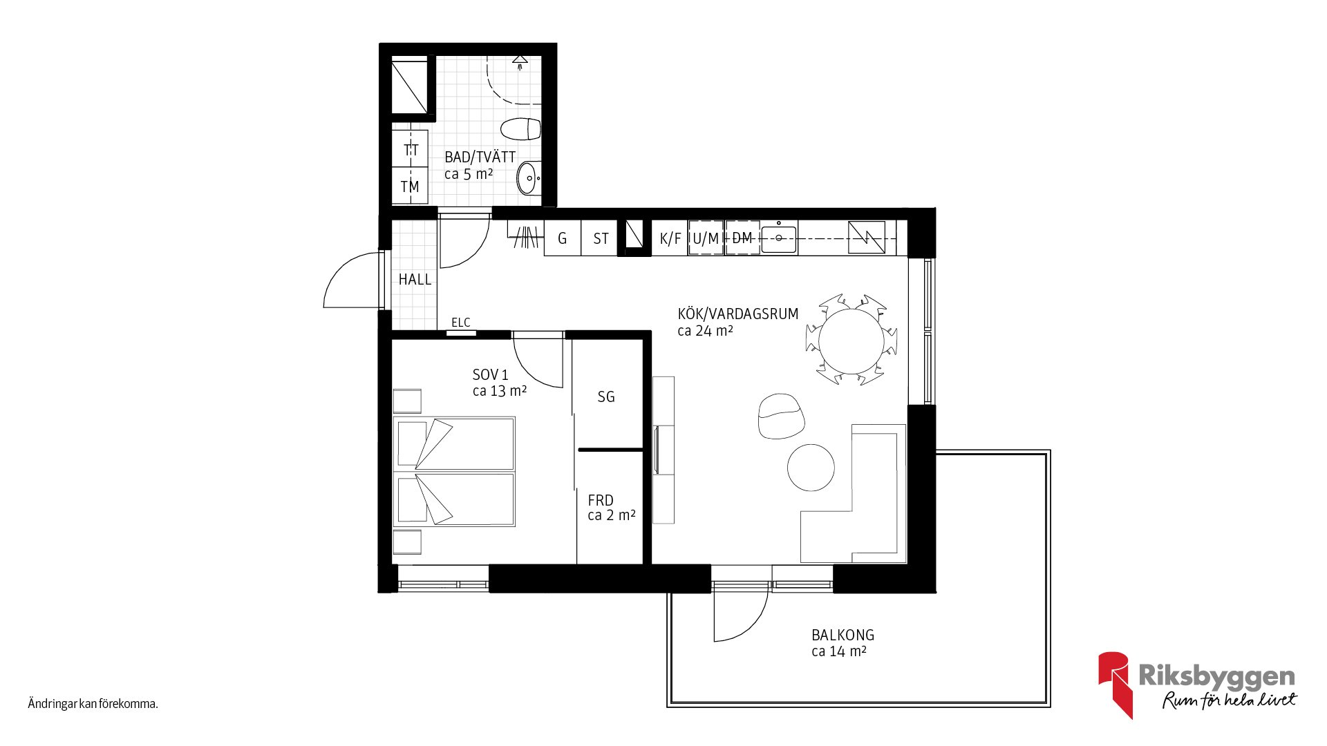
Modern tvåa med balkong i österläge för härligt morgonljus. Öppen planlösning mellan kök och vardagsrum ger gott om plats för både vardag och umgänge. Sovrummet har bra förvaring och helkaklat badrum med tvättmöjligheter gör livet enklare. Köket är utrustat med diskmaskin, ugn och mikro i högskåp samt kombinerad kyl och frys. Ett hem som ger både komfort och trivsel.
Januari 2026

En trygg start i Brf Sjöklinten. Den 1 april trädde de nya bolånereglerna i kraft vilket gör det enklare att ta första steget till en ny bostad. Vi vill såklart göra det ännu enklare och erbjuder just nu 1 års avgiftsfritt på tvåor. En trygg, ekonomisk och mer förutsägbar start helt enkelt.
Gäller nya köpare t.o.m. 15 maj 2026.
Är du nyfiken på Brf Sjöklinten och vill diskutera planlösningar eller vad en flytt kan innebära för er? Välkommen in till oss på Fastighetsbyrån så berättar vi mer över en kopp kaffe! Anmälan krävs.
Allégatan 59
























Entré/hall
Klinker grå 30x30 cm, innanför dörren.
Ekparkett, 3-stav mattlackad.
Vitmålade väggar.
Garderober enligt ritning
Vardagsrum
Ekparkett, 3-stav mattlackad.
Vitmålade väggar.
Sovrum
Ekparkett, 3-stav mattlackad.
Vitmålade väggar.
Klädkammare
Ekparkett, 3-stav mattlackad.
Vitmålade väggar.
Hylla med klädstång.
Kök
Ekparkett, 3-stav mattlackad.
Vitmålade väggar..
Skåpinredning från Vedum med linnebeige släta luckor och lådor,
handtag i rostfritt. Bänkskiva i laminat och underlimmad diskho. Köksblandare, krom.
LED-belysning under väggskåp.
Utrustning: spisfläkt, induktionshäll, kyl (rostfri), frys (rostfri), micro
(rostfri) och ugn (rostfri) i högskåp,integrerad diskmaskin.
Badrum
Klinker, grå 15x15 cm.
Kakel, grå 25x45 cm.
Golvmonterad WC-stol.
Vägghängd kommod från Svedbergs med lådor och tvättställ. Spegelskåp med belysning. Tvättställsblandare i krom.
Duschväggar i klarglas. Duschblandare och duschset, krom. Bänkskiva i laminat ovan tvättmaskin och torktumlare.
Väggskåp från Svedbergs med vita släta luckor. Handduks- och klädkrokar, krom.
Toalettpappershållare, krom.
Tvättmaskin och torktumlare.
WC
Klinker, grå 15x15 cm.
Vitmålade väggar.
Golvmonterad WC-stol.
Vägghängd kommod från Svedbergs med lådor och tvättställ. Spegel.
Tvättställsblandare i krom. Handduks- och klädkrokar, krom. Toalettpappershållare, krom.
WC/dusch
Klinker, grå 15x15 cm.
Kakel, grå 25x45 cm.
Golvmonterad Wc-stol.
Vägghängd kommod från Svedbergs med lådor och tvättställ. Spegelskåp med belysning. Tvättställsblandare i krom.
Duschväggar i klarglas. Duschblandare och duschset, krom. Handduks- och klädkrokar, krom.
För utförligare beskrivning se säljbroschyren.
I Byttorp finns allt du behöver inom gångavstånd: förskola, skola, mataffär, bageri, frisör och skomakare. Sjön Kolbränningen erbjuder bad, fiske och motionsspår, och Rya Åsar lockar med lummiga promenadstråk och utsikt över Borås. Från Fjällgatan är det bara 25 minuters promenad till stadskärnan.
Borås är en stad med unik karaktär. Här möts textilhistoria, gatukonst, shopping och grönområden. Centrum bjuder på skulpturer, uteserveringar och ett rikt kultur- och idrottsliv. I närheten finns även Borås Djurpark, Knalleland och Almenäs som tillsammans ramar in denna kulturella handelsstad.
På en grönskande sluttning på Byttorp planerar vi bygga 47 moderna och stilrena bostadsrätter. Här bor du med naturen som granne och stadens liv och rörelse inom räckhåll. Ett hem där livskvalitet, hållbarhet och gemenskap står i centrum.
Brf Sjöklinten kommer huvudsakligen att utgöras av luftiga och moderna bostadsrätter med två, tre och fyra rum och kök mellan cirka 52-103 kvadratmeter. Både planering och materialval ger en härlig och öppen känsla som erbjuder alla bekvämligheter och från balkongen ser du sjön.
Lägenheterna passar både dig som säljer huset och vill slippa snöskottning och gräsklippning och dig som ska köpa din första lägenhet. Här får du en nyproducerad lägenhet med balkong, öppna ytor och modern design – perfekt för middagar med vänner, hemmakontor eller bara lugna kvällar med utsikt över vattnet. Naturen är runt hörnet, och stadslivet bara en promenad bort.
Här har vi tänkt till för att ge dig ett hem som passar just din livsstil. För dig som vill ha extra rymd och sociala ytor finns möjlighet att välja bort vissa innerväggar – till exempel mellan sovrum och vardagsrum – och i stället få ett större, öppnare vardagsrum. Det är ett perfekt alternativ för dig som prioriterar kvadratmetrar och ljus framför antal rum.
Alla bostäder har tillgång till cykelparkering i markplan, vilket gör det enkelt att leva aktivt och hållbart. Förvaringsmöjligheterna är också väl tilltagna – de flesta lägenheter har externa förråd, medan våra tvåor har integrerade förvaringslösningar direkt i bostaden.
De två husen byggs med god energihushållning och produktionseffektiva metoder. Huset är en del av ett nytt bostadsområde där sociala ytor och smarta lösningar prioriteras – som cykelparkering i markplan och planer på gemensam lådcykel för föreningen. Det bidrar till både välmående och hållbarhet.
Är det stort vardagsrum eller balkong med morgonsol som lockar? Med Riksbyggen Förtur får du chansen att se och välja nyproducerade bostadsrätter, äganderätter och hyrköp före andra.