
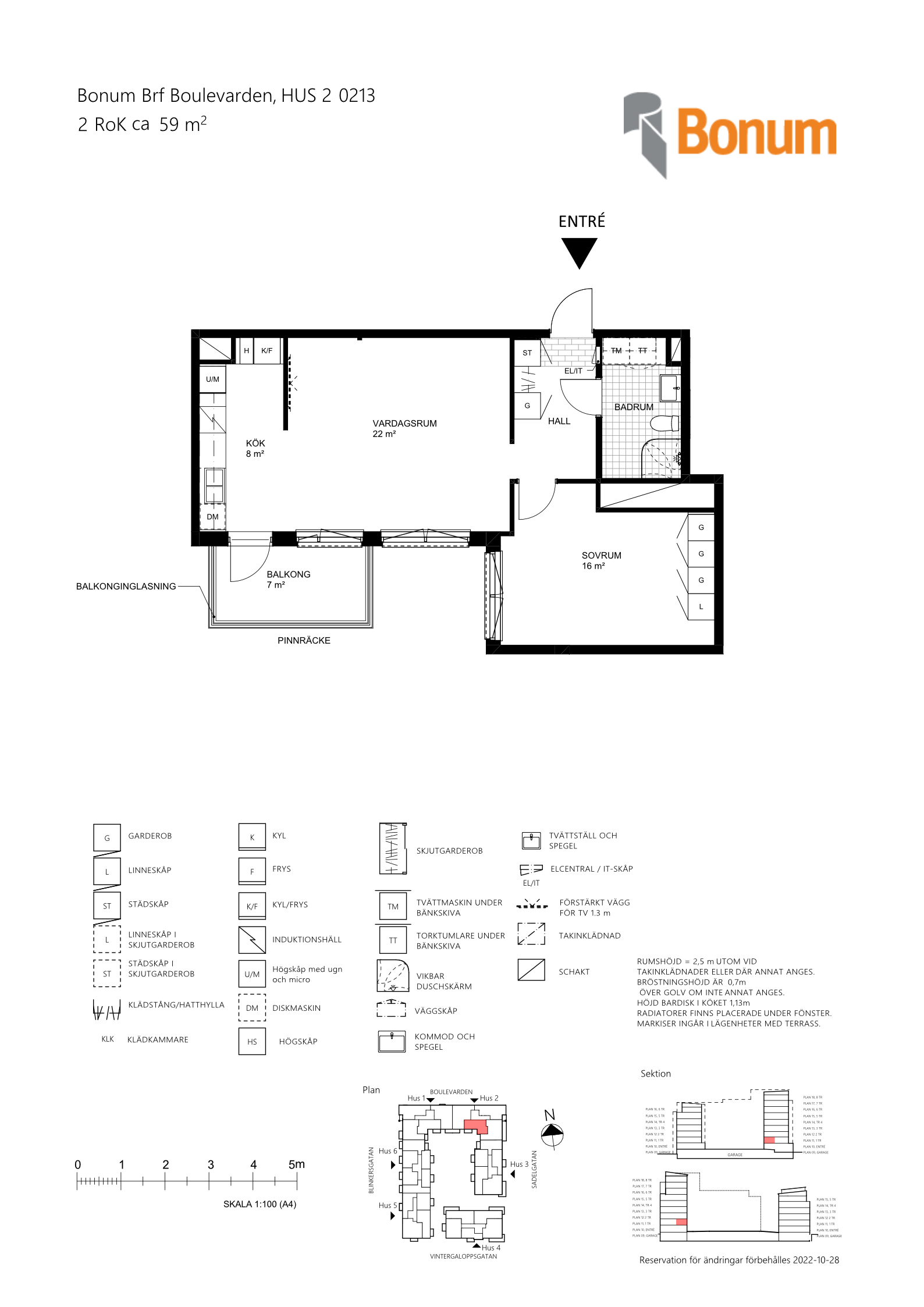
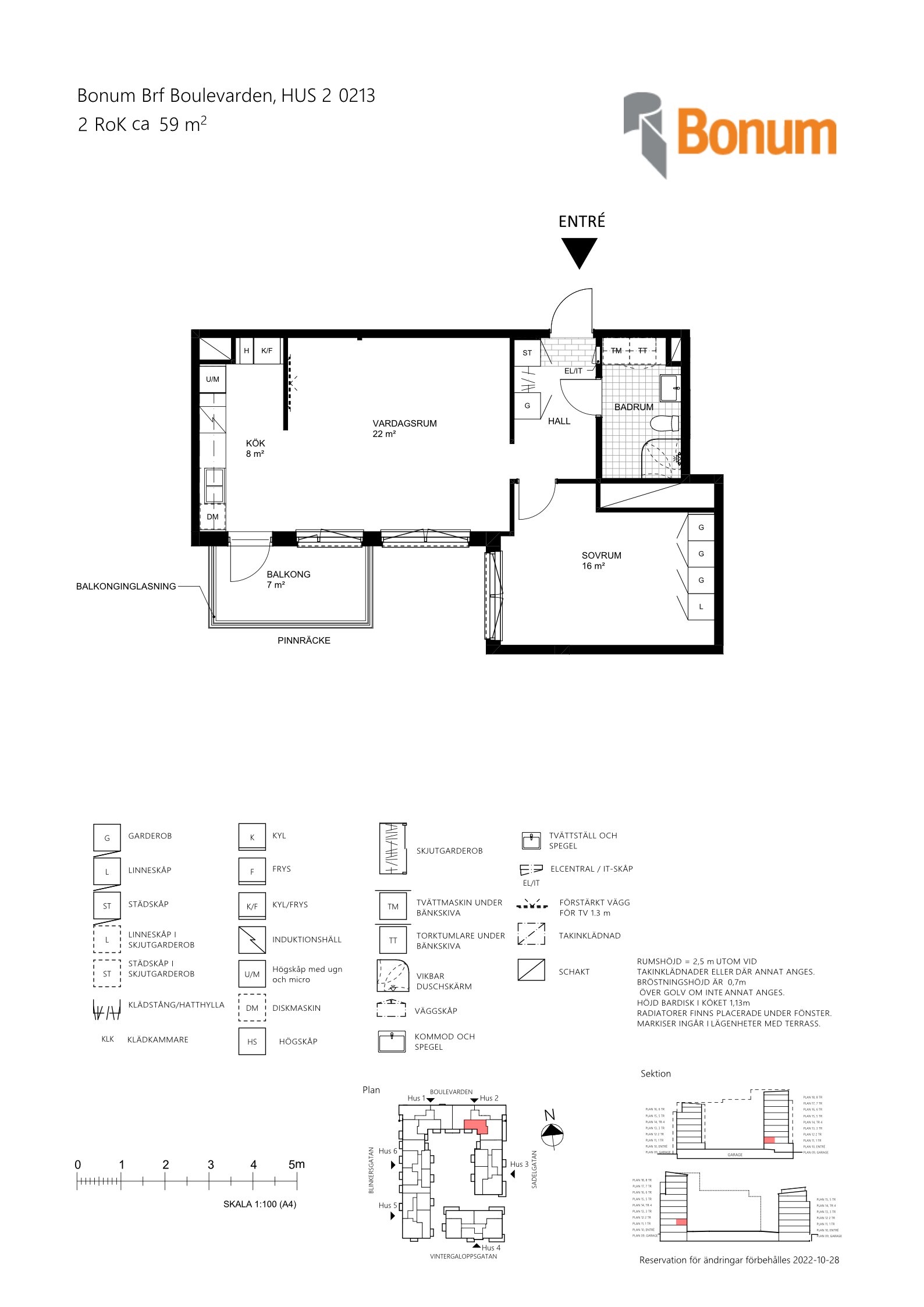
2 rok om ca. 59 kvm på våning 1. Hall med 1 kvm klinkergolv, hatthylla och garderob. Från hallen nås badrum med inredningsstilen Harmoni med vitt kakel, ljusgrå klinker. Dusch med svängda dörrar, förhöjd wc, tvättställ med vit kommod, TM och TT. Rymligt sovrum om 16 kvm med god förvaring. Vardagsrum och kök i en halvöppen planlösning. Köksinredning är i Harmoni med gråa köksluckor och vitt kakel. Balkong i söderläge. Källarförråd ingår till bostaden.
Augusti 2022
November 2022
Vinter 2024
Mars 2025

Nu vågar du köpa innan du sålt! När du köper ditt nya hem i Täby Park ger vi öppet köp. Du betalar bara handpenning, och om du inte får din gamla lägenhet såld, ja, då får du pengarna tillbaka. Börja drömma om ett nytt boende i Täby Park, i en obelånad/skuldfri bostadsrättsförening.
Fullständiga villkor

Ja, du läste rätt. Just nu kan du få riktigt bra betalt för din gamla vattenslang när du köper en ny lägenhet i Bonum Brf Boulevarden.* Det sker genom att vi är villiga att göra avdrag på utvalda lägenheters pris enligt ekonomisk plan. Och vårt bud på vattenslangen är bara ett av alla våra fina erbjudanden. Kontakta så kanske vi ger ett bra bud på häcksax och gräsklippare också.
*Rabatten uppgår till max 15% av lägenhetens pris i ekonomisk plan.
Välkommen att kika in i våra visningslägenheter! Det går även bra att kontakta mäklaren för att boka in privat visning för att titta på samtliga lediga lägenheter. Priserbjudande på utvalda lägenheter!
Boulevarden 11, Täby Park
Välkommen att kika in i våra visningslägenheter! Det går även bra att kontakta mäklaren för att boka in privat visning för att titta på samtliga lediga lägenheter. Priserbjudande på utvalda lägenheter!
Boulevarden 11, Täby Park
Välkommen att kika in i våra visningslägenheter! Det går även bra att kontakta mäklaren för att boka in privat visning för att titta på samtliga lediga lägenheter. Priserbjudande på utvalda lägenheter!
Boulevarden 11, Täby Park




























Golv vitpigmenterad ask och vitmålade väggar. Rostfria vitvaror. Köket är utrustat med kyl och frys eller kombinerad kyl och frys, induktionshäll, diskmaskin, ugn och inbyggnadsmicro.
Golv vitpigmenterad ask och vitmålade väggar. Fönsterbänk polerad natursten.
Golv klinker och väggar kakel.
För utförligare beskrivning se säljbroschyren.
Täby Park blir namnet på det trivsamma bostadsområdet med ett rikt utbud av kultur, rekreation, mötesplatser och service samt plats för tusentals nya invånare. Som aktiv samhällsutvecklare är vi med att utveckla Täby Park till en karaktärsfull stadsdel med parker, storstadskvarter, arbetsplatser och nya bostäder med plats för tusentals människor. Med andra ord ska det bli en socialt hållbar stadsdel.
Brf Boulevarden är vår fjärde etapp i Täby Park. Ett kvarter med strålande läge, uttrycksfull gestaltning och bostäder med genomtänkta lösningar som underlättar vardagen.
Lägenheterna är ljusa och luftiga med öppna planlösningar och fönster i olika väderstreck. Hitta ditt drömboende bland 2–4:or med unika kvaliteter. Vad passar dig? Kanske en 2:a högst upp i huset med strålande västerläge. En 3:a med egen uteplats mot den grönskande innergården där du kan släppa ut katten och ta en kaffe i solen. Eller varför inte en 4:a med strålande hörnläge och magnifik terrass?
Som boende i Bonums lägenheter har du tillgång till en fin, fullt möblerad, gemensamhetslokal. Här finns allt du behöver i fråga om glas och porslin. Perfekt när du har gäster, om du bor i en lite mindre lägenhet, och bra för gemensamma aktiviteter med grannarna. I föreningen finns också en övernattningslägenhet om du har gäster som vill sova över. Huset kommer dessutom att ha en intim och mysig innergård med soliga mötesplatser.
En bostadsrättsförening har vanligtvis ett lån eller flera lån vilket innebär kostnader i form av räntor och amortering. Detta är en av faktorerna som avgör nivån på månadsavgiften i en bostadsrättsförening. I Bonum Brf Boulevarden har vi tagit bort lånet och lagt det på insatserna i stället, vilket innebär att föreningen blir skuldfri. Det innebär att det blir en betydligt lägre månadsavgift till föreningen för varje lägenhet (ej att jämföra med en ägarlägenhet som är en annan boendeform).
Vi vill att du ska hitta en bostad som faller dig helt i smaken. Och eftersom smaken är olika har vi valt att inreda lägenheterna på varje våningsplan i olika stilar. Istället för att du ska behöva ta en massa beslut om kakelplattor, luckor, bänkskivor och knoppar så har vi inrett de olika våningsplanen med inredningsstilarna Harmoni vit, Harmoni grå och Natur. Stilrent och genomtänkt, redan från början. Bland bilderna och i säljbroschyren ser du vilken inredningsstil det är på de olika våningsplanen.
I våra Bonumföreningar finns det alltid en Bonumvärd som finns till hands när det behövs. Din Bonumvärd kan till exempel hjälpa till att ordna gemensamma aktiviteter, som matlagningskurser, filmkvällar eller bouleturneringar. De ser också till att det finns trevliga mötesplatser och initiativ som bidrar till gemenskapen. Allt för att skapa en trygg och trivsam vardag där grannarna lär känna varandra bättre.
Längs den livfulla boulevarden planeras det för butiker, caféer, hotell, gym och all tänkbar service. Här bor du granne med en härlig naturpark och ett levande torg med restauranger och uteserveringar.
Bussen går precis utanför porten och Roslagsbanas station Täby Park är cirka 700 meter från Bonum Boulevarden. En kort bit bort ligger dessutom Täby Centrum med över 200 butiker, restauranger och caféer. Och en biograf med fem salonger.
På nära håll finns dessutom vacker natur med badsjöar, svampskogar och elljusspår som bjuder in till härligt friluftsliv – året om.
Som aktiv samhällsutvecklare är vi stolta över att vara med att omvandla Stockholms gamla galoppfält till den nya stadsdelen Täby Park. Det blir en karaktärsfull och socialt hållbart stadsdel med bostäder, arbetsplatser, parker och storstadskvarter. Här finns allt du behöver vägg i vägg eller på bekvämt promenadavstånd.