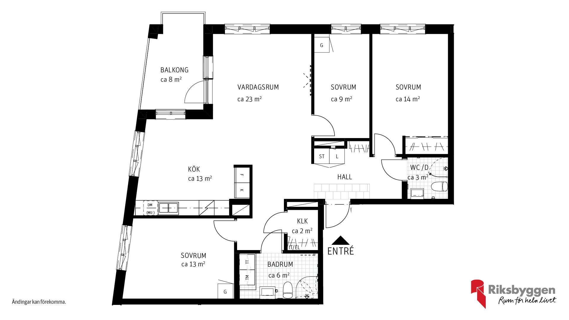
Här bor du centralt alldeles vid havet i Norrtälje Hamn. En välplanerad 4:a med hörnbalkong i västerläge och tillgång till en fin, grönskande innergård med lekpark och härligt gemensamt inglasat uterum. Bostaden är genomtänkt i minsta detalj för att göra vardagen bekväm. Här kan du bo kvar länge, även om livet förändras. Med egen tvättmaskin, rymligt badrum och skjutdörrsgarderober finns här allt du kan önska.
Höst 2022
September 2023
Höst 2024
September 2024

Nu vågar du köpa innan du sålt! När du köper ditt nya hem i Norrtälje ger vi öppet köp. Du betalar bara handpenning, och om du inte får din gamla lägenhet såld, ja, då får du pengarna tillbaka. Börja drömma om ett nytt boende i Norrtälje hamn, ett vågstänk från havet.
Fullständiga villkor
Köper du en lägenhet nu får du 25% rabatt på valfri lägenhet. Gäller på priset i ekonomisk plan och rabatten är redan avdragen i lägenhetslistan. Kontakta mäklaren så berättar han mer.
Vänligen kontakta mäklare för visning.



























Rummen har vitmålade väggar och socklar. Golven är 3-stav vitpigmenterad ekparkett.
Olika köksinredning på olika våningsplan.
Vån 1 och 2: Vedum Harmoni vit
Vån 3 och 4: Vedum Harmoni grå
Vån 5 och 6: Vedum Lugn Linnebeige
Handtag i metall. Spotlights under väggskåp. Induktionshäll. Rostfri inbyggnadsugn och micro enligt ritning. Integrerad diskmaskin.
Olika badrumsinredning på olika våningsplan.
Vån 1, 2, 3 och 4: Vedum Harmoni vit
Vån 5 och 6: Vedum Lugn linnebeige
I Brf Havsbrisen bor du nära den fina hamnpromenaden i Norrtälje. Den kantas av uteserveringar, torghandel och det planeras för en pir med möjlighet till bad i stan. Hamnpromenaden är Norrtäljebornas nya soliga vardagsrum – en självklar mötesplats i Norrtälje.
Här har vi byggt 82 bostadsrätter med närhet till havet. Lägenheterna är i storlekarna 34 - 105 kvm om 1-4 rum och kök. De flesta lägenheterna har balkong eller uteplats mot den grönskande innergården.
Läget i Norrtälje Hamn är strålande. Vårt nya kvarter växer fram med hem där havsbrisen alltid finns nära. Ett hemtrevligt boende med sammanlagt 82 ljusa och fina lägenheter. Här är du den första som flyttar in och behöver inte bekymra dig för renovering och reparationer.
Hitta ditt drömboende bland välplanerade ettor till femmor. Här bor du nära den härliga hamnpromenaden som kantas av uteserveringar, torghandel och en planerad pir.
Istället för att du ska behöva ta en massa beslut om kakelplattor, luckor, bänkskivor och knoppar har vi inrett de olika våningsplanen med tre olika inredningskoncept. Stilrent och genomtänkt, redan från början.
Varje våningsplan i Brf Havsbrisen får sin egen individuella köksdesign. Våra duktiga inredningsdesigners har valt ut och skapat unika kombinationer av fräscha köksluckor, stilfullt kakel, moderna beslag och slitstarka bänkskivor. Olika kombinationer på varje våning. Detta innebär att du kan hitta just den unika lägenhet som passar det du söker.
Som samhällsutvecklare bygger vi mer än bara bostäder. Vi utvecklar nya stadsdelar med människan i centrum och arbetar för ett gott liv — både i och mellan husen. På så sätt utvecklar vi socialt hållbara stadsdelar där människor vill bo, år ut och år in. Nu är vi stolta över att vara med i utvecklingen av Norrtälje Hamn, en marin stadsdel med närmare 2 000 bostäder.