
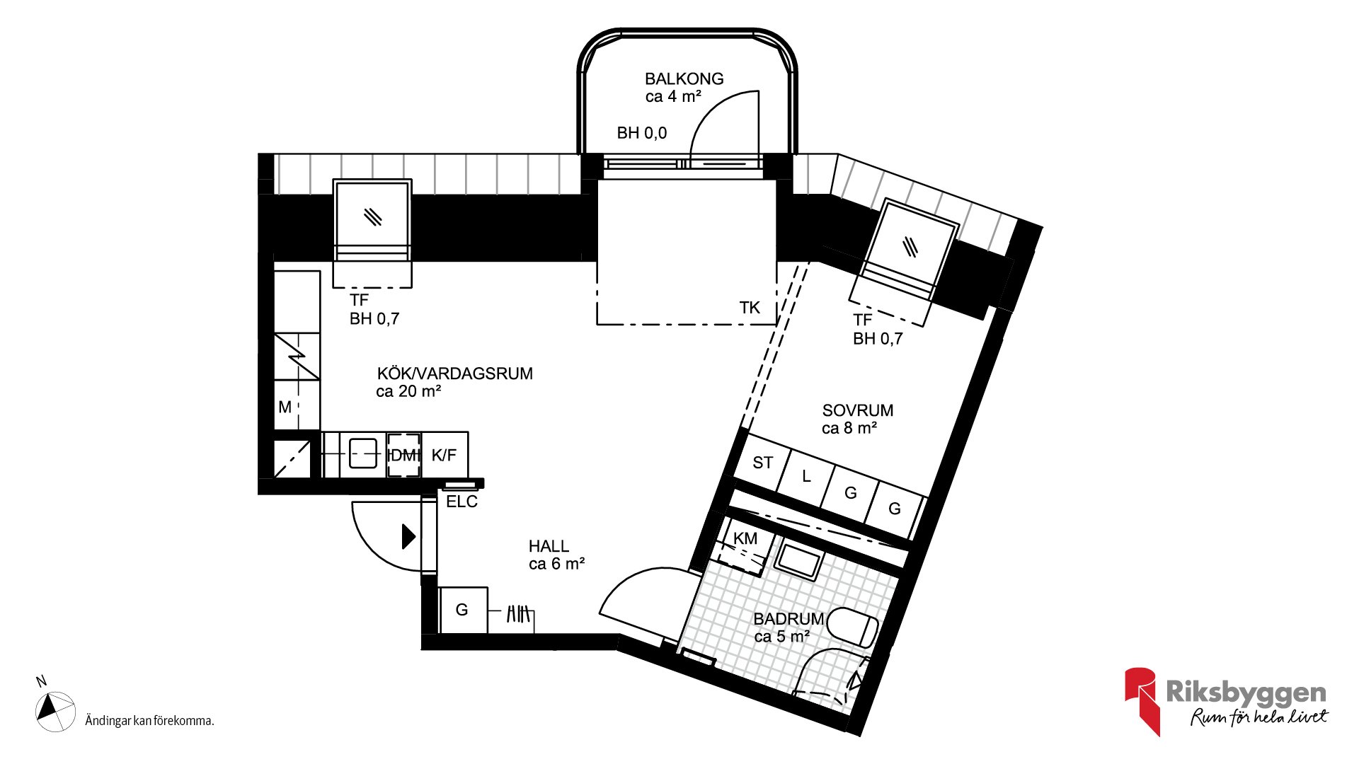
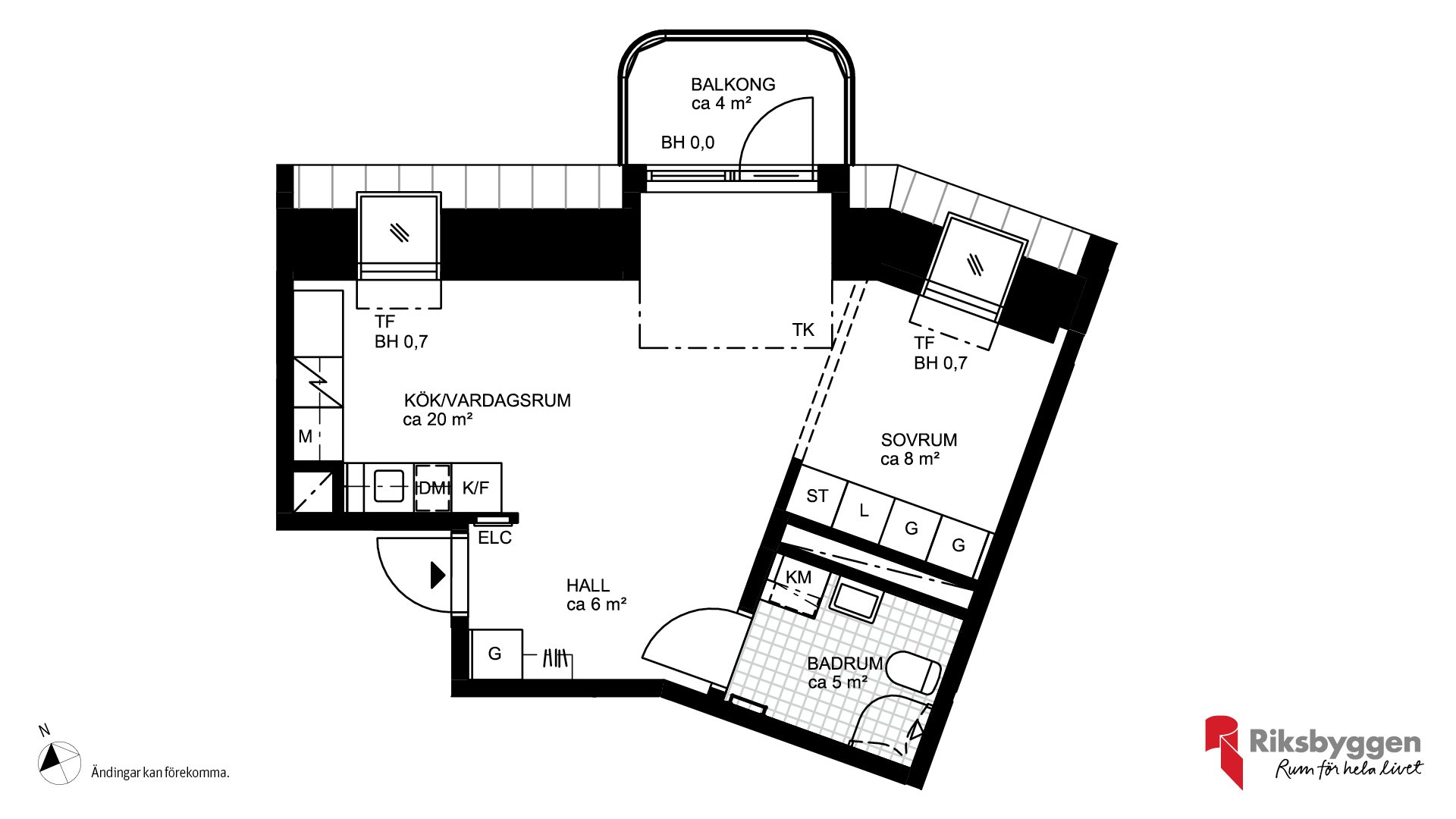
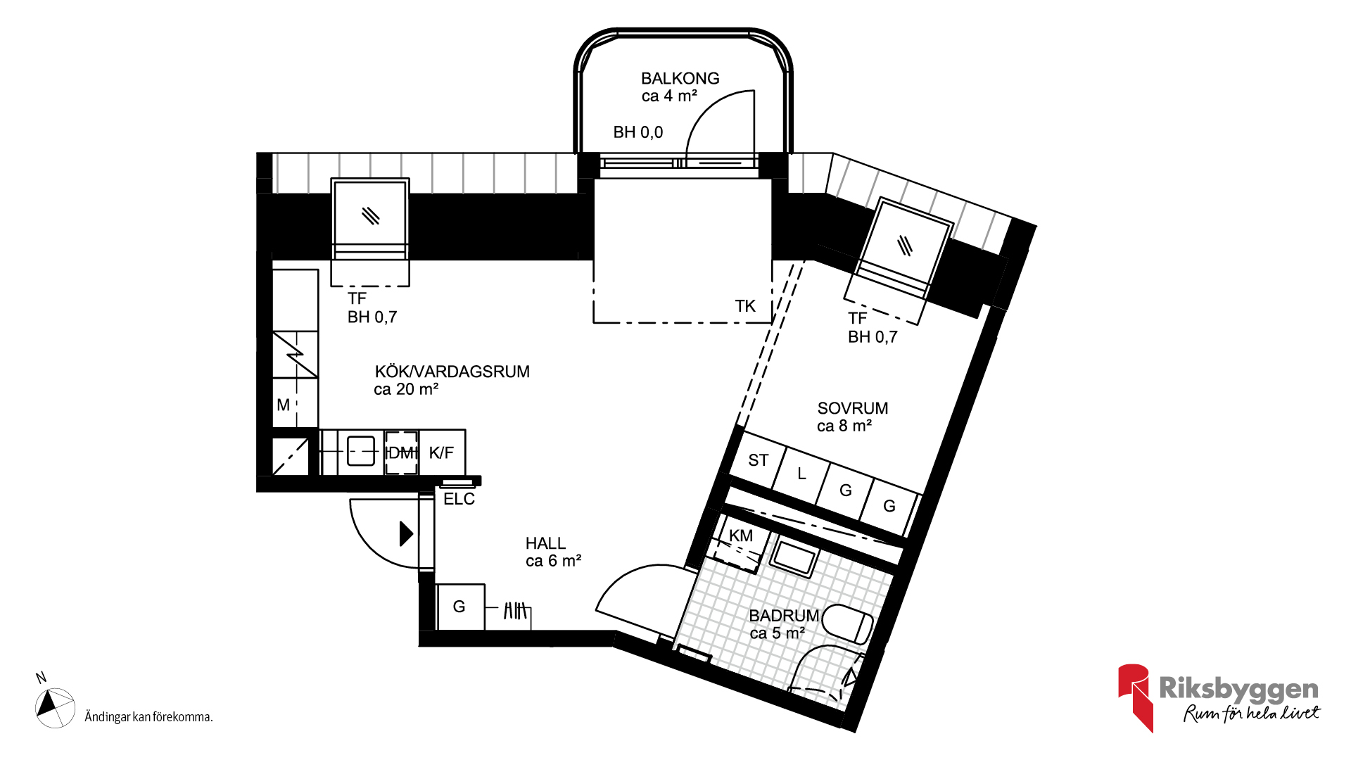
1 rok på 39 kvm med perfekt planlösning högst upp i huset och en köksdesign som är specifik för just detta våningsplan. Här får du en unik design av fräscha köksluckor, stilfullt kakel, moderna beslag och slitstarka bänkskivor. Dessutom har du naturen runt hörnet och pendeln på promenadavstånd.
2021
25 september 2022
Höst 2022
Januari 2024

Nu vågar du köpa innan du sålt! När du köper ditt nya hem i Bro Trädgårdsstad ger vi öppet köp. Du betalar bara handpenning, och om du inte får din gamla lägenhet såld, ja, då får du pengarna tillbaka. Börja drömma om ett nytt boende i Bro Trädgårdsstad.
Fullständiga villkor
Just nu kan du få upp till 30% rabatt på din nya lägenhet. Kontakta mäklaren för mer information.
Vänligen kontakta mäklare för visning.






































Rum
Rummen har vitmålade väggar och socklar. Golven har vitpigementerad, mattlackad 3-stavsparkett.
Kök och badrum
För att du ska känna att din nya bostad verkligen är bara din får varje våningsplan i Brf Odlingslunden sin egen individuella köks- och badrumsdesign - med olika kombinationer på varje våning.
Våra duktiga inredningsdesigners har valt ut och skapat unika kombinationer av fräscha köksluckor, stilfullt kakel, moderna beslag och slitstarka bänkskivor. Detta innebär att du kan hitta just den unika lägenhet som passar det du söker.
Se mer om vilket våningsplan som har vilken inredning i Säljbroschyren.
För utförligare information se säljbroschyren.
Både förskola och skola ligger i området. Runt hörnet ligger Mälaren med många badplatser på sommaren och möjlighet att åka skridskor vintertid.
I Bro finns flera elljusspår av varierande längd som på vintern byter skepnad till plogade skidspår. Är du mer för stationär träning så finns ett utegym. I skogen finns också en väl planerad lekplats där imaginära piratskepp kastar loss och barnen kan låta fantasin flöda fritt.
I närområdet finns fyra golfbanor med trevliga klubbrestauranger. På kvarterskaféet med både bageri och kök erbjuds go-fika, sommarsallader och under vinterhalvåret värmande, hemmagjorda soppor.
Det finns egentligen ingen anledning att lämna Bro Trädgårdsstad, men skulle det ändå behövas så finns pendeln bokstavligt talat runt hörnet. På 31 minuter är du på Odenplan mitt i Stockholm och vill du ta bilen tar det bara tre minuter till.
Det växer så det knakar i Bro och Brf Odlingslunden är den första grogrunden i den hållbara resa vi kallar Bro Trädgårdsstad. Här växer en ny stadsdel upp i Upplands-Bro. En stadsdel med fokus på livskvalitet, natur och välmående. Har du gröna fingrar som kliar finns här en gemensam odling du kan påta i, vattna på och skörda från. Samtidigt ligger bostadsrätterna nära pendeltågsstation som tar dig vidare mot nya resmål.
Brf Odlingslunden består av 55 bostadsrätter i storlekarna 24–93 kvm. Tanken är att det ska finnas något för alla här. Vare sig du flyttar till ditt första boende, om familjen blivit större eller om ditt gamla boende blivit för stort och du behöver något mindre. Det är ettor och fyror, men med en flexibel planlösning. En etta kan bli en tvåa och vice versa.
Ett av det bästa med att flytta in i en alldeles ny lägenhet är att få ett alldeles nytt kök. Med nya snickerier, ny bänkskiva och nya rostfria vitvaror. Våra inredare har valt varje detalj med omsorg för att skapa kök som samtidigt är moderna och tidlösa, och som kommer att hålla stilen länge. Allt är noga utvalt och färdigt att börja skapa matglädje i. Och genom att vi gjort valen från början tillkommer inga extra kostnader, det ingår i priset.
Köket är fullt utrustat med inbyggnadsugn, och mikro, laminatbänkskiva, induktionshäll med touchkontroll, energieffektiv kyl och frys eller kyl /frys och gott om förvaring i dämpade skåp och fullutdragslådor. Det saknas ingenting i ditt nya kök. Förutom alla färskvaror förstås. Men dem kan du inhandla alldeles i närheten.
Även ditt nya badrum har inretts med omsorg om detaljerna. För att helhetsintrycket ska hålla stilen i hela lägenheten har våra inredare noga valt ut kakel och klinker så att det matchar inredningen i köket.
För att du ska känna att din nya bostad verkligen är bara din får varje våningsplan i Brf Odlingslunden sin egen individuella köksdesign. Våra duktiga inredningsdesigners har valt ut och skapat unika kombinationer av fräscha köksluckor, stilfullt kakel, moderna beslag och slitstarka bänkskivor. Olika kombinationer på varje våning. Detta innebär att du kan hitta just den unika lägenhet som passar det du söker.
Bostäderna är ljusa och inredda med naturliga material. På utsidan antingen puts i naturfärger som grön och beige eller tegel. Huset smälter nästan in i omgivningen och de rundade balkongerna vetter här mot öst eller väst. Antingen blir det frukost i morgonsolen eller kanske en fika med kvällssolen som lampa.
Bro och matträdgårdsstaden är mycket mer än yteffektiva, smart planerade och mysiga hem. Du har, bokstavligen, naturen runt hörnet. Antingen i form av den gemensamma odlingen vi satsar på eller i form av skog, ängar och bad i Mälaren. Den gemensamma odlingen är ett litet steg av flera mot en vision om självhushåll, ett grönt liv och en sund syn på miljön. Skogen att promenera eller jogga i, vattnet att paddla på eller simma i eller den anrika golfbanan att spela på – ja, dom ingår liksom i paketet Bro.
Det är fulla med energi och glädje vi säger att något stort och bra håller på att växa upp i Bro. En stadsdel där vi tänkt på det mesta. En stadsdel där livskvalitet och välmående går först. En stadsdel där det är härligt att gro.
Vi vill göra det enkelt för dig som vill komma in på bostadsmarknaden. Hyrköp innebär att du som inte har något förstahandskontrakt eller äger en bostad har möjlighet att hyra en lägenhet med option att köpa den inom fyra år.
I Brf Odlingslunden finns det möjlighet att hyrköpa lägenheter. Är du intresserad kontakta då Michael Westerholm.
Erbjudandet att köpa Hyrköp utan åldersgräns gäller bara för Brf Odlingslunden och Brf Havsbrisen.

Intresserad av att köpa ny bostadsrätt? Här går vi steg för steg igenom hur ett bostadsköp går till.

Allt du behöver veta om att bo och köpa en nyproducerad bostadsrätt, från amortering till årsavgift.

Boende som köpt en lägenhet berättar om sin flytt. Allt från köpet av första lägenheten till flytten från villan.