
I den tredje och sista etappen av populära Äppellunden i Vellinge ska vi bygga 17 familjevänliga tvåplans radhus med äganderätt. Vi har mycket förmånliga betalningsvillkor med endast 300 000 i förskott under byggtiden. Här ges en unik möjlighet att skapa precis det hem du och familjen drömmer om. Här flyttar du in i ett färdigt område i direkt anslutning till Herrestorps trivsamma villakvarter med skolor, parker och lekplatser. Vi har regelbundna visningar under hösten – se tider under ”visningar”. Varmt välkommen till mysiga Äppellunden.
Januari 2025
September 2025
Kvartal 1 2027
Boka in dig på visning till vårt engelsinspirerade äganderättsradhus. Maila till marie.lundstrom@riksbyggen.se och anmäl vilken tid du bill komma på visning mellan 15.30 och 17.30. VI visar antingen ett 2-planshus eller ett 1,5 planshus. Passar inte tiden så hittar vi en annan tid! Välkommen!
Filippagatan 36 i Vellinge
















Se filmen om familjen som flyttade till ett nyproducerat radhus med äganderätt i Uppsala. Moderna hus med stilren arkitektur. Allt är nytt och fräscht och du behöver inte tänka på renovering och oväntade reparationer.
Nu säljstartar vi den tredje och sista etappen av de fina husen i Äppellunden. Läs igenom broschyren för att se vilket av radhusen som passar just dig allra bäst.
I östra Vellinge, där landsbygd möter villaidyll, växer Äppellunden fram. Här skapas en plats där vardagen och livet blir enklare. Den tredje och sista etappen i Äppellunden bjuder på 17 radhus i två hela plan med trädgårdar vända åt väster och gott om plats för hela familjen.
I Äppellunden 3 bor du med naturen runt hörnet och stadens bekvämligheter inom bekvämt pendlingsavstånd. Skola, förskola och fritidsaktiviteter finns bara ett stenkast bort, och det är lätt för barnen att hitta nya kompisar på gatan eller i parkerna mellan de lummiga villakvarteren. För vuxna erbjuder området en skön balans mellan lantlig charm och närhet till allt som underlättar vardagen – perfekt för en aktiv och harmonisk livsstil.
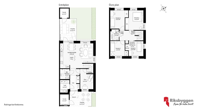
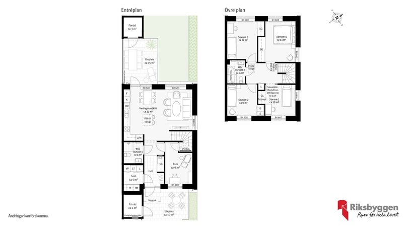
Radhusen i Äppellunden 3 är uppdelade i två husrader med entrésidan vänd mot Olsgårdsgatan och trädgårdar i soligt västerläge. Bostäderna fördelas på två hela plan med minst fyra sovrum och finns i storlekar om 119 kvm respektive 131 kvm. Oavsett storlek får du ett lättskött, modernt hem som ger både bekvämlighet och frihet. En trivsam trädgård med uteplats och lekvänliga grönytor precis utanför dörren skapar en lugn och trygg boendemiljö att kalla er egen.

Objekt | Pris | Antal rum | Area | Status | |
|---|---|---|---|---|---|
Objekt 0029 | 5 750 000 kr | 6 | 119 + 7 kvm | Ledig | |
![]() ![]() ![]() ![]() ![]() ![]() ![]() ![]() ![]() ![]() ![]() ![]() ![]() ![]() ![]() ![]() Radhus med fem sovrumOtroligt välplanerat radhus med hela fem sovrum! Dessutom finns två badrum, separat tvättutrymme, samt soliga uteplatser på båda sidor av huset. Här kommer familjen att trivas! Läs mer om bostaden | |||||
Objekt 0030 | 5 450 000 kr | 6 | 119 + 7 kvm | Ledig | |
![]() ![]() ![]() ![]() ![]() ![]() ![]() ![]() ![]() ![]() ![]() ![]() ![]() ![]() ![]() ![]() Radhus med separat tvättstugaOtroligt välplanerat radhus med hela fem sovrum! Dessutom finns två badrum, separat tvättutrymme, samt soliga uteplatser på båda sidor av huset. Här kommer familjen att trivas! Läs mer om bostaden | |||||
Objekt 0031 | 5 450 000 kr | 6 | 119 + 7 kvm | Ledig | |
![]() ![]() ![]() ![]() ![]() ![]() ![]() ![]() ![]() ![]() ![]() ![]() ![]() ![]() ![]() ![]() Radhus med två uteplatserOtroligt välplanerat radhus med hela fem sovrum! Dessutom finns två badrum, separat tvättutrymme, samt soliga uteplatser på båda sidor av huset. Här kommer familjen att trivas! Läs mer om bostaden | |||||
Objekt 0032 | 5 450 000 kr | 6 | 119 + 7 kvm | Ledig | |
![]() ![]() ![]() ![]() ![]() ![]() ![]() ![]() ![]() ![]() ![]() ![]() ![]() ![]() ![]() ![]() Radhus med äganderättOtroligt välplanerat radhus med hela fem sovrum! Dessutom finns två badrum, separat tvättutrymme, samt soliga uteplatser på båda sidor av huset. Här kommer familjen att trivas! Läs mer om bostaden | |||||
Objekt 0034 | 5 450 000 kr | 6 | 119 + 7 kvm | Ledig | |
![]() ![]() ![]() ![]() ![]() ![]() ![]() ![]() ![]() ![]() ![]() ![]() ![]() ![]() ![]() ![]() Radhus i två planOtroligt välplanerat radhus med hela fem sovrum! Dessutom finns två badrum, separat tvättutrymme, samt soliga uteplatser på båda sidor av huset. Här kommer familjen att trivas! Läs mer om bostaden | |||||
Objekt 0035 | 5 450 000 kr | 6 | 119 + 7 kvm | Ledig | |
![]() ![]() ![]() ![]() ![]() ![]() ![]() ![]() ![]() ![]() ![]() ![]() ![]() ![]() ![]() ![]() Optimalt planerat radhusOtroligt välplanerat radhus med hela fem sovrum! Dessutom finns två badrum, separat tvättutrymme, samt soliga uteplatser på båda sidor av huset. Här kommer familjen att trivas! Läs mer om bostaden | |||||
Objekt 0037 | 5 450 000 kr | 6 | 119 + 7 kvm | Ledig | |
![]() ![]() ![]() ![]() ![]() ![]() ![]() ![]() ![]() ![]() ![]() ![]() ![]() ![]() ![]() ![]() Radhus med soliga uteplatserOtroligt välplanerat radhus med hela fem sovrum! Dessutom finns två badrum, separat tvättutrymme, samt soliga uteplatser på båda sidor av huset. Här kommer familjen att trivas! Läs mer om bostaden | |||||
Objekt 0038 | 5 950 000 kr | 6 | 131 + 7 kvm | Ledig | |
![]() ![]() ![]() ![]() ![]() ![]() ![]() ![]() ![]() ![]() ![]() ![]() ![]() ![]() ![]() ![]() Rymligt radhusOtroligt välplanerat radhus med hela fem sovrum! Dessutom finns två badrum, separat tvättutrymme, samt soliga uteplatser på båda sidor av huset. Här kommer familjen att trivas! Läs mer om bostaden | |||||
Objekt 0045 | 5 750 000 kr | 6 | 119 + 7 kvm | Ledig | |
![]() ![]() ![]() ![]() ![]() ![]() ![]() ![]() ![]() ![]() ![]() ![]() ![]() ![]() ![]() ![]() Gavelradhus med äganderättOtroligt välplanerat radhus med hela fem sovrum! Dessutom finns två badrum, separat tvättutrymme, samt soliga uteplatser på båda sidor av huset. Här kommer familjen att trivas! Läs mer om bostaden | |||||


Funderar du på att köpa äganderätt? Här går vi igenom steg för steg hur köpet går till.

Allt du behöver veta om att bo och köpa en nyproducerad äganderätt. Allt från allmän platsmark till värdeintyg.