
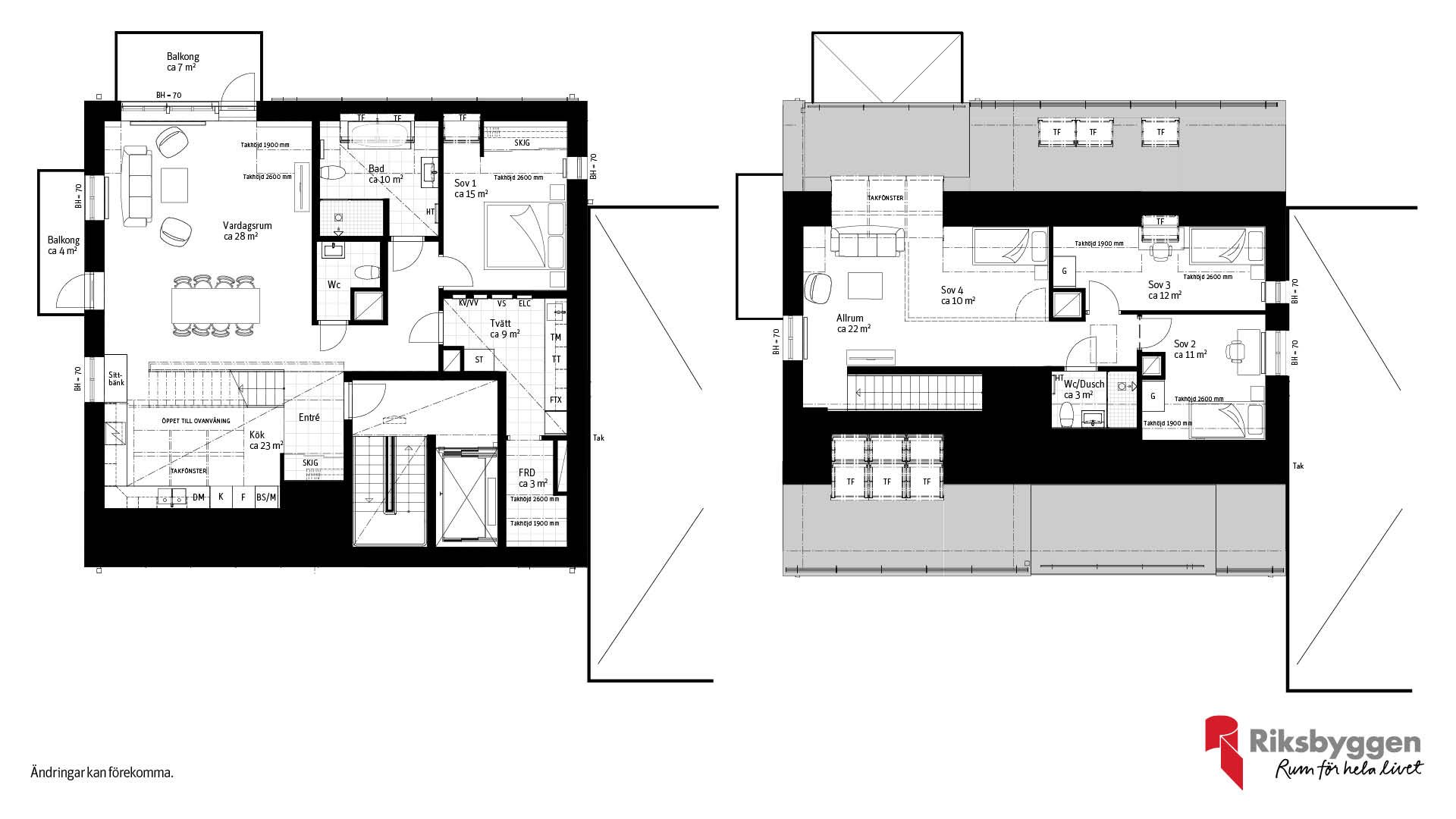
Välkommen till en mycket läcker etagelägenhet med öppen planlösning och ljusinsläpp i alla väderstreck. Unikt kök med öppet upp till nock och stora takfönster. Stort extra badrum med badkar och dusch i anslutning till master bedroom. Stor separat tvättstug med extra förråd.
Juni 2025

För att göra steget in i radhuslivet ännu enklare erbjuder vi nu en begränsad kampanj på våra mittradhus:
Gäller endast nya köpare.

















Allmänt rum
Rumshöjd: Generellt ca 2,50 m, kan finnas lokala avvikelser.
Innertak: Vitmålat.
Vägg: Vitmålat.
Fönsterbänk: Ljus kalksten.
Golv: Mattlackad trestavs ekparkett.
Entré
Klinker 33X33 cm, varmgrå. Skjutdörrsgarderob.
Kök
Kökssnickerier är vit lackerad MDF. Bänkskiva i laminat med infälld ho.
Kyl och frys, rostfritt. Diskmaskin integrerad. Inbyggnadsugn, rostfritt. Induktionshäll. Inbyggd mikrovågsugn svart.
Stänkskydd: Kakel 10X30 cm, matt vit.
Tvätt
Vägg: Vitmålat.
Golv: Klinker 33X33 cm, varmgrå.
Vitvaror/tvätt: tvättmaskin och torktumlare.
Bänkskiva: Laminat.
Överskåp med slät lucka.
Teknik: FTX-aggregat monteras utanför väggskåp.
Skjutdörrsgarderob enligt bofaktablad.
WC/Dusch (Tvätt)
Kakel (vägg): 20X40 cm, matt vit.
Klinker (golv): 33X33 cm, (dusch 10X10 cm) varmgrå.
Spegelskåp med belysning. Kommod med tvättställ, en låda, eluttag för utdragslåda.
Duschväggar i glas.
Handdukstork: El med timer, krom.
Vitvaror/tvätt: Tvättmaskin och torktumlare.
Bänkskiva: Laminat.
Överskåp: Överskåp med slät lucka i samma
kulör som kommod, vit stomme.
Badrum (Endast 172 kvm)
Kakel (vägg): 20X40 cm, matt vit.
Klinker (golv): 33X33 cm, (dusch 10X10 cm) varmgrå.
Spegelskåp med belysning. Kommod med tvättställ, en låda, eluttag för utdragslåda.
Duschväggar i glas.
Badkar.
Handdukstork: El med timer, krom.
WC
Vägg: Vitmålat.
Golv: Klinker 33X33 cm, varmgrå.
Badrumsskåp: Spegel. Kommod med tvättställ, en låda, eluttag för utdragslåda.
WC/Dusch och badrum
Kakel (vägg): 20340 cm, matt vit.
Klinker (golv): 33X33 cm, (dusch 10X10 cm) varmgrå.
Spegelskåp med belysning. Kommod med tvättställ,
en låda, eluttag för utdragslåda.
Duschväggar i glas. (badkar tillval).
Handdukstork: El med timer, krom.
För utförlig information se Säljbroschyr under Dokument oh faktablad.
Beläget endast fem kilometer söder om centrala Helsingborg, är Råå en pärla vid kusten. En gång i tiden ett av Sveriges mest betydelsefulla fiskelägen, lockar Råå idag besökare från när och fjärran med sina orörda stränder, charmiga kullerstensgator och unika butiker. Upplev den enastående naturen och njut av lugnet och skönheten i denna pittoreska by – här finns allt för den som söker det perfekta harmoniska tillflyktsorten vid havet.
Råå är mer än bara en vacker kustby – det är också en livfull samhällskärna med en rad viktiga tjänster och faciliteter. Här hittar du modern vårdcentral, tandläkare och skolor som erbjuder högkvalitativ service för invånarna. Oavsett om det är vårdbehov eller utbildning för barnen, så finns allt inom bekvämt räckhåll i denna charmiga del av Helsingborg.
Geografin runt Råå erbjuder en mängd olika aktiviteter. En stillsam promenad på de lummiga stigarna längs med Råån. En skön cykeltur på de fina cykelvägarna mot Helsingborg eller Rydebäck. En utmanande runda på Rya golfklubbs fantastiska 18-håls bana, där du på kvällen kan stanna till på hål 16 och njuta av en magisk solnedgång. Ett härligt kvällsdopp på det fina kallbadhuset.
Kommunikationsmöjligheterna till och från Råå är utmärkta med regelbundna stadsbussar som avgår var tionde minut och regionbussar som tar dig söderut till platser som Gantofta, Rydebäck, Glumslöv och Landskrona, samt norrut in till Helsingborgs centrum. Dessutom har både Pågatågen och Öresundstågen avgångar från både Ramlösa station och Helsingborgs central.
I närheten finns flera bekväma serviceanläggningar samlade på ett och samma ställe, såsom ICA MAXI, Lidl, Apoteket, Systembolaget och Plantagen. Längs med Rååvägen finner man även ett trevligt urval av mysiga restauranger med olika stilar och kök att välja mellan.
Lägenheterna är skapade med ett tydligt flöde från den inbjudande entrén, vidare mot ett öppet sammanhang som leder till de stora balkongerna som vetter ut mot havet.
Lägenheterna på bottenplan har en stor och väl tilltagen terrass som vetter ut mot den gemensamma innergården i härligt västerläge. Merparten av lägenheterna uppe i huset har minst två balkonger.
Sovrumsdelen med tillhörande badrum ligger mer privat, medan kök, matplats och vardagsrum hänger samman i en öppen planlösning som skapar luftighet och tar vara på både ljus och utsikt på bästa sätt.
För att underlätta ditt val och skapa en harmonisk bas från start, erbjuder Brf Rååbrisen ett inredningskoncept, som ger dig fyra genomtänkta stilar att välja mellan.
Brf Rååbrisen har ett unikt läge med Råån och parken som närmaste grannar, detta tillsammans med en grönskande och lummig innergård som utformas för social samvaro – ger ett hem att längta efter.
Brf Rååbrisen erbjuder möjligheten till tre magnifika och unika penthouse-lägenheter med utsikt åt alla väderstreck. Under dessa återfinns ett varierat urval av lägenheter i högklass med 2-5 rum och kök, med ytor från 70 till 172 kvm. Dessutom finns åtta rymliga radhus på 119 kvm, som kännetecknas av den karakteristiska Råå-arkitekturen.
De tre punkthusen är kopplade direkt till det underjordiska garaget, där alla boende har möjlighet att hyra en plats.
Det finns även ett antal parkeringar på innergården. Dessa platser är försedda med laddbox.
Brf Rååbrisen har en stor gemensam innergård med lummiga växter som binder samma de olika huskropparna. Föreningens miljöhus når man via innergården, dessa ligger centralt för alla boende. Allt för att skapa bekvämlighet och enkelhet.
På innergården finns även en stor öppen och härlig pergola som kommer bjuda in till samkväm och social samvaro. En plats där grannarna kan samlas en solig fredag kväll, eller kanske tända grillen innan den klassiska julskyltningen på Råå. Innergården kommer skapa ett lugn och en trygg plats att umgås på.