
Upptäck Brf Rååbrisen, ditt drömboende på det förtrollande fiskeläget Råå. Beläget endast fem kilometer söder om centrala Helsingborg, är Råå en pärla vid kusten.
Juni 2025

För att göra steget in i radhuslivet ännu enklare erbjuder vi nu en begränsad kampanj på våra mittradhus:
Gäller endast nya köpare.

















Lägenheterna är skapade med ett tydligt flöde från den inbjudande entrén, vidare mot ett öppet sammanhang som leder till de stora balkongerna som vetter ut mot havet.
Lägenheterna på bottenplan har en stor och väl tilltagen terrass som vetter ut mot den gemensamma innergården i härligt västerläge. Merparten av lägenheterna uppe i huset har minst två balkonger.
Sovrumsdelen med tillhörande badrum ligger mer privat, medan kök, matplats och vardagsrum hänger samman i en öppen planlösning som skapar luftighet och tar vara på både ljus och utsikt på bästa sätt.
För att underlätta ditt val och skapa en harmonisk bas från start, erbjuder Brf Rååbrisen ett inredningskoncept, som ger dig fyra genomtänkta stilar att välja mellan.
Brf Rååbrisen har ett unikt läge med Råån och parken som närmaste grannar, detta tillsammans med en grönskande och lummig innergård som utformas för social samvaro – ger ett hem att längta efter.
Brf Rååbrisen erbjuder möjligheten till tre magnifika och unika penthouse-lägenheter med utsikt åt alla väderstreck. Under dessa återfinns ett varierat urval av lägenheter i högklass med 2-5 rum och kök, med ytor från 70 till 172 kvm. Dessutom finns åtta rymliga radhus på 119 kvm, som kännetecknas av den karakteristiska Råå-arkitekturen.
De tre punkthusen är kopplade direkt till det underjordiska garaget, där alla boende har möjlighet att hyra en plats.
Det finns även ett antal parkeringar på innergården. Dessa platser är försedda med laddbox.
Brf Rååbrisen har en stor gemensam innergård med lummiga växter som binder samma de olika huskropparna. Föreningens miljöhus når man via innergården, dessa ligger centralt för alla boende. Allt för att skapa bekvämlighet och enkelhet.
På innergården finns även en stor öppen och härlig pergola som kommer bjuda in till samkväm och social samvaro. En plats där grannarna kan samlas en solig fredag kväll, eller kanske tända grillen innan den klassiska julskyltningen på Råå. Innergården kommer skapa ett lugn och en trygg plats att umgås på.

Här kan du titta på huset, se vilka lägenheter som finns, var i huset de ligger och hitta din favoritlägenhet.
Objekt | Pris | Avgift | Antal rum | Area | Våning | Status | |
|---|---|---|---|---|---|---|---|
Objekt 1001 | 5 295 000 kr | 7 671 kr | 4 | 104 kvm | 1 av 5 | Ledig | |
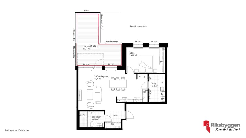
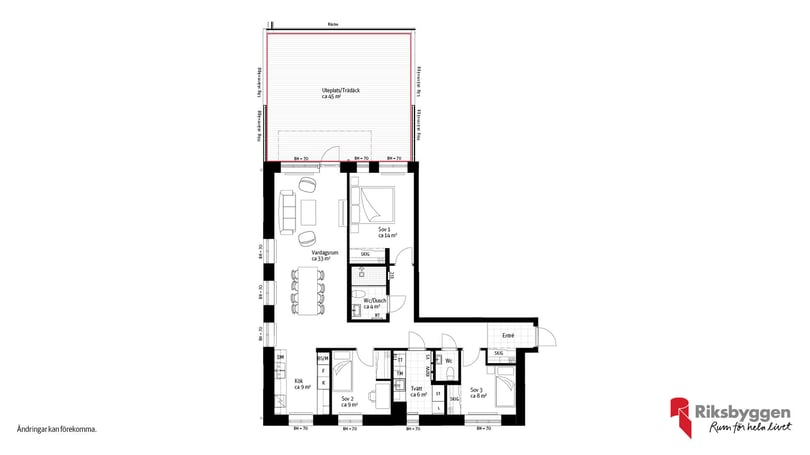
![]() ![]() ![]() ![]() ![]() ![]() ![]() ![]() ![]() ![]() ![]() ![]() ![]() ![]() ![]() ![]() ![]() 4:a med stor uteplats4 rum och kök i markplan med en uteplats som mäter hela 45 kvm i lugnt sydväst läge. Öppen och luftig planlösning med dagsljus från tre väderstreck. Badrum med stort duschutrymme i nära anslutning till det stora sovrummet. Det stora sovrummet, liksom de två andra har inbyggda skjutdörrsgarderober för bra förvaring. Separat tvättstuga så du slipper ha eventuellt stök i sikte. Här finns såklart både tvättmaskin, torktumlare och förvaringsmöjligheter. Läs mer om bostaden | |||||||
Objekt 1002 | 3 595 000 kr | 5 503 kr | 2 | 70 kvm | 1 av 5 | Ledig | |
![]() ![]() ![]() ![]() ![]() ![]() ![]() ![]() ![]() ![]() ![]() ![]() ![]() ![]() ![]() ![]() ![]() 2:a med öppen planlösning2 rum och kök i markplan med stort trädäck/uteplats i sydvästläge. Öppen och luftig planlösning och separat tvättstuga. Läs mer om bostaden | |||||||
Objekt 1101 | 5 250 000 kr | 7 691 kr | 4 | 104 kvm | 2 av 5 | Ledig | |
![]() ![]() ![]() ![]() ![]() ![]() ![]() ![]() ![]() ![]() ![]() ![]() ![]() ![]() ![]() ![]() ![]() 4:a med två balkonger4 rum och kök med två balkonger i olika lägen. Öppen och luftig planlösning med dagsljus från tre väderstreck. Separat tvättstuga. Läs mer om bostaden | |||||||
Objekt 1102 | 3 595 000 kr | 5 418 kr | 2 | 70 kvm | 2 av 5 | Ledig | |
![]() ![]() ![]() ![]() ![]() ![]() ![]() ![]() ![]() ![]() ![]() ![]() ![]() ![]() ![]() ![]() ![]() Rymlig 2:a med balkongVälkommen till ett boende som kombinerar det bästa av två världar - natursköna omgivningar och närhet till stadens puls. Det luftiga vardagsrummet med öppen planlösning mot köket har direkt access till en härlig balkong i syväst - den perfekta platsen för avkoppling i eftermiddag- och kvällssolen. Det stora badrummet imponerar med en enorm duschhörna. Det är ovanligt att en tvåa har en separat tvättstuga, men så är fallet i denna bostad - gott om förvaring! Läs mer om bostaden | |||||||
Objekt 1103 | 4 295 000 kr | 6 365 kr | 3 | 78 kvm | 2 av 5 | Ledig | |
![]() ![]() ![]() ![]() ![]() ![]() ![]() ![]() ![]() ![]() ![]() ![]() ![]() ![]() ![]() ![]() ![]() 3:a med tre balkongerModern trea med tre balkonger - ljus, komfort och livskvalitet i Brf Rååbrisen Välkommen till denna välplanerade trea om 78 kvm - ett boende som kombinerar stilren arkitektur, smart planlösning och närhet till havet. Läs mer om bostaden | |||||||
Objekt 1201 | 5 695 000 kr | 7 723 kr | 4 | 104 kvm | 3 av 5 | Ledig | |
![]() ![]() ![]() ![]() ![]() ![]() ![]() ![]() ![]() ![]() ![]() ![]() ![]() ![]() ![]() ![]() ![]() 4:a med öppen planlösning4 rum och kök med två balkonger i olika lägen. Öppen och luftig planlösning med dagsljus från tre väderstrek. Separat tvättstuga. Läs mer om bostaden | |||||||
Objekt 1202 | 3 750 000 kr | 5 443 kr | 2 | 70 kvm | 3 av 5 | Ledig | |
![]() ![]() ![]() ![]() ![]() ![]() ![]() ![]() ![]() ![]() ![]() ![]() ![]() ![]() ![]() ![]() ![]() Stor 2:a med öppen planlösningVälkommen till ett boende som kombinerar det bästa av två världar - natursköna omgivningar och närhet till stadens puls. Det luftiga vardagsrummet med öppen planlösning mot köket har direkt access till en härlig balkong i syväst - den perfekta platsen för avkoppling i eftermiddag- och kvällssolen. Det stora badrummet imponerar med en enorm duschhörna. Det är ovanligt att en tvåa har en separat tvättstuga, men så är fallet i denna bostad - gott om förvaring! Läs mer om bostaden | |||||||
Objekt 1203 | 4 695 000 kr | 6 269 kr | 3 | 78 kvm | 3 av 5 | Ledig | |
![]() ![]() ![]() ![]() ![]() ![]() ![]() ![]() ![]() ![]() ![]() ![]() ![]() ![]() ![]() ![]() ![]() 3:a med öppen planlösning3 rum och kök med två balkonger i olika väderstreck! Öppen och luftig planlösning med dagsljus från tre håll. Läs mer om bostaden | |||||||
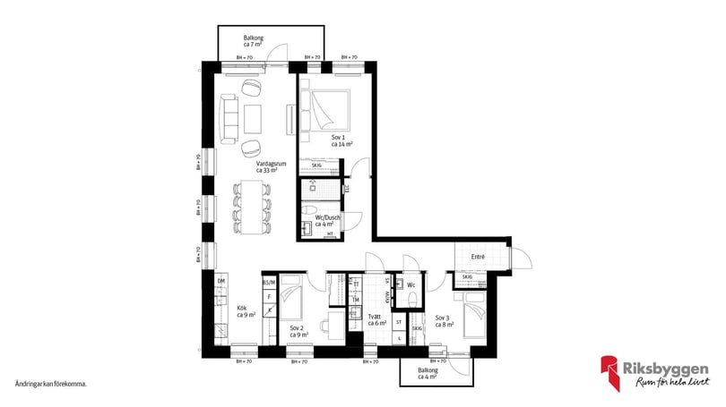
Objekt 1301 | 7 195 000 kr | 9 332 kr | 4 | 136 kvm | 4 av 5 | Reserverad | |
![]() ![]() ![]() ![]() ![]() ![]() ![]() ![]() ![]() ![]() ![]() ![]() ![]() ![]() ![]() ![]() ![]() Stor vindsvåning med flexibel planlösningLäcker vindsvåning och flexibla 4 rum och kök med öppen planlösning och fönster/takfönster i alla väderstreck. Två balkonger i olika lägenhet och stort kök med köksö. Extra Wc/dusch till master bedroom. Vill du ha ytterligare ett större sovrum istället för två små kan du välja bort väggen mellan... Läs mer om bostaden | |||||||
Objekt 1302 | 6 495 000 kr | 8 033 kr | 4 | 111 kvm | 4 av 5 | Ledig | |
![]() ![]() ![]() ![]() ![]() ![]() ![]() ![]() ![]() ![]() ![]() ![]() ![]() ![]() ![]() ![]() ![]() 4:a högt upp i husetFlexibel 4 rum och kök med två balkonger i olika lägen. Öppen och luftig planlösning med dagsljus från tre väderstreck. Privat del med sovrum, walk-in-closet, separat tvättstuga och wc/d. Vill du ha stora ytor men är nödvändigtvis inte i behov av tre sovrum så kan du välja bort väggen mellan sovrum... Läs mer om bostaden | |||||||
Beläget endast fem kilometer söder om centrala Helsingborg, är Råå en pärla vid kusten. En gång i tiden ett av Sveriges mest betydelsefulla fiskelägen, lockar Råå idag besökare från när och fjärran med sina orörda stränder, charmiga kullerstensgator och unika butiker. Upplev den enastående naturen och njut av lugnet och skönheten i denna pittoreska by – här finns allt för den som söker det perfekta harmoniska tillflyktsorten vid havet.
Råå är mer än bara en vacker kustby – det är också en livfull samhällskärna med en rad viktiga tjänster och faciliteter. Här hittar du modern vårdcentral, tandläkare och skolor som erbjuder högkvalitativ service för invånarna. Oavsett om det är vårdbehov eller utbildning för barnen, så finns allt inom bekvämt räckhåll i denna charmiga del av Helsingborg.
Geografin runt Råå erbjuder en mängd olika aktiviteter. En stillsam promenad på de lummiga stigarna längs med Råån. En skön cykeltur på de fina cykelvägarna mot Helsingborg eller Rydebäck. En utmanande runda på Rya golfklubbs fantastiska 18-håls bana, där du på kvällen kan stanna till på hål 16 och njuta av en magisk solnedgång. Ett härligt kvällsdopp på det fina kallbadhuset.
Kommunikationsmöjligheterna till och från Råå är utmärkta med regelbundna stadsbussar som avgår var tionde minut och regionbussar som tar dig söderut till platser som Gantofta, Rydebäck, Glumslöv och Landskrona, samt norrut in till Helsingborgs centrum. Dessutom har både Pågatågen och Öresundstågen avgångar från både Ramlösa station och Helsingborgs central.
I närheten finns flera bekväma serviceanläggningar samlade på ett och samma ställe, såsom ICA MAXI, Lidl, Apoteket, Systembolaget och Plantagen. Längs med Rååvägen finner man även ett trevligt urval av mysiga restauranger med olika stilar och kök att välja mellan.