
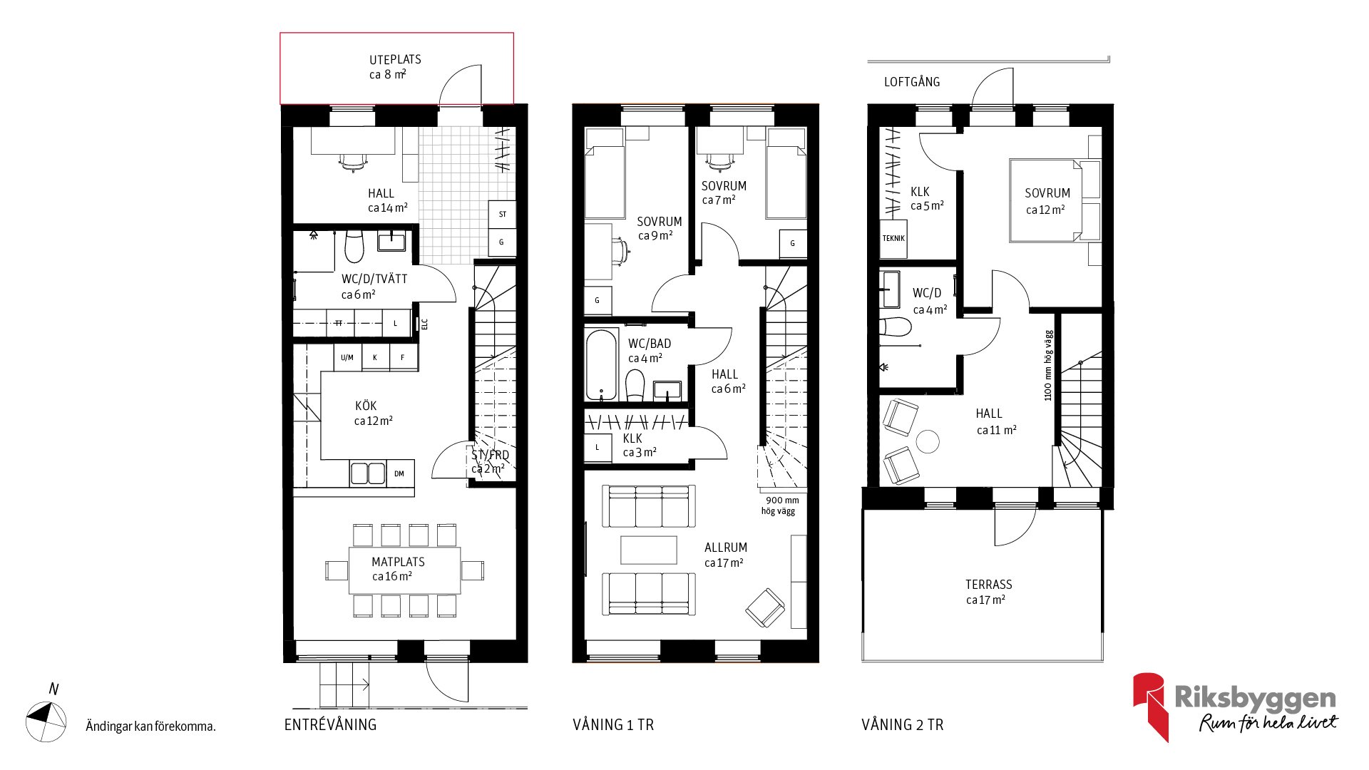
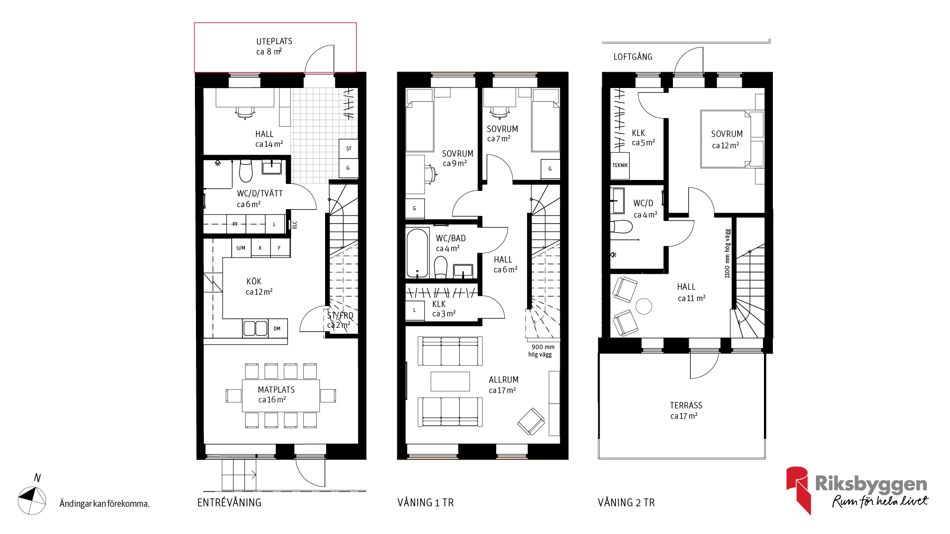
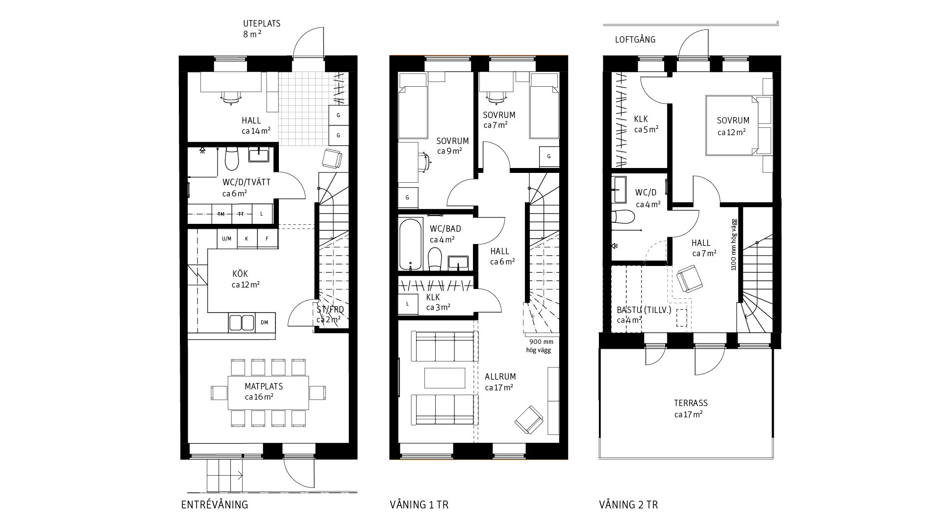
Nytänkande och urbant stadsradhus på tre plan i hjärtat av Inre hamnen. Här finner du ett stadsradhus om 144 kvm fördelat på fem rum och kök och med både uteplats och egen terrass om 17 kvm i högt, soligt läge. Entréplanet erbjuder en välkomnande hall, ett helkaklat badrum med egna tvättmöjligheter och ett trivsamt kök med rymlig plats för matbord intill för hela familjen. På plan två finns två sovrum, ett helkaklat badrum, klädkammare och ett perfekt allrum för socialt umgänge.
November 2022
Augusti 2023
Kv. 2 2024
September 2024
Just nu bjuder vi på 12 månadsavgifter - ersättning som engångsutbetalning!*
*Vid köp av bostad i Brf Kronomagasinet får du just nu ta del av vårt erbjudande: bo avgiftsfritt i 12 månader. Ersättningen för månadsavgifterna betalas ut som en engångsutbetalning kort efter tillträdet.
Vill du komma på visning är du välkommen att kontakta vår mäklare. Mejla direkt till Alexander Bergh eller ring 0704-88 00 99.
























Rummen har vitmålade väggar och socklar. Vita garderober och innerdörrar. Fönsterbänkar av natursten.
Golven har mattlackad 3-stavs ekparkett.
Vita eller grå skåpssnickerier från Vedum (Maja), vitt kakel, samt rostfria vitvaror från Electrolux (kyl/frys, induktionshäll, inbyggnadsugn, inbyggnadsmicro, helintegrerad diskmaskin). Grå eller träfärgad laminatbänkskiva,
Stadsradhuset har skogsgröna skåpsnickerier från Vedum (Maja), träfärgad laminatbänkskiva med uppvik som stänkskydd, samt rostfria vitvaror från Electrolux (kyl/frys, induktionshäll, inbyggnadsugn, inbyggnadsmicro, helintegrerad diskmaskin).
Golv: Klinker grå 15x15 cm
Väggar: Kakel vit eller gråbeige matt 25x50 cm
Golvmonterad WC-stol
Inredning från Svedbergs, spegelskåp med belysning, kommod med tvättställ vit, väggskåp över tvättmaskin och torktumlare vit.
Duschväggar i klart glas.
Stadsradhuset har beigegrönt kommod för tvättställ och väggskåp. Kakel och klinker i beigegrå.
För detaljerad information och inredningslista, se separat pdf för resepktive objekt.
Om Brf Kronomagasinet
Brf Kronomagasinet har två stora gemensamma takterrasser och en lummig innergård, med ett växthus på ena takterrassen och odlingslådor på gården.
Det finns en stor gemensamhetslokal och övernattningsrum för dina långväga gäster. Du får tillgång till cykelpool och cykelverkstad.
Inre Hamnen växer fram som en ny, levande del av Norrköpings innerstad – en plats för liv, möten och rörelse. Här finns redan kafé, kiosk, frisörer och obemannad matbutik, och i takt med att området utvecklas tillkommer restauranger, service och verksamheter som skapar liv även på kvällstid.
Här är det enkelt att njuta av vardagen. Strosa längs kajen i kvällssolen, slå dig ner med en bok i någon av de gröna parkerna, ta en glass på torget eller hyr en kajak och upptäck kanalerna från vattnet. I Inre Hamnen är vattnet alltid nära – och en självklar del av livet.
Med ett attraktivt läge precis vid vattnet och bara några minuters promenad till resecentrum bor du både centralt och bekvämt. Oavsett om du pendlar, reser eller tar bilen har du nära till kollektivtrafik, stadskärnan och motorvägen.
När området står färdigt kommer Inre Hamnen att rymma cirka 3 000 bostäder och hundratals arbetsplatser och bland annat skolor, butiker, restauranger, caféer och andra besöksmål.
Redan idag är delar av Inre Hamnen öppna för allmänheten med kajstråk, bryggor, parkmiljöer och badplatser. Kommunen färdigställer löpande gator och offentliga rum i takt med att bostäderna byggs – allt för att skapa en trygg, trivsam och levande stadsdel.
Här möts stadspuls och vattenliv i en modern innerstadsmiljö att njuta av – året runt.
I Inre hamnen i Norrköping erbjuder vi 46 bostadsrätter om 1-5 rum och kök. Från små, yteffektiva lägenheter till stora, representativa stadsradhus för hela familjen. Vi blandar trä och en varierad tegelfasad för att låta husen smälta in i den gamla hamnens industriella själ.
De flesta av våra bostadsrätter har en solig balkong, terrass eller uteplats. Här slipper du allt underhåll som ett hus innebär. Och skulle du sakna trädgårdsarbetet är det bara att besöka växthuset och odlingarna på taket.
Att flytta in i en ny bostad ska kännas enkelt. Därför är köket redan färdigt med moderna, tidlösa materialval och full utrustning. Nya snickerier, laminatbänkskiva och rostfria vitvaror skapar en stilren helhet som håller över tid – allt ingår i priset.
Här finns induktionshäll med touchkontroll, inbyggnadsugn och mikro, energieffektiv kyl/frys samt generösa förvaringslösningar med dämpade skåp och fullutdragslådor. Ett kök att trivas i, både till vardag och fest.
Badrummet är lika omsorgsfullt utformat, med kakel och klinker som matchar kökets färg- och materialval. Resultatet är ett enhetligt, lugnt och elegant intryck i hela bostaden.
På den rofyllda innergården finns rum för både möten och vila. Svalka dig under pergolan med klätterväxter som ger skugga och sedan klättrar vidare upp längs loftgångsbalkongerna. Här finns även för insektshotell, fågelholkar och fågelbad för att ge stadens allra minsta invånare någonstans att bo.
På taket hittar du bostadsrättsföreningens gemensamma terrass i soligt söderläge, som ligger vänd mot parken och en av kanalerna. Varför inte bjuda in vännerna på ett kalas i den bokningsbara gemensamhetslokalen och duka upp en härlig plockbuffé på köksön. Efteråt stannar såklart vännerna över i föreningens lilla hotellrum, som kan bokas mot en mindre kostnad.
Vi tror på hållbarhet. I både stort och smått. Fastigheten är klimatneutral, vilket betyder att elen kommer från förnyelsebara källor i form av vindkraft och solceller. Och med cykelpoolen och föreningens cykelverkstad är det lätt att trampa för ett grönare Norrköping varje dag.
I markplan har vi placerat den rymliga cykelverkstaden. Med stora, ljusa fönster mot den mysiga gränden. Det blir varken enklare eller tryggare att ta hand om cykeln hemma än så här.
Vi vill underlätta för dig som är ung att köpa en bostad. Riksbyggens modell Hyrköp vänder sig till dig mellan 18 och 35 år och innebär att du kan hyra en bostad med möjlighet att köpa den inom fyra år. Här kan du läsa mer om hur Hyrköp fungerar.
Kontakta våra mäklare för mer information om hyrköp och aktuella hyrköpslägenheter.
Du kan följa utvecklingen av Inre hamnen både på Norrköpings kommuns hemsida och via webbkameran här: