
Gör din bästa bostadsaffär i Inre hamnen i Norrköping! Just nu har vi riktigt bra priserbjudanden för dig som köper en ny bostad i denna fina och inflyttningsklara fastighet. Kontakta våra mäklare för mer information och boka in visning. Säkra din lägenhet idag - priser och planlösningar hittar du i bostadsväljaren längre ner på sidan!
November 2022
Augusti 2023
Kv. 2 2024
September 2024
Just nu bjuder vi på 12 månadsavgifter - ersättning som engångsutbetalning!*
*Vid köp av bostad i Brf Kronomagasinet får du just nu ta del av vårt erbjudande: bo avgiftsfritt i 12 månader. Ersättningen för månadsavgifterna betalas ut som en engångsutbetalning kort efter tillträdet.
Vill du komma på visning är du välkommen att kontakta vår mäklare. Mejla direkt till Alexander Bergh eller ring 0704-88 00 99.



















I Inre hamnen i Norrköping erbjuder vi 46 bostadsrätter om 1-5 rum och kök. Från små, yteffektiva lägenheter till stora, representativa stadsradhus för hela familjen. Vi blandar trä och en varierad tegelfasad för att låta husen smälta in i den gamla hamnens industriella själ.
De flesta av våra bostadsrätter har en solig balkong, terrass eller uteplats. Här slipper du allt underhåll som ett hus innebär. Och skulle du sakna trädgårdsarbetet är det bara att besöka växthuset och odlingarna på taket.
Att flytta in i en ny bostad ska kännas enkelt. Därför är köket redan färdigt med moderna, tidlösa materialval och full utrustning. Nya snickerier, laminatbänkskiva och rostfria vitvaror skapar en stilren helhet som håller över tid – allt ingår i priset.
Här finns induktionshäll med touchkontroll, inbyggnadsugn och mikro, energieffektiv kyl/frys samt generösa förvaringslösningar med dämpade skåp och fullutdragslådor. Ett kök att trivas i, både till vardag och fest.
Badrummet är lika omsorgsfullt utformat, med kakel och klinker som matchar kökets färg- och materialval. Resultatet är ett enhetligt, lugnt och elegant intryck i hela bostaden.
På den rofyllda innergården finns rum för både möten och vila. Svalka dig under pergolan med klätterväxter som ger skugga och sedan klättrar vidare upp längs loftgångsbalkongerna. Här finns även för insektshotell, fågelholkar och fågelbad för att ge stadens allra minsta invånare någonstans att bo.
På taket hittar du bostadsrättsföreningens gemensamma terrass i soligt söderläge, som ligger vänd mot parken och en av kanalerna. Varför inte bjuda in vännerna på ett kalas i den bokningsbara gemensamhetslokalen och duka upp en härlig plockbuffé på köksön. Efteråt stannar såklart vännerna över i föreningens lilla hotellrum, som kan bokas mot en mindre kostnad.
Vi tror på hållbarhet. I både stort och smått. Fastigheten är klimatneutral, vilket betyder att elen kommer från förnyelsebara källor i form av vindkraft och solceller. Och med cykelpoolen och föreningens cykelverkstad är det lätt att trampa för ett grönare Norrköping varje dag.
I markplan har vi placerat den rymliga cykelverkstaden. Med stora, ljusa fönster mot den mysiga gränden. Det blir varken enklare eller tryggare att ta hand om cykeln hemma än så här.
Vi vill underlätta för dig som är ung att köpa en bostad. Riksbyggens modell Hyrköp vänder sig till dig mellan 18 och 35 år och innebär att du kan hyra en bostad med möjlighet att köpa den inom fyra år. Här kan du läsa mer om hur Hyrköp fungerar.
Kontakta våra mäklare för mer information om hyrköp och aktuella hyrköpslägenheter.
Du kan följa utvecklingen av Inre hamnen både på Norrköpings kommuns hemsida och via webbkameran här:

I bostadsväljaren kan du titta på huset och hitta din favoritlägenhet.
Objekt | Pris | Avgift | Antal rum | Area | Våning | Status | |
|---|---|---|---|---|---|---|---|
Objekt 1141 | 3 495 000 kr | 5 940 kr | 3 | 77 kvm | 4 av 7 | Ledig | |
![]() ![]() ![]() ![]() ![]() ![]() ![]() ![]() ![]() ![]() ![]() Gaveltrea med två balkongerTa chansen till att förvärva denna 3:a med gavelläge om 78 kvm på fjärde våningen. Här möts du av en inbjudande hall, öppen planlösning mellan kök och vardagsrum, två trevliga balkonger, två sovrum och ett helkaklat badrum med egna tvättmöjligheter. Läs mer om bostaden | |||||||
Objekt 1151 | 4 495 000 kr | 7 311 kr | 4 | 98 kvm | 5 av 7 | Ledig | |
![]() ![]() ![]() ![]() ![]() ![]() ![]() ![]() ![]() ![]() ![]() ![]() ![]() ![]() ![]() ![]() ![]() ![]() ![]() 4:a med balkong i sollägeVälkommen till en optimalt planerad 4:a på våning 5 om 98 kvm i Inre hamnen! Lägenheten har en härlig balkong med bra solläge och insidan erbjuder en öppen planlösning mellan kök och vardagsrum. Köket är välutrustat med gott om förvaring och arbetsytor. Två helkaklade badrum med tvättmaskin och... Läs mer om bostaden | |||||||
Objekt 1161 | 4 695 000 kr | 7 311 kr | 4 | 98 kvm | 6 av 7 | Ledig | |
![]() ![]() ![]() ![]() ![]() ![]() ![]() ![]() ![]() ![]() ![]() ![]() ![]() ![]() ![]() Fantastisk 4:a med underbar utsiktIngen avgift första året! Välkommen hem till en optimalt planerad 4:a på våning sex om 98 kvm i Inre hamnen! Härlig balkong med bra solläge och insidan erbjuder en öppen planlösning mellan kök och vardagsrum, tre trevliga sovrum samt två helkaklade badrum med egna tvättmöjligheter. Goda... Läs mer om bostaden | |||||||
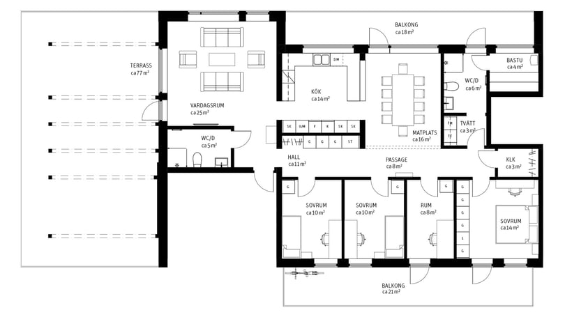
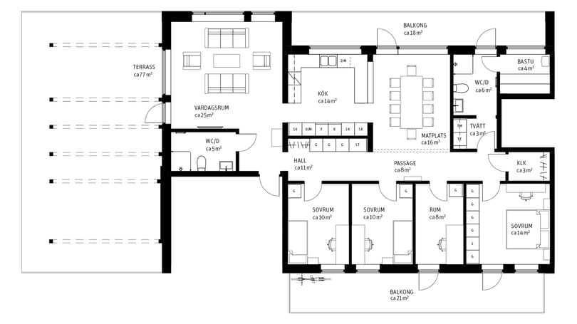
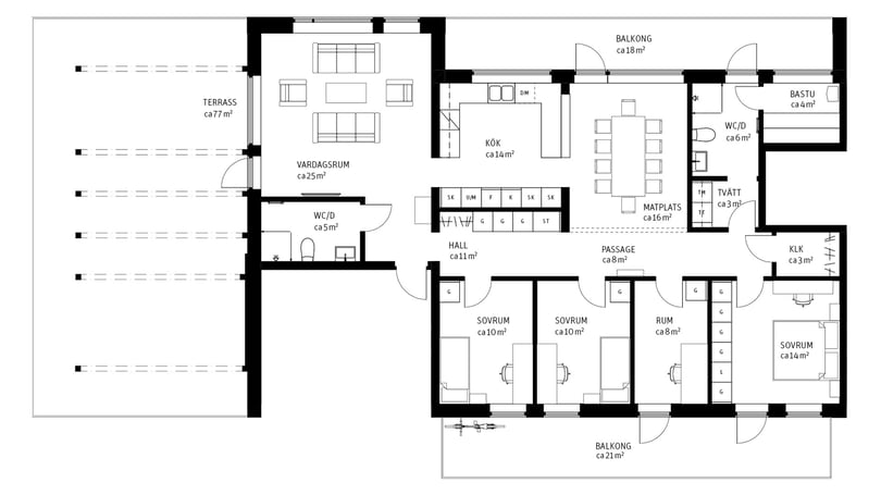
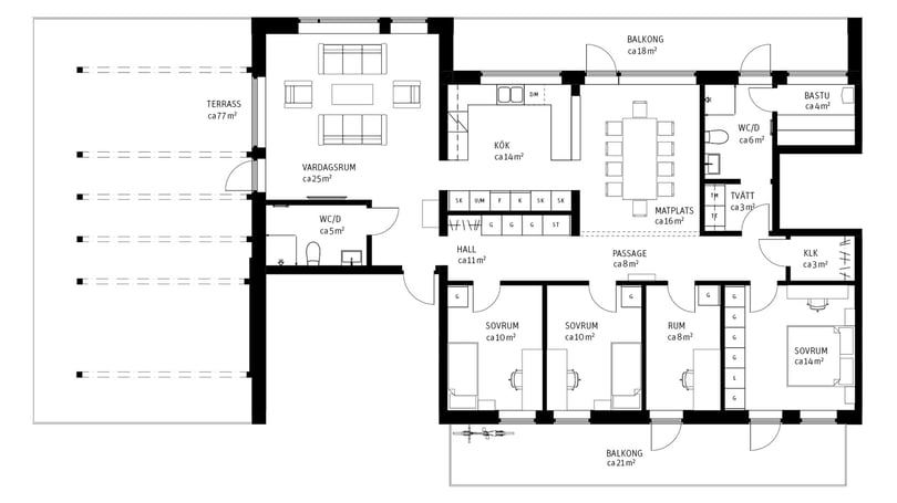
Objekt 1171 | 10 995 000 kr | 11 285 kr | 5 | 145 kvm | 7 av 7 | Ledig | |
![]() ![]() ![]() ![]() ![]() ![]() ![]() ![]() ![]() ![]() ![]() ![]() ![]() ![]() ![]() ![]() ![]() ![]() ![]() ![]() ![]() ![]() ![]() ![]() ![]() ![]() ![]() Unik 5:a med 77 kvm terrass och två balkongerVälkommen till denna unika 5:a högst upp i huset om hela 145 kvm. Här får du två stora balkonger och en fantastisk terrass om 77 kvm i bra solläge. Välutrustat kök med bra förvaring och arbetsytor. Intill köket finns en rymlig yta med plats för ett matbord till hela familjen. Två badrum, varav det... Läs mer om bostaden | |||||||
Objekt 1231 | 2 995 000 kr | 6 823 kr | 3 | 89 kvm | 3 av 7 | Ledig | |
![]() ![]() ![]() ![]() ![]() ![]() ![]() ![]() ![]() ![]() ![]() ![]() ![]() ![]() ![]() ![]() ![]() Rymlig 3:a med två balkongerVälkommen hem till denna enastående 3:a om hela 89 kvm på våning 3. Insidan erbjuder öppen planlösning mellan kök och vardagsrum, master bedroom, ett mindre sovrum och två helkaklade badrum med egna tvättmöjligheter. Här får du också två balkonger, den ena om 15 kvm i bra solläge med utgång från vardagsrummet. Läs mer om bostaden | |||||||
Objekt 1241 | 3 795 000 kr | 6 823 kr | 3 | 89 kvm | 4 av 7 | Ledig | |
![]() ![]() ![]() ![]() ![]() ![]() ![]() ![]() ![]() ![]() ![]() Väldisponerad 3:aVälkommen hem till denna enastående 3:a om hela 89 kvm på våning 4. Insidan erbjuder öppen planlösning mellan kök och vardagsrum, ett master bedroom, ett mindre sovrum och två helkaklade badrum med egna tvättmöjligheter. Här får du också två balkonger, den ena om 15 kvm i bra solläge med utgång från vardagsrummet. Läs mer om bostaden | |||||||
Objekt 1242 | 1 495 000 kr | 3 471 kr | 1 | 31 kvm | 4 av 7 | Ledig | |
![]() ![]() ![]() ![]() ![]() ![]() ![]() ![]() ![]() ![]() ![]() ![]() ![]() ![]() ![]() ![]() ![]() 1:a med balkong på 9 kvmYteffektiv 1:a om 31 kvm på våning 4 med en inbjudande hall, helkaklat badrum med egna tvättmöjligheter, kök och allrum med utgång till en balkong om 9 kvm i bra solläge. Läs mer om bostaden | |||||||
Objekt 1244 | 1 295 000 kr | 3 228 kr | 1 | 31 kvm | 4 av 7 | Ledig | |
![]() ![]() ![]() ![]() ![]() ![]() ![]() ![]() ![]() ![]() ![]() ![]() ![]() ![]() ![]() ![]() ![]() Fin liten 1:aYteffektiv 1:a om 31 kvm på våning 4 med en inbjudande hall, helkaklat badrum med egna tvättmöjligheter, kök och allrum med utgång till en mindre balkong. Läs mer om bostaden | |||||||
Objekt 1251 | 4 395 000 kr | 6 823 kr | 3 | 89 kvm | 5 av 7 | Ledig | |
![]() ![]() ![]() ![]() ![]() ![]() ![]() ![]() ![]() ![]() ![]() ![]() ![]() ![]() ![]() ![]() ![]() 3:a med öppen planlösningVälkommen hem till denna enastående 3:a om hela 89 kvm på våning 5. Insidan erbjuder öppen planlösning mellan kök och vardagsrum, ett master bedroom, ett mindre sovrum och två helkaklade badrum med egna tvättmöjligheter. Här får du också två balkonger, den ena om 15 kvm i bra solläge med utgång från vardagsrummet. Läs mer om bostaden | |||||||
Objekt 1252 | 1 895 000 kr | 3 471 kr | 1 | 31 kvm | 5 av 7 | Ledig | |
![]() ![]() ![]() ![]() ![]() ![]() Yteffektiv 1:a med balkongYteffektiv 1:a om 31 kvm på våning fem med en inbjudande hall, helkaklat badrum med egna tvättmöjligheter, kök och allrum med utgång till en balkong om 11 kvm i bra solläge. Läs mer om bostaden | |||||||
Inre Hamnen växer fram som en ny, levande del av Norrköpings innerstad – en plats för liv, möten och rörelse. Här finns redan kafé, kiosk, frisörer och obemannad matbutik, och i takt med att området utvecklas tillkommer restauranger, service och verksamheter som skapar liv även på kvällstid.
Här är det enkelt att njuta av vardagen. Strosa längs kajen i kvällssolen, slå dig ner med en bok i någon av de gröna parkerna, ta en glass på torget eller hyr en kajak och upptäck kanalerna från vattnet. I Inre Hamnen är vattnet alltid nära – och en självklar del av livet.
Med ett attraktivt läge precis vid vattnet och bara några minuters promenad till resecentrum bor du både centralt och bekvämt. Oavsett om du pendlar, reser eller tar bilen har du nära till kollektivtrafik, stadskärnan och motorvägen.
När området står färdigt kommer Inre Hamnen att rymma cirka 3 000 bostäder och hundratals arbetsplatser och bland annat skolor, butiker, restauranger, caféer och andra besöksmål.
Redan idag är delar av Inre Hamnen öppna för allmänheten med kajstråk, bryggor, parkmiljöer och badplatser. Kommunen färdigställer löpande gator och offentliga rum i takt med att bostäderna byggs – allt för att skapa en trygg, trivsam och levande stadsdel.
Här möts stadspuls och vattenliv i en modern innerstadsmiljö att njuta av – året runt.