3:a med öppen planlösning och bra förvaring

3:a med öppen planlösning och bra förvaring

Såld
Schaktmästargatan 12 B, Gällivare
2 395 000 kr

Välkommen till denna välplanerade bostadsrätt. Den öppna planlösningen mellan vardagsrum och det tilltagna vinkelköket välkomnar till socialt umgänge. Från det stora sovrummet kan du ta kaffekoppen ut på den inglasade balkongen och avnjuta årstidernas skiftningar och solens strålar. Bostadsrätten är även försedd med bra förvaring och högstandard på inredning, med kök från Ballingslöv och helkaklat badrum med egen tork och tvättmaskin. Välkommen hem!

Fakta

Pris
2 395 000 kr
Rum
3
Boarea
78 kvm
Avgift
5 125 kr/mån
Våning
5 av 6
Status
Såld
Planering pågår

Säljstart

Maj 2023

Byggstart

Sommar 2023

Inredningsval

Sommar 2023

Visningsbostad

2024

Inflyttningsklart

Januari 2025

Mamma och barn i kök
Erbjudande

Köp nu, sälj sedan -pengarna tillbaka om du inte lyckas sälja din gamla bostad

Nu vågar du köpa innan du sålt! När du köper ditt nya hem i Gällivare ger vi öppet köp. Du betalar bara handpenning, och om du inte får din gamla lägenhet såld, ja, då får du pengarna tillbaka. Börja drömma om ett nytt boende i centrala Gällivare.

Fullständiga villkor

Bilder

Vardagsrum i Brf Sjöparken
Brf Sjöparken innergård vintertid
Inflyttningsklart vardagsrum och kök i ljusa neutrala färger med stora fönster, soffa och matplats
Kök i ljusa toner Brf Sjöparken
Inflyttningsklar lägenhet med sovrum och balkong
Brj Sjöparken visualisering badrum
Balkong i Brf Sjöparken
Innergård i brf Sjöparken
Innergård i brf Sjöparken
Kök i gemensamhetslokalen
Kök i gemensamhetslokalen
Bord i gemensamhetslokalen
Kvinna som sitter och tittar ut över fjällvärlden
Fiske i fjällen
Selfie med barn i fjällen
Skidåkare på fjället
Ungt par lagar mat
Seniorer med barnbarn
Prov på olika tillval i en utställning, med en soffa i bakgrunden

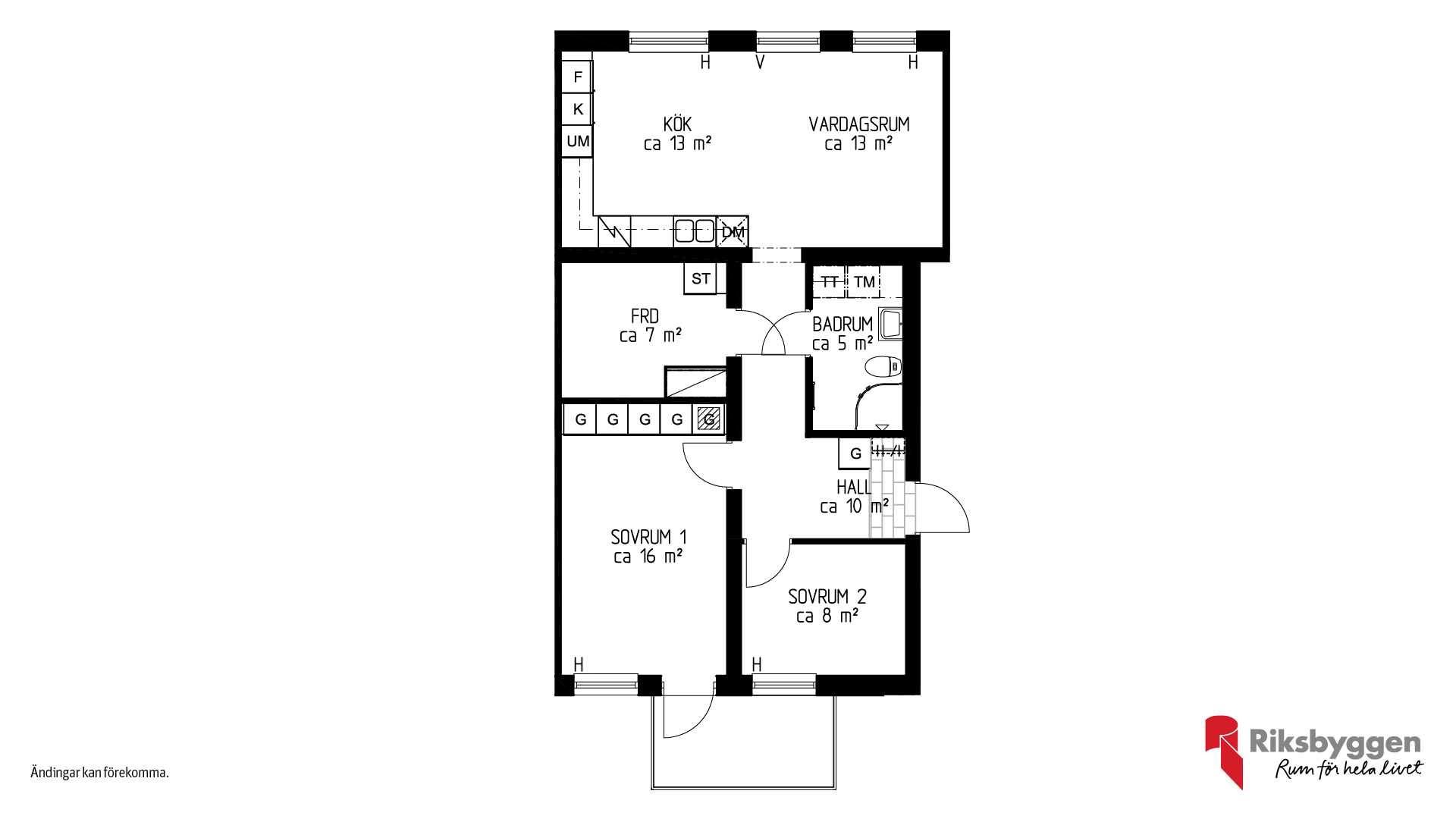
Fakta om lägenheten

Hall
Mattlackad Ekparkett. Vinylklickgolv. Vitmålade väggar. Hatthylla 
Sovrum
Mattlackad Ekparkett. Vitmålade väggar. Infällda fönsterbänkar av kalksten med polerad yta med raka kanter i färgen Azul Cascais, grå/brun. Gardinbeslag.
Vardagsrum
Mattlackad Ekparkett. Vitmålade väggar. Infällda fönsterbänkar av kalksten med polerad yta med raka kanter i färgen Azul Cascais, grå/brun. Gardinbeslag.
Kök/Matplats
Mattlackad Ekparkett. Vitmålade väggar. Stänkskydd av vitt matt slät kakel 50X30 cm. Kökssnickerier med gråa släta luckor. Bänkskiva i laminat. Diskho/vask utan rostfri avrinningsyta. Kyl/frys (1–2:or) Kyl och frys (3–4:or) Spishäll. Ugn och mikro i högskåp. Diskmaskin. Belysning under väggskåp, spotlights. Spiskåpa. Gardinbeslag.
Bad/Tvätt
Klinker grå matt, 10X10 cm med grå fog. Väggkakel vit matt, 20X30 cm, rak sättning. Vitt spegelskåp med ledbelysning. Tvättställ ink kommod med två lådor. Fast armatur i tak. Hörndusch med klarglas 90X90 cm. Tvättmaskin och torktumlare. Kombimaskin (1–2:or). Bänkskiva och väggskåp ovan tvättmaskin och torktumlare. Toalettpappershållare och handdukskrokar. WC-stol.
WC
Ljusgrå våtrumsmatta. Sockel har våtrumsmatta likt golv ca 10 cm uppvik. Målad vägg. Stänkskydd ovan tvättställ ”Frimärke” kakel vit matt, 20X30 cm, stående rak sättning. Handfat ink vit kommod med två lådor. Spegel med ledbelysning. WC-stol. Toalettpappershållare. Fast armatur i taket.
Balkong
Balkongplan av komposit med kärna i trä. Vitmålad undersida med kanter och ovansida i grå kulör. Fast glasräcke 1100 mm högt runtom om balkongen. Ovan glasräcket sitter öppningsbara glaspartier.

För mer information ser Säljbroschyren under Dokument och faktablad.

Om området

Gällivare och samhällsomvandlingen

När Malmberget flyttas och två samhällen ska bli ett är målet tydligt när det nya Gällivare ska växa fram. Här ska det skapas en arktisk småstad i världsklass dit människor vill flytta och där människor vill stanna.

Gällivare är känd för sin vackra natur, gnistrande vintrar, fina fiskevatten och ljusa sommarnätter. Under vinterhalvåret kan man vid klart väder se norrsken som dansar på himlen som ett magiskt skådespel.

Tre kilometer från Gällivare centrum ligger Dundret, ett strålande val för alpin skidåkning. Här finns även goda möjligheter för längdskidåkning och den som vill testa tävlingsspåren hittar dem på Hellnerstadion, i direkt anslutning till skidliftarna. Är man sugen på lättare spår finns cirka sex mil fina motionsspår runt om i Gällivare, alla i anslutning till spåren på Dundret. I Gällivare finns goda förutsättningar för ett aktivt liv.

Om bostäderna

Bostadsrätter i Gällivare

Brf Sjöparken är vår andra etapp av nyproducerade bostadsrätter i det nya Gällivare. Det handlar om fastigheterna Höken 6, 8 och 9 som i norr och öster angränsar till Schaktmästaregatan. Lägenheterna är nu inflyttningsklara, för att boka visning kontakta mäklare, kontaktuppgifter längre ner.

Om lägenheterna 

Brf Sjöparken har välplanerade bostadsrätter fördelade på två bostadshus om cirka 6-7 våningar där varje kvadrat kommer till användning och där hiss är en självklarhet. Tack vare husens generösa höjd är det insynsskyddade lägen med fina vyer. På taken finns solceller för att tillvarata solens energi, vilket är bra både för miljö och föreningens ekonomi.

Bostäderna har inglasade balkonger och kvalitativ inredning där grundstandarden är god. 

De två husen ramar på ett trevligt sätt in den grönskande innergården där det finns ytor för lek och umgänge. Vi har försökt optimera ljusinsläppen i lägenheterna och ta hänsyn till insyn samt solläge på balkongerna och därför ligger samtliga balkonger mot innergården i söder respektive väster. Självklart finns även en gemensamhetslokal med bastu. Vi har nämligen lyssnat av marknaden och vet att många Gällivarebor värdesätter ett varmt bastubad väldigt högt.

Parkeringsmöjlighet finns i carportar intill husen.

Detaljerna som gör ditt hem

Att trivas i sin bostad handlar inte bara om en enda sak. Det handlar om små detaljer som tillsammans gör ditt hem. I Brf Sjöparken Har vi lagt stor vikt vid inredningen som har omtanke i varje liten detalj. Lägenheterna har en hög standard, det är klassiskt och stilrent för att utgöra en bra bas och passa till de flesta inredningsstilar.
Köken är utrustade med kvalitativa snickerier och med bekvämligheter som induktionshäll och diskmaskin. De helkaklade badrummen har tvättutrustning, spegelskåp och vikbara duschväggar. 

Med friluftsliv och aktiviteter runt knuten

I Brf Sjöparken finns goda möjligheter för ett aktivt och välmående liv. Här bor du omgiven av caféer, restauranger, evenemang och aktiviteter samtidigt som du har närhet till natursköna områden där du kan kraftsamla och puls omvandlas till paus. 

Direkt nordost om området ligger en is- och evenemangsarena samt ett nytt parkområde med aktiviteter, lek, och rekreation för alla åldrar. Platsen kallas Sjöparken och här finns bland annat en skatepark, utegym, grillkåta, aktivitetspark, multisportplan/isbana och pulkbacke.

På kort promenadavstånd ligger även mysiga fik och restauranger och bara några hundra meter från tomten ligger vackra Vassara älv.

Badhuset Sjöparksbadet innehåller en 25-meters bassäng med trampoliner, vattenrutschkana och undervisningsbassäng. I badhuset finns även träningslokal för mattsporter av olika slag.

Alldeles i närheten av området ligger även Sjöparksskolan (årskurs 7-9), Malmens friskola (årskurs 4–9) samt förskolorna Trummans förskola (fyra avdelningar) och Älvens förskola (nio avdelningar). Cirka 700 meter sydost om området ligger Gällivare sjukhus.

Kommunikationer

Det finns goda kommunikationskopplingar till huvudstråk som leder till arbetsplatser inom kommunen. Närmaste busshållplats ligger knappt hundra meter söder om området vid Lasarettsgatan. Denna hållplats trafikeras ungefär en gång i timmen under måndag-fredag och uppskattningsvis varannan timme under helgdagar. Närheten till hållplats för kollektivtrafik underlättar för dig som boende att göra hållbara transportval.

Hållbarhetsåtgärder för Brf Sjöparken

  • Solceller
  • Miljöbyggnad Silver
  • Byggt i trä
Trygghetslöftet

Trygghet när du köper bostadsrätt

Riksbyggens Trygghetslöfte ger ett ekonomiskt skydd för dig om något oförutsett händer.

Illustration lampa och böcker

Bra att veta om bostadsrätt från A till Ö

Allt du behöver veta om att bo och köpa en nyproducerad bostadsrätt, från amortering till årsavgift.

Illustration hus med solceller

Att köpa en nyproducerad bostadsrätt

Intresserad av att köpa ny bostadsrätt? Här går vi steg för steg igenom hur ett bostadsköp går till.

3:a med öppen planlösning och bra förvaring | Riksbyggen