
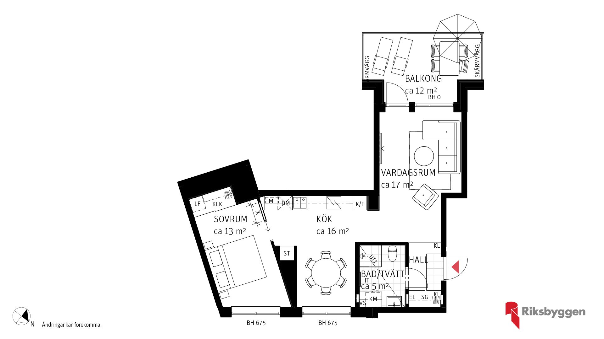
En 2:a med en solig balkong om ca 12 kvm. En trivsam lägenhet med kök och matplats, vardagsrum i anslutningen i en halvöppen planlösning. Sovrum med klädkammare.
Höst 2022
November 2024
Sommar 2025
Kvartal 1 2027
Prel. vår 2027
Välkommen på bokad visning och se prover inför val av inredning, ring Mathilda för tidsbokning.
Fräkne Gränd 2



















Hall
Grått klinkergolv, grå, 300 X 300 mm. Ekparkett, 3-stav, mattlackad. Vitmålade väggar. Vitmålat tak.
skjutdörrsgarderober alternativt fasta garderober, vita.
Hylla och klädstång, vita.
Vardagsrum
Ekparkett, 3-stav, mattlackad. Golvsockel i ek.
Vitmålade väggar. Vitmålat tak.
Sovrum
Ekparkett, 3-stav, mattlackad. Golvsockel i ek.
Vitmålade väggar. Vitmålat tak.
Kök
Ekparkett, 3-stav, mattlackad. Golvsockel i ek.
Vitmålade väggar. Vitmålat tak. Stänkskydd av kakel, vit, blank 200x500 mm stående, ljusgrå fog.
Skåpinredning från Vedum med vita släta luckor och lådor, handtag
i rostfritt stål. Platinagrå bänkskiva av laminat med rak kant och underlimmad diskho.
Köksblandare, krom. LED-belysning under väggskåp.
Spisfläkt från Franke. Vitvaror från Bosch. Infälld induktionshäll. Inbyggnadsugn, vit. Inbyggnadsmikro, vit.
Kyl, vit. Frys, vit, alternativt Kyl/Frys, Vit diskmaskin.
Bad/Tvätt
Klinkergolv, grå, 150X150 mm.
Väggar: Kakel, vitt, blank, 250X400 mm, liggande. Vitmålat tak.
Golvmonterad WC-stol. Vägghängd kommod från Vedum med lådor och tvättställ, vita, med handtag i krom. Tvättställsblandare, krom.
Spegel med belysning.
Raka duschväggar i klarglas med silver-profiler. Duschblandare och duschset, krom. Grå bänkskiva av laminat med rak kant. Väggskåp från Vedum med vita släta luckor
Utförligare information finns i säljbroschyren.
Förutom att du har nära till av- och påfarter till E6 finns Kungälvs nya resecentrum i direkt anslutning till bostadsområdet. Här finns ett 10-tal hållplatser för buss, väntsalar med sittplatser, toaletter, kiosk och biljettförsäljning. I Kongahälla bor du bara 20 minuter från centrala Göteborg med bil eller buss. Dessutom finns det en separat bussfil på bron för att underlätta kollektivtrafiken. Tack vare det centrala läget kan du enkelt leva ett liv utan bil och istället välja att nyttja bilpoolen i området.
Kungälv är en spännande kommun som har mycket att erbjuda. Vill du upptäcka gamla Kungälv ligger centrum en kort promenad bort. Här finns promenadstråk kantade av vass, färgglada trähus, mysiga fik och smakfulla restauranger.
Kungälv är en av Nordens mest välbevarade trästäder med trähusbebyggelse från 1600-talet. Kungälvs största och mest kända attraktion är Bohus Fästning. Vägen dit är kantad av kulturella aktiviteter och smakfulla minnen som inte går någon förbi. Närmast ligger stadens mötesplats nummer ett – Mimers Hus som rymmer Kungälvs bibliotek, konsthall, teater och kulturskola.
I Kungälvs kommun ligger även västkustpärlan Marstrand. Strosa på kajpromenaden längs de pittoreska fasaderna, njut av nybakat på populära Bergs konditori och upptäck alla mysiga konstutställningar. Och när du fått nog av det finns en lång rad trevliga restauranger och härliga badplatser att förälska sig i, för att inte tala om Carlstens Fästning som är öns stolthet och största sevärdhet.
Om du gillar att röra på dig är det nära till många olika motionsformer, och kommunen har satsat stort på bland annat Arena Kungälv. Här kommer det att byggas simhall, ishall, bandyhall, träningshallar, föreningsytor och kommunala verksamheter. På gångavstånd från Brf Humlen finns dessutom Fontins frilufts- och rekreationsområde, som är hela 212 hektar stort. Området lockar människor i alla åldrar med bastu, promenadstigar och vacker picknick-miljö. Efter motionscentralen fortsätter Bohusleden med en 37 mil lång vandringsled från Lindome till Strömstad.
Om du spelar golf finns det flera banor och klubbar att välja på i och kring Kungälv. Utöver det finns det dessutom gym och gruppträningsmöjligheter i närområdet. Föredrar du att simma utomhus finns även Utesimbadet Kungälv som har öppet hela sommaren.
Här bygger vi 60 moderna lägenheter med hållbarhet i fokus. Lägenheterna kommer att vara i storlekarna 1-5 rum och kök. Det blir en solig urban oas för dig som vill ha nära till precis allt. Här lever drömmen om en bekväm vardag och aktiv fritid.
Riksbyggen kommer förvalta över fem bostadsrättsföreningar i området, och den sista som byggs är Brf Humlen. Kongahälla har allt som behövs för att vara en självklar mötesplats oavsett ålder. Här bor du mitt i händelsernas centrum, med restauranger och shopping på krypavstånd. De trevliga små torgen och affärslokaler längs med gångstråken skapar en aktiv och varmt pulserande stadsmiljö. På ena sidan huset ligger välbesökta Ica Maxi – och på andra sidan en grön och bilfri park. Och bara 200 meter bort finns det nyinvigda Köpcentret Kongahälla Center. Med närmare 80 butiker hittar du allt från klädkedjor och restauranger till frisör, gym, vårdcentral och apotek. Med andra ord blir vardagen inte bara enklare du får även mer tid över för livet.
Huset på 5-7 våningar rymmer 60 lägenheter, fördelat på 1:or till 5:or. Här finns möjlighet att leva livet på den luftiga balkongen med utsikt över staden, eller njuta av den egna upphöjda balkongen/terrassen i markplan.
Det är gröna och sociala lösningar som gör att det är enkelt att trivas här – mitt i händelsernas centrum. Med hjälp av noggrant utvalda material och en stor detaljrikedom blir resultatet ett hus både behagligt att titta på och bekvämt att bo i.
I direkt anslutning till huset finns en grön park som är perfekt för både vila, promenader och träning. En lugn oas mitt bland husen i Kongahälla. Lägenheterna med balkong/terrass kommer få en helt privat yta genom att balkongerna/terrasserna höjts upp från marknivå och har ett tätt balkongräcke. Och balkongerna som vetter mot Marstrandsvägen kommer glasas in. Allt för att skapa en harmonisk plats, i den urbana miljön.
En trappa upp i anslutning till föreningens gård kommer gemensamhetslokal med övernattningsmöjligheter finnas. Från markplan har varje trappuppgång en egen hiss. I källaren ligger lägenhetsförråd och cykelförråd.
Eftersom alla bostadshus i Kongahälla delar ambitionen att skapa gröna väggar i stadsmiljön, har varje förening döpts efter olika klätterväxter. Till vår hjälp hade vi en landskapsarkitekt som valde ut den växten som skulle trivas absolut bäst i varje förenings läge. Och i Brf Humlen, var det Humle. En växt som trivs på en solig plats, där den fritt kan sträcka sig högt mot himlen.