
Mitt i centrala Umeå bygger vi nu 29 lägenheter om 1-4 rum och kök. Kanske är det shopping, kultur eller restauranger som lockar eller en promenad genom centrum ner till älven. Oavsett vilket så har du det på bekvämt avstånd från din bostad.
5 september
November 2024
Mars 2025
April 2026
Prel. sept 2026
Är du intresserad av en lägenhet och vill veta mer. Kontakta vår mäklare Josefin Granström på 070-271 40 89. Först till kvarn gäller!
Våra mäklare på Mäklarcity håller öppet för att ta emot dig om du har frågor eller funderingar gällande Brf Arken. Titta gärna förbi!
Öppettider: Måndag – fredag kl. 9.00-16.00
Adress: Kungsgatan 64, Umeå




























Centralt i Umeå bygger vi 29 nya bostadsrätter i Brf Arken. Bor du här har du promenadavstånd till det mesta. Inflyttning är planerad till hösten 2026.
Oavsett om det är kultur, shopping eller ett resturangbesök som lockar så har du allt på bekvämt gångavstånd från din bostad. Bekvämt är det också att bo i helt nyproducerad lägenhet av modernaste standard.
Huset blir fyra till sex våningar högtmed 29 lägenheter om ett till fyra rum och kök. Det flesta lägenheter har en inglasad balkong, vissa lägenheter har till och med två inglasade balkonger.
Parkeringsplatser kommer erbjudas i närliggande parkeringshus.

Här kan du titta på huset och hitta din favoritlägenhet.
Objekt | Pris | Avgift | Antal rum | Area | Våning | Status | |
|---|---|---|---|---|---|---|---|
Objekt 0101 | 3 895 000 kr | 5 005 kr | 3 | 75 kvm | 0 av 5 | Ledig | |
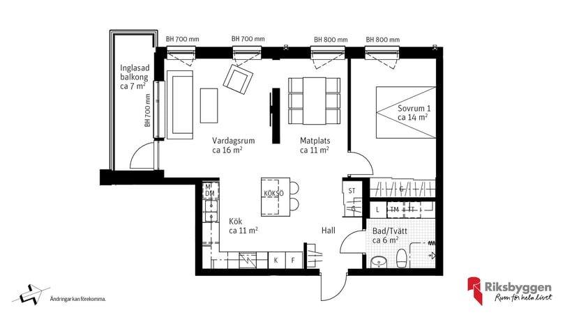
![]() ![]() ![]() ![]() ![]() ![]() ![]() ![]() ![]() ![]() ![]() ![]() ![]() ![]() ![]() ![]() ![]() 3:a med stor inglasad balkongStor inglasad balkong på ca 13 kvm i västerläge samt en uteplats på ca 7 kvm. Kök med köksö, badrum med kakel på väggarna, klinker och elkomfortvärme på golvet samt tvättmaskin och torktumlare. Extra WC samt en klädkammare i stora sovrummet. Öppen planlösning och ekparkettgolv. Bostaden är inte uppförd ännu utan säljs på ritning. Prel. inflyttning kvartal 3 2026 Läs mer om bostaden | |||||||
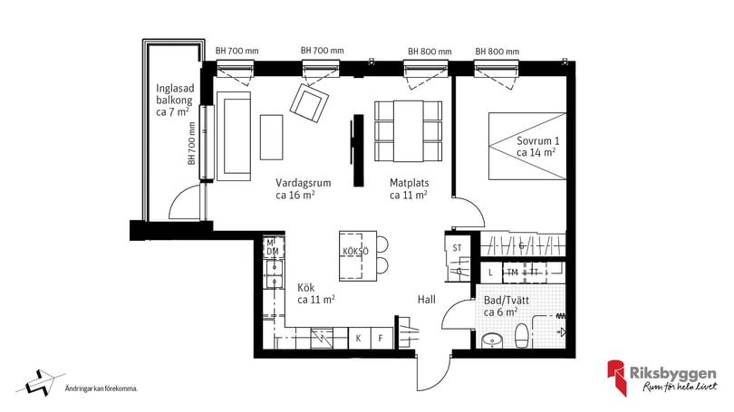
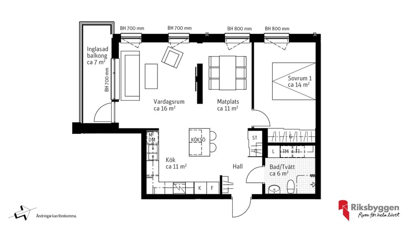
Objekt 0201 | 3 850 000 kr | 4 842 kr | 3 | 74 kvm | 0 av 5 | Ledig | |
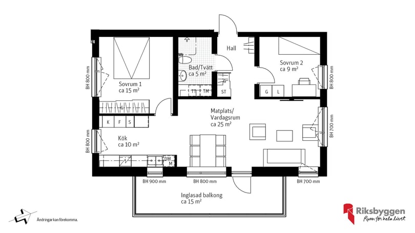
![]() ![]() ![]() ![]() ![]() ![]() ![]() ![]() ![]() ![]() 3:a med fönster åt tre hållLägenhet med fönster åt tre håll. Stor inglasad balkong på ca 15 kvm! Välutrustat kök med diskmaskin, micro, kyl, frys samt skafferi. Badrum med kakel på väggarna och klinker samt el komfortvärme på golv. Tvättmaskin och torktumlare. Stort sovrum med skjutgarderob. Bostaden är inte uppförd ännu utan säljs på ritning. Prel. inflyttning kvartal 3 2026 Läs mer om bostaden | |||||||
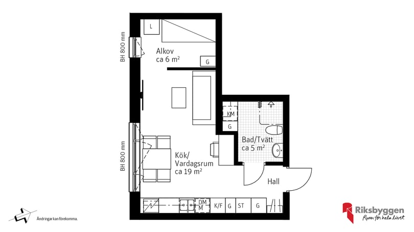
Objekt 0212 | 1 960 000 kr | 2 684 kr | 1 | 34 kvm | 1 av 5 | Reserverad | |
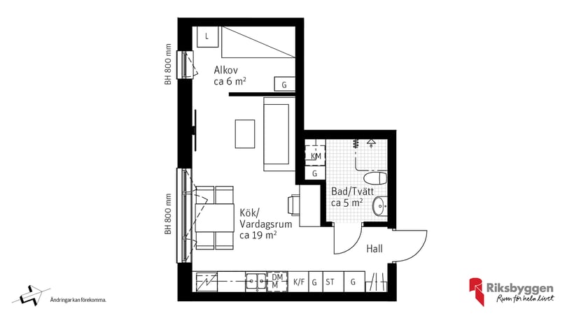
![]() ![]() ![]() ![]() ![]() ![]() ![]() ![]() ![]() ![]() ![]() ![]() ![]() ![]() ![]() ![]() ![]() ![]() ![]() ![]() ![]() ![]() ![]() ![]() ![]() ![]() ![]() 1:a med sovalkovVälplanerad lägenhet med öppen planlösning och alkov. Välutrustat kök med diskmaskin, micro, kyl/frys. Badrum med kakel på väggarna och klinker samt el komfortvärme på golv. Kombinerad tvättmaskin och torktumlare. Bostaden är inte uppförd ännu utan säljs på ritning. Prel. inflyttning kvartal 3 2026 Läs mer om bostaden | |||||||
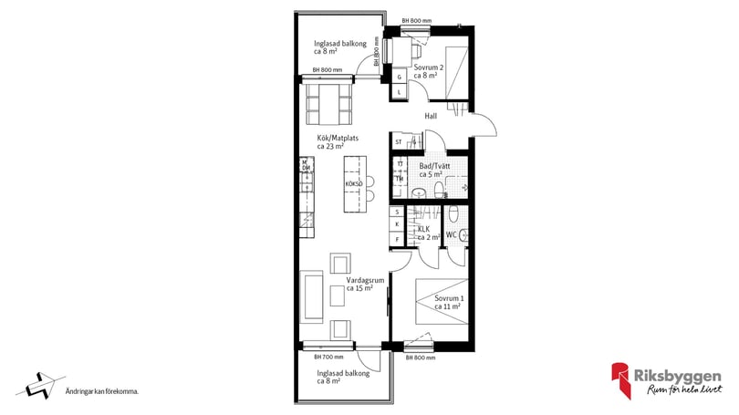
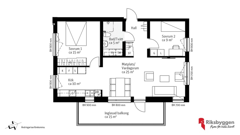
Objekt 0213 | 3 450 000 kr | 4 222 kr | 2 | 66 kvm | 1 av 5 | Ledig | |
![]() ![]() ![]() ![]() ![]() ![]() ![]() ![]() ![]() ![]() ![]() ![]() ![]() ![]() ![]() ![]() ![]() 2:a med inglasad balkongÖppen planlösning och inglasad balkong i söderläge! Välutrustat kök med köksö, diskmaskin, micro, kyl/frys. Badrum med kakel på väggarna och klinker samt el komfortvärme på golv. Tvättmaskin och torktumlare. Stort sovrum med skjutgarderob. Bostaden är inte uppförd ännu utan säljs på ritning. Prel. inflyttning kvartal 3 2026 Läs mer om bostaden | |||||||
Objekt 0214 | 3 995 000 kr | 4 974 kr | 3 | 75 kvm | 1 av 5 | Ledig | |
![]() ![]() ![]() ![]() ![]() 3:a med köksöVälplanerad bostad med två inglasade balkonger! Kök med köksö, badrum med kakel på väggarna, klinker och elkomfortvärme på golvet samt tvättmaskin och torktumlare. Extra WC samt en klädkammare i stora sovrummet. Öppen planlösning och ekparkettgolv. Bostaden är inte uppförd ännu utan säljs på ritning. Prel. inflyttning kvartal 3 2026 Läs mer om bostaden | |||||||
Objekt 0224 | 4 225 000 kr | 5 009 kr | 3 | 75 kvm | 2 av 5 | Ledig | |
![]() ![]() ![]() ![]() ![]() ![]() ![]() ![]() ![]() ![]() ![]() ![]() ![]() ![]() ![]() ![]() ![]() ![]() ![]() ![]() ![]() ![]() ![]() ![]() ![]() ![]() ![]() ![]() 3:a med två inglasade balkongerTvå inglasade balkonger! Kök med köksö, badrum med kakel på väggarna, klinker och elkomfortvärme på golvet samt tvättmaskin och torktumlare. Extra WC samt en klädkammare i stora sovrummet. Öppen planlösning och ekparkettgolv. Bostaden är inte uppförd ännu utan säljs på ritning. Prel. inflyttning kvartal 3 2026 Läs mer om bostaden | |||||||
Objekt 0233 | 4 325 000 kr | 5 009 kr | 3 | 75 kvm | 3 av 5 | Ledig | |
![]() ![]() ![]() ![]() ![]() ![]() ![]() 3:a med extra WCTvå inglasade balkonger! Kök med köksö, badrum med kakel på väggarna, klinker och elkomfortvärme på golvet samt tvättmaskin och torktumlare. Extra WC samt en klädkammare i stora sovrummet. Öppen planlösning och ekparkettgolv. Bostaden är inte uppförd ännu utan säljs på ritning. Prel. inflyttning kvartal 3 2026 Läs mer om bostaden | |||||||
Här bor du mitt i smeten med det mesta du kan behöva utanför dörren och gott om butiker och restauranger inom promenadavstånd.
Längre ned på gatan har du Norrlandsoperan, runt knuten ligger Folkets hus och Gitarrmuseet, känd för att vara en av världens största samlingar av gitarrer. Perfekt för ett spontanbesök följt av middag på en av stadens många restauranger och krogar.