
Nyproducerade bostadsrätter högt uppe på Getberget i Skellefteå. Här bor du med magisk utsikt över staden. Ljusa och moderna lägenheter nära rekreationsområden och centrum. Här kan du flytta in direkt.
2020
21 oktober 2022
Februari 2023
Februari 2025
Juni 2025

Nu vågar du köpa innan du sålt! När du köper ditt nya hem i Skellefteå ger vi öppet köp. Du betalar bara handpenning, och om du inte får din gamla lägenhet såld, ja, då får du pengarna tillbaka. Börja drömma om ett nytt boende på Getberget i Skellefteå med magisk utsikt över staden.
Fullständiga villkor
Visningar
Välkommen på visning av brf Utsikten med våra mäklare. Ta chansen att se lägenheterna och gemensamma utrymmen i huset. Kontakta mäklare Jan-Erik Lööf på 070-916 08 62 eller Janerik.loof@fastighetsbyran.se























Det är ett helt nytt kvarter som vuxit fram på Getberget i Skellefteå. Perfekt för dig som vill bo modernt i en lägenhet med öppen planlösning. Här bor du med magiskt storslagen utsikt över Skellefteå. Det är lika nära till skog och natur som till centrum.
Här trivs man när man flyttar in! Brf Utsikten har placerat sig på en fin sjundeplats i Prognoscentrets årliga rankning 2025 av kundnöjdhet bland nyinflyttade. Undersökningen har genomförts med branschens aktörer och bygger på cirka 6 000 svar från köpare av nyproducerade bostäder i hela Sverige under 2025.
På Getberget står Riksbyggens senaste två punkthus om vardera tio våningar med totalt 75 bostadsrätter. Det handlar om 2-4:or som möjliggör ett bekvämare liv för dig som inte vill bo mitt i smeten men ändå ha nära till det mesta. Varje lägenhet har en stor inglasad balkong där du kan njuta av fika i vårsolen eller förlänga sommarkänslan långt in på höstkanten. För att göra livet lite enklare finns ett garage under huset. Tänk vad bekvämt att slippa skotta bilen och leta parkeringsplats. Bara att parkera och sen ta hissen upp till lägenheten
I skogsbrynet på Getberget ovanför hyres- och bostadsrättshus från femtio- till sjuttiotalet bygger Riksbyggen med hållbarhet i fokus. Energieffektivitet och hållbara materialval är en självklarhet. Solceller på taket, laddstolpar till elbil, smidigt cykelförråd och bra möjligheter för sopsortering. Dessutom finns det en fin innergård med grillplats och och en utvändig gemensam solterrass.
Skellefteå är en spännande stad som har mycket att erbjuda. Här finns promenadstråk längs älven, mysiga fik och smakfulla restauranger. Här finns även ett bra shoppingutbud som mixas med en lagom bit av natur, kultur och kullersten.
Går man några minuter från Skellefteå centrum kommer man till den grönskande strandpromenaden längs Skellefteälven och den charmiga småbåtshamnen och Stadsparken, en lummig oas mitt i staden. Här blandas kultur och historia med stämningen längs gator, torg och parker. Mixen av mysigt belägna restauranger och shopping ger Skellefteå dess gemytliga identitet.
Staden utmärker sig med sitt kulturhus utöver det vanliga som kvalar in till världens högsta träbyggnader. Huset rymmer, förutom kulturutbud, ett helt nytt hotell med spa, restaurang med panoramavy och förstklassig övernattning.

Här kan du titta på huset och hitta din favoritlägenhet.
Objekt | Pris | Avgift | Antal rum | Area | Våning | Status | |
|---|---|---|---|---|---|---|---|
Objekt 0114 | 2 090 000 kr | 3 710 kr | 2 | 60 kvm | 3 av 8 | Ledig | |
![]() ![]() ![]() ![]() ![]() ![]() ![]() ![]() ![]() ![]() ![]() ![]() ![]() ![]() ![]() ![]() ![]() ![]() ![]() ![]() ![]() ![]() ![]() 2:a med stort sovrumMed en öppen planlösningen mellan vardagsrum och kök från Marbodal bjuder denna lägenhet på ett härligt ljusinsläpp och utgång till den tilltagna inglasade balkongen, där du kan avnjuta årstidernas skiftningar i förmiddag och dagssolen. Från vardagsrummet kommer du till det rymliga sovrummet med möjligheter för en liten kontorsdel, här finns det även gott om förvaring bakom skjutdörrsparti. Badrummet är helkaklat med egen tork och tvättmaskin. Först till kvarn! Läs mer om bostaden | |||||||
Objekt 0121 | 3 190 000 kr | 4 310 kr | 3 | 73 kvm | 5 av 8 | Ledig | |
![]() ![]() ![]() ![]() ![]() ![]() ![]() ![]() ![]() ![]() ![]() ![]() ![]() ![]() ![]() ![]() ![]() ![]() ![]() ![]() ![]() ![]() ![]() ![]() 3:a med vinkelkökVäldisponerad lägenhet med öppen planlösning och med en tilltagen inglasad balkong. Härligt ljusinsläpp i den öppna planlösningen mellan kök och vardagsrum och vinkelköket från Marbodal erbjuder gott om arbetsytor med tillhörande köksö, perfekt för trevliga middagar och samvaro! I både hall och det större sovrummet finns det gott om förvaringsutrymmen bakom skjutdörrsparti. Badrummet är helkaklat med egen tork/tvättmaskin. Läs mer om bostaden | |||||||
Objekt 0125 | 3 390 000 kr | 4 310 kr | 3 | 73 kvm | 6 av 8 | Ledig | |
![]() ![]() ![]() ![]() ![]() ![]() ![]() ![]() ![]() ![]() ![]() ![]() ![]() ![]() ![]() ![]() ![]() ![]() ![]() ![]() ![]() ![]() ![]() ![]() 3:a med rymligt sovrumÖppen planlösning och med en tilltagen inglasad balkong. Härligt ljusinsläpp i den öppna planlösningen mellan kök och vardagsrum och vinkelköket från Marbodal erbjuder gott om arbetsytor med tillhörande köksö, perfekt för trevliga middagar och samvaro! I både hall och det större sovrummet finns det gott om förvaringsutrymmen bakom skjutdörrsparti. Badrummet är helkaklat med egen tork/tvättmaskin. Läs mer om bostaden | |||||||
Objekt 0126 | 2 390 000 kr | 3 710 kr | 2 | 60 kvm | 6 av 8 | Ledig | |
![]() ![]() ![]() ![]() ![]() ![]() ![]() ![]() ![]() ![]() ![]() ![]() ![]() ![]() ![]() ![]() ![]() ![]() ![]() ![]() ![]() ![]() ![]() Hörntvåa med inglasad balkongMed en öppen planlösningen mellan vardagsrum och kök från Marbodal bjuder denna lägenhet på ett härligt ljusinsläpp. Stor inglasad balkong, där du kan avnjuta årstidernas skiftningar i förmiddags- och dagssolen. Från vardagsrummet kommer du till det rymliga sovrummet med möjligheter för en liten kontorsdel, här finns det även gott om förvaring bakom skjutdörrsparti. Badrummet är helkaklat med egen tork och tvättmaskin. Läs mer om bostaden | |||||||
Objekt 0134 | 2 790 000 kr | 3 710 kr | 2 | 60 kvm | 8 av 8 | Ledig | |
![]() ![]() ![]() ![]() ![]() ![]() ![]() ![]() ![]() ![]() ![]() ![]() ![]() ![]() ![]() ![]() ![]() ![]() ![]() ![]() ![]() ![]() ![]() ![]() 2:a högst upp i husetMed en öppen planlösningen mellan vardagsrum och kök från Marbodal bjuder denna lägenhet på ett härligt ljusinsläpp och utgång till den tilltagna inglasade balkongen, där du kan avnjuta årstidernas skiftningar i förmiddags- och dagssolen. Från vardagsrummet kommer du till det rymliga sovrummet med möjligheter för en liten kontorsdel, här finns det även gott om förvaring bakom skjutdörrsparti. Badrummet är helkaklat med egen tork och tvättmaskin. Läs mer om bostaden | |||||||
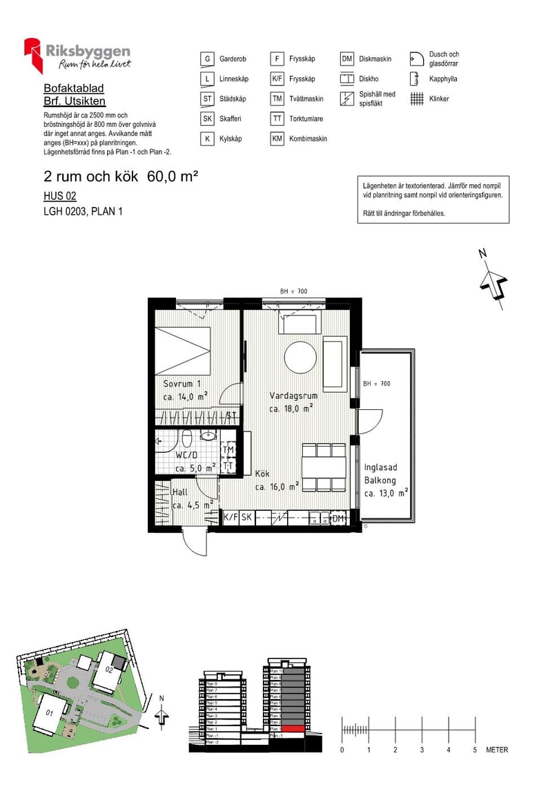
Objekt 0203 | 1 990 000 kr | 3 710 kr | 2 | 60 kvm | 1 av 10 | Ledig | |
![]() ![]() ![]() ![]() ![]() ![]() ![]() ![]() ![]() ![]() ![]() ![]() ![]() ![]() ![]() ![]() ![]() ![]() ![]() ![]() ![]() ![]() ![]() 2:a med gott om förvaringMed en öppen planlösningen mellan vardagsrum och kök från Marbodal bjuder denna lägenhet på ett härligt ljusinsläpp och utgång till den tilltagna inglasade balkongen, där du kan avnjuta årstidernas skiftningar i förmiddags- och dagssolen. Från vardagsrummet kommer du till det rymliga sovrummet med möjligheter för en liten kontorsdel, här finns det även gott om förvaring bakom skjutdörrsparti. Badrummet är helkaklat med egen tork och tvättmaskin. Först till kvarn! Läs mer om bostaden | |||||||
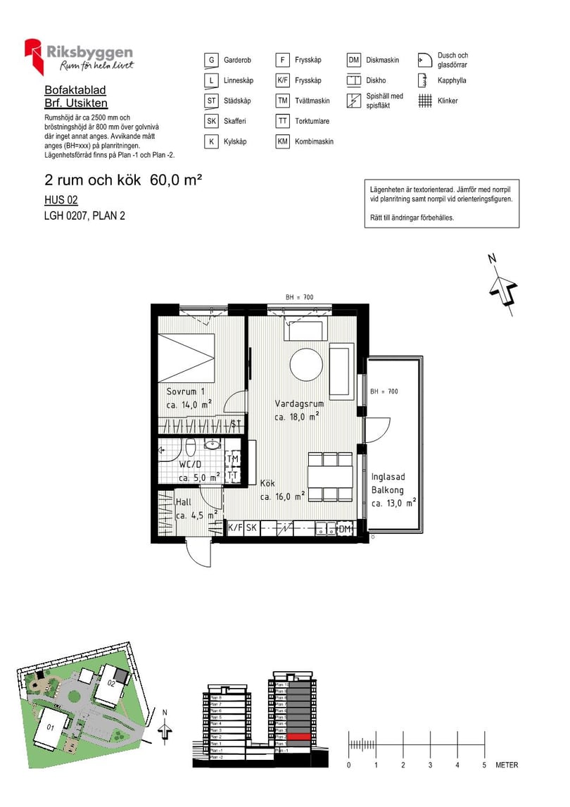
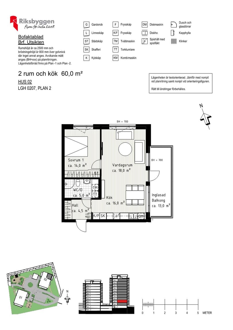
Objekt 0207 | 2 040 000 kr | 3 710 kr | 2 | 60 kvm | 2 av 10 | Ledig | |
![]() ![]() ![]() ![]() ![]() ![]() ![]() ![]() ![]() ![]() ![]() ![]() ![]() ![]() ![]() ![]() ![]() ![]() ![]() ![]() ![]() ![]() ![]() 2:a med härligt ljusinsläppMed en öppen planlösningen mellan vardagsrum och kök från Marbodal bjuder denna lägenhet på ett härligt ljusinsläpp och utgång till den tilltagna inglasade balkongen, där du kan avnjuta årstidernas skiftningar i förmiddag och dagssolen. Från vardagsrummet kommer du till det rymliga sovrummet med möjligheter för en liten kontorsdel, här finns det även gott om förvaring bakom skjutdörrsparti. Badrummet är helkaklat med egen tork och tvättmaskin. Läs mer om bostaden | |||||||
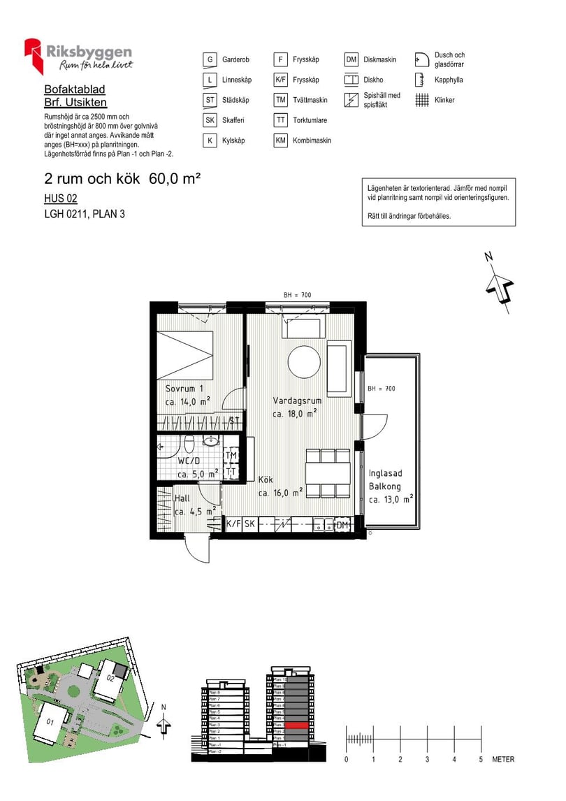
Objekt 0211 | 2 090 000 kr | 3 710 kr | 2 | 60 kvm | 3 av 10 | Ledig | |
![]() ![]() ![]() ![]() ![]() ![]() ![]() ![]() ![]() ![]() ![]() ![]() ![]() ![]() ![]() ![]() ![]() ![]() ![]() ![]() ![]() ![]() ![]() 2:a med kök från MarbodalMed en öppen planlösningen mellan vardagsrum och kök från Marbodal bjuder denna lägenhet på ett härligt ljusinsläpp och utgång till den tilltagna inglasade balkongen, där du kan avnjuta årstidernas skiftningar i förmiddag och dagssolen. Från vardagsrummet kommer du till det rymliga sovrummet med möjligheter för en liten kontorsdel, här finns det även gott om förvaring bakom skjutdörrsparti. Badrummet är helkaklat med egen tork och tvättmaskin. Läs mer om bostaden | |||||||
Objekt 0215 | 2 150 000 kr | 3 710 kr | 2 | 60 kvm | 4 av 10 | Ledig | |
![]() ![]() ![]() ![]() ![]() ![]() ![]() ![]() ![]() ![]() ![]() ![]() ![]() ![]() ![]() ![]() ![]() ![]() ![]() ![]() ![]() ![]() ![]() 2:a med stor inglasad balkongMed en öppen planlösningen mellan vardagsrum och kök från Marbodal bjuder denna lägenhet på ett härligt ljusinsläpp och utgång till den tilltagna inglasade balkongen, där du kan avnjuta årstidernas skiftningar i förmiddag och dagssolen. Från vardagsrummet kommer du till det rymliga sovrummet med möjligheter för en liten kontorsdel, här finns det även gott om förvaring bakom skjutdörrsparti. Badrummet är helkaklat med egen tork och tvättmaskin. Läs mer om bostaden | |||||||
Objekt 0219 | 2 210 000 kr | 3 710 kr | 2 | 60 kvm | 5 av 10 | Ledig | |
![]() ![]() ![]() ![]() ![]() ![]() ![]() ![]() ![]() ![]() ![]() ![]() ![]() ![]() ![]() ![]() ![]() ![]() ![]() ![]() ![]() ![]() ![]() 2:a med inglasad balkongVälkommen till denna trevliga tvåa! Med en öppen planlösningen mellan vardagsrum och kök från Marbodal bjuder denna tvåa på ett härligt ljusinsläpp och utgång till den tilltagna inglasade balkongen, där du kan avnjuta årstidernas skiftningar i förmiddag och dagssolen. Från vardagsrummet kommer du till det rymliga sovrummet med möjligheter för en liten kontorsdel, här finns det även gott om förvaring bakom skjutdörrsparti. Badrummet är helkaklat med egen tork och tvättmaskin. Läs mer om bostaden | |||||||
Mitt i bostadsområdet ligger både förskola och nybyggda Floraskolan med årskurs 1–9.
Här kan du leva ett aktivt liv både sommar och vinter. Eddahallen badhus och Norrvalla idrottsplats ligger bara några minuters promenad från bostadshuset. Till centrum är det endast en tio minuters cykeltur och på samma cykelavstånd ligger Skellefteå Kraft Arena. I arenan är det både ishockeymatcher och andra evenemang. Bredvid arenan finns det en tennis- och padelhall och precis intill ligger Vitbergsområdet med många fritidsaktiviteter.
På vinterhalvåret kan du åka utförsåkning eller pulka i Vitbergsbacken och på sommaren kan du springa längs löprundor eller träna i utegymmet. Här finns ett cirka 20 kilometer sammanhängande elljusspår, hinderbana och utegym.

En av de nyinflyttade är Jessica Spetz som tillsammans med sin sambo Greger kommer från ett hus där de bott i 20 år och nu flyttat in i en trea på sjunde våningen.
- När vi började fundera på lägenhet skrev vi en lista på vad som var viktigt för oss – hiss, öppen planlösning, stor inglasad balkong och närhet till stan men ändå lite skog och lummigt omkring. Vi körde runt och kollade på byggen som var i gång och det stod klart ganska fort att det var Getberget och Utsikten som vi ville till, det hade allt som stod på vår lista. Nu ser jag framemot vintern utan snöskottning – vi kör bara ner bilen under huset och tar hissen upp till sjunde våningen, sjukt lyxigt. Helt fantastisk utsikt och närhet till jobbet också, säger Jessica Spetz.

Allt du behöver veta om att bo och köpa en nyproducerad bostadsrätt, från amortering till årsavgift.

Intresserad av att köpa ny bostadsrätt? Här går vi steg för steg igenom hur ett bostadsköp går till.

Boende som köpt en lägenhet berättar om sin flytt. Allt från köpet av första lägenheten till flytten från villan.