
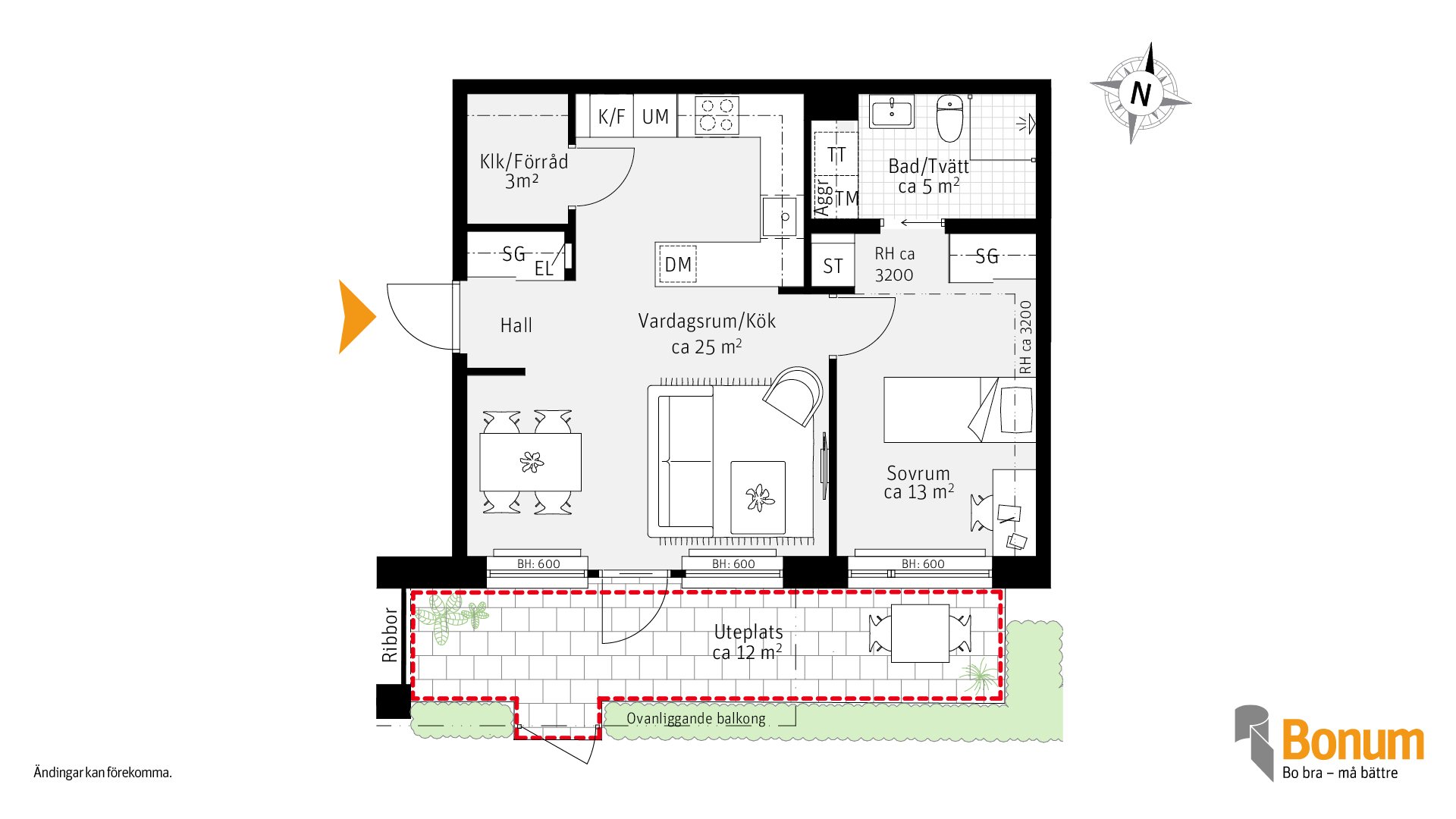
Marklägenhet med uteplats i söderläge. Generöst sovrum och stora fönsterpartier i vardagsrummet.
September 2025
Februari 2026
Augusti 2026
2027
Kvartal 2, 2028



















Hall
3-stavs ekparkett, vitmålade väggar, hatthylla samt garderob eller skjutdörrsgarderob.
Vardagsrum
3-stavs ekparkett, vitmålade väggar, fönsterbänk av kalksten.
Sovrum
3-stavs ekparkett, vitmålade väggar, fönsterbänk av kalksten.
Kök
3-stavs ekparkett, vitmålade väggar, stänkskydd av kakel ovan bänkskiva, fönsterbänk av kalksten.
Induktionshäll, integrerad spiskåpa. Inbyggnadsugn och inbyggnadsmicro i högskåp. Helintegrerad diskmaskin. Kyl och frys alternativt kyl/frys i rostfritt utförande.
Bad/tvätt
Klinker på golvet och helkaklade väggar. Raka duschväggar i klarglas. Spegelskåp med belysning. Tvättmaskin och torktumlare.
För utförligare beskrivning se säljbroschyr under Dokument och faktablad.
Ingen stad i Norden kan visa upp en så komplett bild av svunnen miljö som Ystad, med sina drygt 300 korsvirkeshus och en fantastisk friluftsmiljö. Stadens centrum utgörs av den ursprungliga stadsbildningen innanför de tre "portarna" Västerport, Norreport och Österport. Porten mot söder och kontinenten utgjordes då som nu av hamnen. Numera utgår tåg-, bil- och passagerarfärjor dagligen från Ystad till Bornholm och Polen. Läget vid havet inbjuder till rekreation och härliga promenader.
Bara ett stenkast från centrum planeras ett grönt och modernt kvarter med bekväma bostäder om två till fyra rum och kök med balkong eller uteplats. Här bor du på första parkett till ditt nya liv med mer tid för familjen och vännerna, naturen och havet, glädjen och gemenskapen.
I alla våra Bonumföreningar finns det en Bonumvärd, vars viktigaste uppgift är att vara en del av det sociala livet i bostadsrättsföreningen. Han eller hon hjälper till ordnar gemensamma aktiviteter och träffar såsom grillkvällar, påskfika, sopplunch eller annat som de boende i föreningen önskar. I föreningen kommer det finnas en gemensamhetslokal där du kan umgås med vänner och familj. Dessutom kommer det att finnas en övernattningslägenhet, så att dina gäster kan stanna över natten och känna sig som hemma.
Närmare, grönare med omsorg om livet mellan husen är ledorden för Ystads nya stadskvarter. I Ystad Atmosfär bor du lite närmare allt du behöver för en aktiv, hållbar livsstil. På den tomt som fram till nu kallats Urmakaren utvecklar Riksbyggen omkring 500 nya bostäder för framtidens Ystadbor. Med områdets kanske bästa läge ska Bonum bygga moderna bostadsrätter för dig som fyllt 55 år och vill ta steget mot ett nytt och bekvämare boende.
Bonums kvarter ligger i den västligaste delen av Ystad Atmosfär i direkt anslutning till Surbrunnsplan. Mellan bostadshusen ryms, inbjudande, öppna innergårdar som ger plats för mycket grönska och vackra planteringar. Här får du ett boende i en familjär atmosfär som inbjuder till gemenskap på dina egna villkor.
Gör en nystart och flytta till en centrumnära bostad i Ystad Atmosfär. Låt staden bli ditt andra vardagsrum med några minuters gångavstånd till kultur, nöjen, restauranger och butiker. Dessutom har du omedelbar närhet till Österlens kuperade landskap med Skånes mest storslagna kustremsa.