
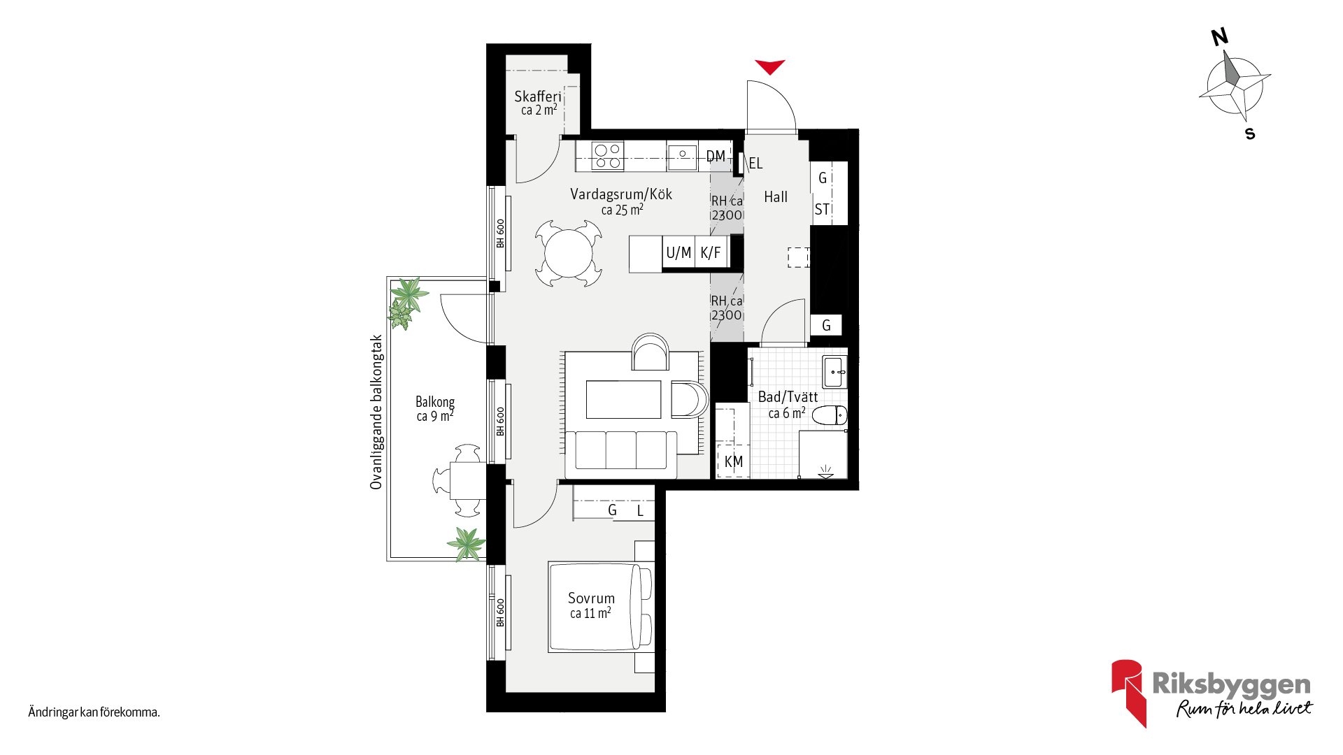
Lägenhet 2 rum och kök om ca 52 kvm. Kök och vardagsrum i öppen planlösning men köket är delvis avskilt från vardagsrummet. Balkongen nås från vardagsrummet. I lägenheten finns skjutdörrsgarderober samt en klädkammare/skafferi. I badrummet finns tvättutrustning. Lägenheten vetter mot den gemensamma innergården.
Sommar 2025
Mars 2026
Vinter 2026
Vår 2028
Välkommen att ställa dina frågor till oss om Brf Sjöpromenaden. Anmäl ditt deltagande till mäklare Mikael Haraldsson: Mejl: mikael.haraldsson@svenskfast.se , mobil 0733-26 44 05.
Visningslokal Guldåkerstorget 4A i Råbylund, Lund. Vid busslinje 5:s hållplats vid Guldåkerstorget.

























Entré
Ekparkett, mattlackerad, 3-stav, 14 mm.
Vitmålade väggar.
Skjutdörrsgarderob inredd med kapphylla enl. ritning.
Vardagsrum
Ekparkett, mattlackerad, 3-stav, 14 mm.
Vitmålade väggar.
Fönsterbänk av kalksten.
Sovrum
Ekparkett, mattlackerad, 3-stav, 14 mm.
Vitmålade väggar.
Fönsterbänk av kalksten.
Skjutdörrsgarderob, vit fyllning med silverfärgade profiler alternativt garderobsdörr med slät vit lucka och stomme och handtag i metall enligt ritning.
Kök
Ekparkett, mattlackerad, 3-stav, 14 mm.
Vitmålade väggar.
Stänkskydd av kakel ovan arbetsbänk, grå fog.
Fönsterbänk av kalksten.
Kyl och frysskåp eller komb. kyl/frys, rostfritt, enligt lägenhetsritning Induktionshäll.
Spiskåpa med inbyggd belysning rostfri. Inbyggnadsugn och mikro i högskåp. Helintegrerad diskmaskin.
Målade luckor och lådfronter med handtag i metall.
Skåpinredning med dämpade lådor och luckor.
Skåpshöjd ca 2250 med takanslutning. Bänkskiva av laminat med underlimmad rostfri diskbalja.
Belysning under väggskåp, LED-list. Eluttag i hörnbox.
Bad/tvätt
Klinkerplattor, 150X150 mm i rak läggning, grå fog på golvet. Golvbrunn.
Kakelplattor, grå fog, på väggarna.
Golvstående WC-stol
Kommod med två lådor. Handfat i porslin. Spegelskåp med belysning ovan kommod. Eluttag bredvid spegelskåp.
Raka duschväggar i klarglas, 900X900 mm.
Tvättmaskin och torktumlare, alternativt kombimaskin, enligt lägenhetsritning. Bänkskiva av laminat ovanför maskiner. Väggskåp ovan maskiner med belysning och eluttag i underkant.
Elansluten handdukstork. Toalettpappershållare och handdukskrokar. Fast takarmatur.
Gäst WC
Klinkerplattor, 150X150 mm i rak läggning, grå fog på golvet. Golvbrunn.
Vitmålade väggar
Golvstående WC-stol.
Tvättställ i porslin. Spegel med belysning ovan tvättställ. Toalettpappershållare och handdukskrokar. Fast takarmatur.
Balkong
Betonggolv.
Vit puts, alternativt träpanel på väggarna alternativt återvunnet tegel.
Räcke av metall.
Eluttag och belysning på vägg. Balkonginglasning som tillval i vissa lägenheter.
Uteplats
Gråa betongplattor på golvet.
Vit putsad vägg.
Räcke av metall.
Eluttag och belysning på vägg.
För utförligare beskrivning se säljbroschyren.
Södra Råbylund är en växande stadsdel och i framtiden finns goda möjligheter till en utvecklad närservice. Om du är sugen på nybakade frukostbullar är det Mormors bageri på Fältspatvägen på Gastelyckan som ligger närmast. På andra sidan Dalbyvägen ligger Linero centrum med bland annat en välsorterad livsmedelsbutik, pizzeria, apotek, vårdcentral och tandläkare.
Vi planerar för 36 nya bostadsrätter i södra Råbylund intill systerföreningen Bonum Brf Najaden (+55). Lite av stan, lite av landet – mycket av allt. Med slätten i ryggen och kajkanten vid Råbysjön så nära att du nästan kan känna med handflatan på vattenytan. På sommaren kan du höra fågelkvittret och humlornas surrande och njuta av Lundaslättens ängar. Vintertid åks det skridskor på sjön om isen har lagt sig.
Här har redan många Lundafamiljer funnit sin drömplats att växa upp på. De flesta skulle nog beskriva Södra Råbylund som ett mycket barnvänligt område. Och ser man till bra barn- och skolomsorg på nära avstånd, häftig lekplats och multiarena för de lite större barnen, grönt rekreationsområde precis utanför dörren så stämmer verkligen det. Runt sjön sträcker sig en 1,5 km lång slinga – perfekt för joggingturen. Omgivningarna ger mycket att utforska och inbjuder till fina löp- eller cykelturer. Känner du för att vara en riktig skogsmulle någon dag har du inte långt till Skrylle, Dalby hage eller Billebjer med härliga strövområden.
Nära din bostad ligger Lineros nyupprustade centrum med bland annat livsmedelsbutik, pizzeria, frisör, apotek och vårdcentral. Området nås via gång- och cykeltunnel under Dalbyvägen. I Råbylund finns kommunal och privata förskolor och på Linero finns flera kommunala förskolor och här finns också grundskolan Vikingaskolan (F–9).
Det är korta avstånd till allt i Lund och det bästa sättet att ta sig fram är med cykel. Kring Södra Råbylund finns ett nät av cykelvägar som tar dig ut på landsbygden eller in i centrum till hela Lunds utbud av fritidsaktiviteter, kultur och nöjen. Från Råbylund tar det under kvarten att cykla in till Mårtenstorget. Ett par tramptag till och du är vid Lunds Central. Härifrån går det tåg till Malmö, Kastrup och Köpenhamn med täta avgångar. Stadsbussen stannar bekvämt i närheten av din nya bostad. Med bil går det snabbt att komma ut på motorvägen E22. I Brf Sjöpromenaden finns garage för den egna bilen. Har du ingen egen bil kan du låna en bil i områdets bilpool.
En perfekt stadsdel helt enkelt – för både barn och vuxna.