
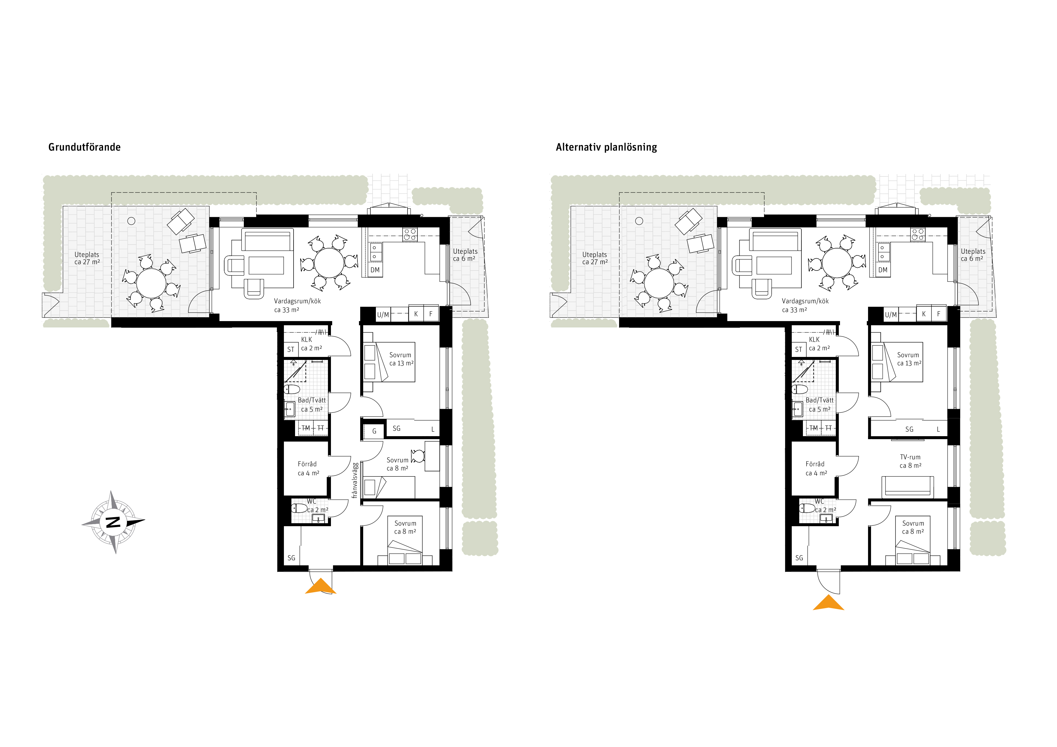
Välplanerad 4:a i markplan med gott om förvaring. Två stensatta uteplatser, en i anslutning till vardagsrummet som är på ca 27 kvm med söderläge och en lite mindre uteplats vid köket. Helkaklat badrum med tvättmaskin och torktumlare. Gästtoalett. Förråd i lägenheten om ca 4 kvm och klädkammare på ca 2 kvm.
2023
September 2024
Maj 2025
Prel. kv. 4 2026
Är du nyfiken på Bonum Brf Polstjärnan och vill diskutera planlösningar eller vad en flytt kan innebära för er? Välkommen in till Svensk Fastighetsförmedling så berättar vi mer över en kopp kaffe! Anmälan krävs.
Köpmansgatan 12 A, Höganäs



















Hall
3-stavs parkettgolv. Vitmålade väggar. Skjutdörrsgarderob med hatthylla och klädstång.
Vardagsrum
3-stavs parkettgolv. Vitmålade väggar. Fönsterbänk av kalksten.
Sovrum
3-stavs parkettgolv. Vitmålade väggar. Fönsterbänk av kalksten. Skjutdörrsgarderob.
Kök
3-stavs parkettgolv. Vitmålade väggar. Bänkskiva av laminat med rostfri vask. Kyl och frys eller kyl/frys i rostfritt utförande. Inbyggnads ugns och inbyggnads mikro i högskåp. Helintegrerad diskmaskin. Fönsterbänk av kalksten.
Bad/tvätt
Klinker på golvet. Helkaklade väggar. Tvättmaskin och torktumlare.
För mer information se Säljbroschyren under Dokument och faktablad.
I Höganäs finns allt du önskar för varje sinnesstämning. Den vackra kuststadens närhet till både det lugna och alla äventyr. Den öppna porten till fina naturupplevelser, tumlarsafari, gårdsbutiker, vingårdsbesök, skånsk mattradition eller fine dining blandat med det vackra, öppna landskapet. Lägg där till en nyproducerad lägenhet – som ger dig tid att utforska omgivningarna.
Ett stycke söder om centrala Höganäs växer det nya bostadsområdet Tornlyckan fram. Här bygger Bonum nya bostäder för dig som nått en mogen ålder och söker ett lite bekvämare liv med promenadavstånd till det mesta och vardagsservice inpå knuten. I Bonum Brf Polstjärnan, som är den starkaste lysande stjärnan, kan du hitta ditt eget åretruntparadis i vackra Höganäs. Här kan du byta gräsklippning och renovering mot ett modernt och hållbart boende i en välplanerad lägenhet med härlig balkong eller uteplats.
Bonum Brf Polstjärnan ligger centralt placerat i Tornlyckan, nära den framtida Drömparken. Ljusa tegelfasader och generösa balkonger ger husen ett stabilt, stadsmässigt uttryck. Innanför väntar en grön, ombonad trädgård med odlingsbäddar, växthus och plats för gemenskap i det fria
Vi planerar 35 moderna bostadsrätter om 2-4 rum och kök mellan cirka 49-95 kvm för dig som fyllt 55 år och har en längtan att bo bekvämt, nära natur, kultur och goda grannar. Bonum Brf Polstjärnan har alla förutsättningar att bli din nya fasta punkt i tillvaron. Här kan du hitta både nya vänner och en trygg och trivsam gemensam innergård och utgångspunkt för dina resor, äventyr och utflykter i livet.
I två vackra tegelhus erbjuder Bonum Brf Polstjärnan bekväma, lättskötta hem som är utformade för att göra din vardag enkel och bekymmersfri. På husen klättrar generösa balkonger som tycks sväva nästan fritt utanpå fasaden. Vare sig du är en inbiten Höganäsbo som vill göra en omstart i ny bostad, eller inflyttande som fallit för småstadens charm och vänlighet så finns här plats att trivas och må bra.
I kv.Himlavalvet planerare vi också bygga äganderätter, 16 stilfulla radhus i två plan i Karlavagnen. Radhusen har flexibel planlösning och har minst en egen privat trädgård. Bostadsrättsradhusen kommer dela kvarter med Bonum Brf Polstjärnan.