
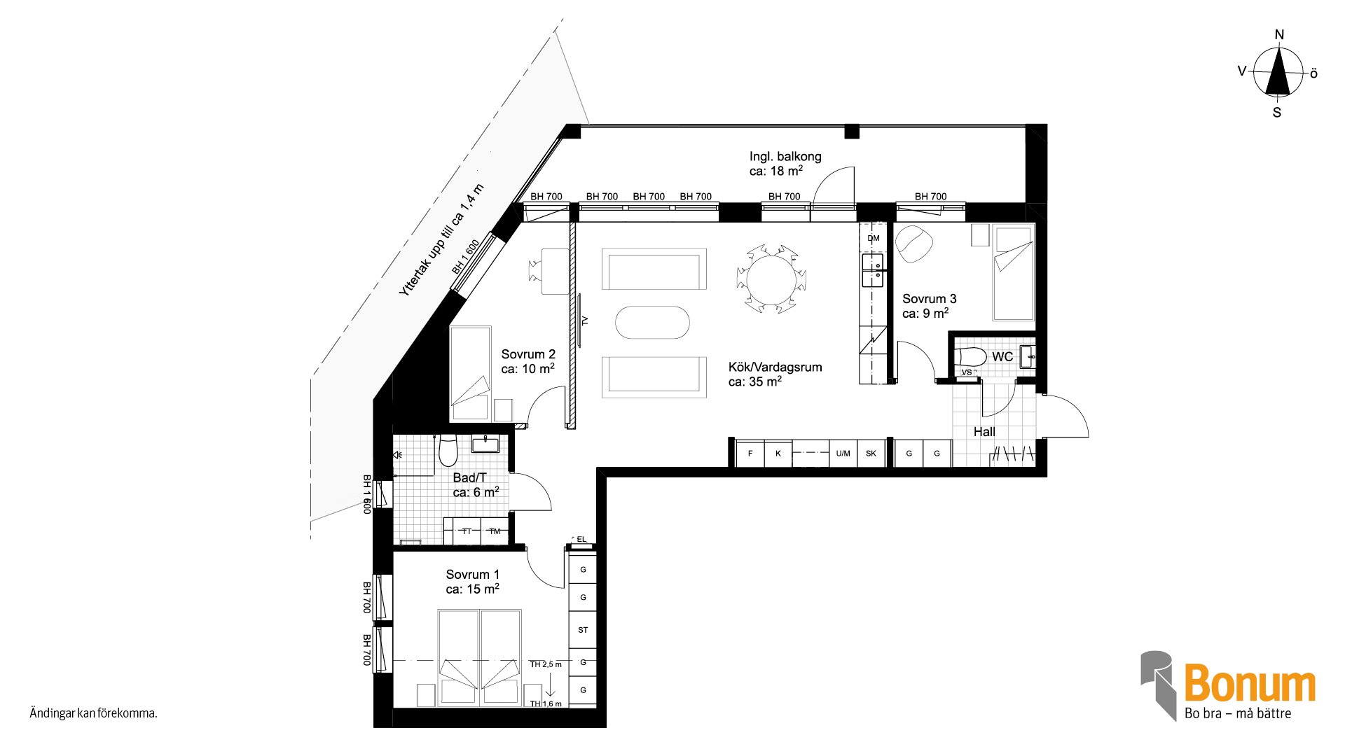
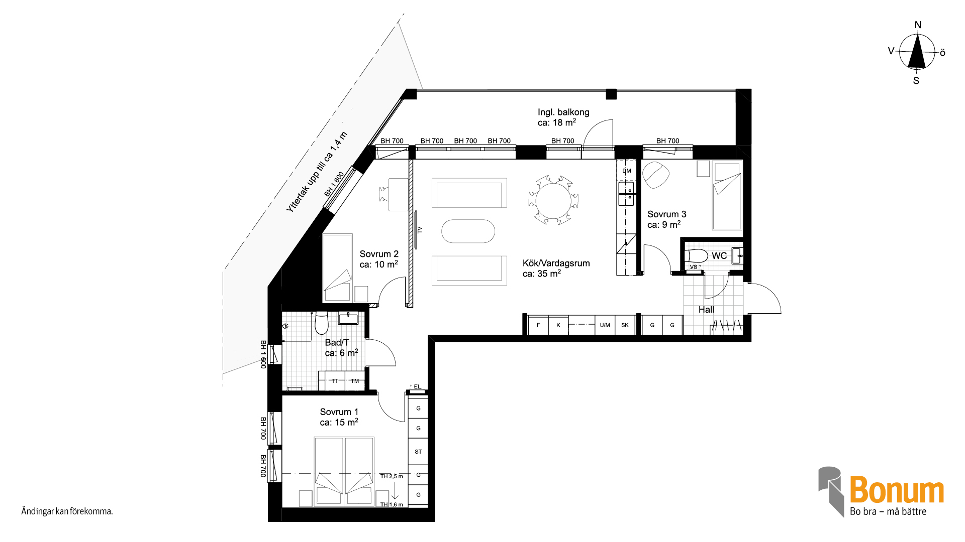
Det är med största nöje som vi stolt kan presentera en mycket attraktiv lägenhet belägen högst upp i huset med hiss. Inbjudande planlösning med stora sociala ytorna mellan köket och vardagsrummet. Ljuset flödar in från de stora fönsterpartierna och känslan av att befinna sig högt upp i huset utan insyn bidrar till en påtaglig hemkänsla. Det finns tre sovrum i varierande storlekar, köket är modernt och fullutrustat och erbjuder utrymme för stor matgrupp intill fönsterparti.
2023/2024
14 maj 2024
Prel. kvartal 3 2026
Prel. kvartal 1 2028

























Hall
Golv med 3-stavs ekparkett mattlackad och ljusgrå klinker 30x30 cm. Vitmålade väggar.
Vit högskåp/skjutdörrsgarderob enligt planlösning.
Kök/matplats
Golv med 3-stavs ekparkett mattlackad. Vitmålade väggar.
Kök från Vedum me grå luckor. Bänkbelysning med LED-spot. Vitvaror från Pandora Green. Integrerad diskmaskin. Rostfri kyl och frys alternativt kyl/frys enligt planritning. Rostfri inbyggnads micro. Rostfri inbyggnadsugn i högskåp.
Vardagsrum
Golv med 3-stavs ekparkett mattlackad. Vitmålade väggar.
Bad/tvätt
Golv med ljusgrå klinker 15x15 cm. Golvvärme på el. Väggar med vitt blankt kakel 25x40 cm.
Badrumsinredning från Vedum.
Utförligare information finns i säljbroschyren.
Ekholmen var jordbruksmark ända fram till mitten av 1900-talet. Då började en ny stadsdel växa fram, noggrant utformad med grönområden och parker integrerade i stadsplaneringen. En harmonisk och trivsam miljö för en livsstil i samklang med både natur och stadens bekvämligheter.
I sydväst gränsar området till Ullstämmaskogens naturreservat med barr- och lövskog, rikt på mossar och svampar. Dit kan du promenera på tio minuter. I naturreservatet ligger även det populära Vidingsjö motionscentrum, och några kilometer åt nordost ligger Landeryds Golfklubb.
Dagliga ärenden kan du enkelt göra i Ekholmens centrum som ligger precis runt hörnet. Där finns bland annat två stora livsmedelsaffärer (ICA Kvantum och Willys), systembolag, optiker, florist, tygaffär, Lindex och apotek. Blir du hungrig finns det en wok & sushi och en pizzeria.
I anslutning till centrum finns folktandvård, vårdcentral och skomakare. Och var tionde minut går bussar in till Linköpings centrum.
I Ekholmen planerar vi 58 nya, fina bostadsrätter för dig som fyllt 55 år. Lägenheterna blir 2-4 rum och kök och cirka 53-100 kvm.
Alla lägenheter har en inglasad balkong och ett varmförråd högst upp i huset med tillgång till hiss.
Här bor du bekvämt och tryggt, i välplanerade bostäder gjorda för ett aktivt och socialt liv. Du har nära till aktiviteter och umgänge, med en härlig innergård, en gemensamhetslokal för möten och fest, samt en övernattningslägenhet för långväga gäster.
I närheten ligger Ekholmens centrum med matbutiker och övrig handel. Det finns goda kommunikationsmöjligheter och service, samt fina grönområden runt husknuten.
Riksbyggens Bonumkoncept vänder sig till hushåll där minst en person fyllt 55 år. Här kan du bo kvar i många år. Vi har tänkt på alla detaljer. Din lägenhet är utan trösklar och har flera små detaljer som du kanske inte bryr dig om idag, men kan komma att uppskatta senare i livet.
Här har du nära till aktiviteter, natur och service. Du får en fin, inglasad balkong och tillgång till en innergård där det är lätt att umgås med gamla vänner och nya grannar. Du kan bjuda in till fest i gemensamhetslokalen, som också är en plats för aktiviteter och möten. När du får långväga besök kan du boka den möblerade övernattningslägenheten.
Från Bonum Brf Korkeken når du mycket till fots, men vill du nå lite längre kan du ta din cykel, som kan stå skyddad i det uppvärmda cykelrummet.
Ekholmen har goda bussförbindelser med övriga staden. Var tionde minut går bussar in till Linköpings centrum.
Har du bil så kan du parkera intill fastigheten, där bostadsrättsföreningen kommer att erbjuda parkeringsplatser i olika former. I garagelänga, utomhusparkering och parkeringsplats med ladd stolpe. Vi fastigheten finns också tre handikapps platser och vid ena huset finns på- och avstigningsplats vid entrén. anmälan om parkeringsplats görs i samband med tecknade av ditt förhandsavtal.
Som boende i Bonums lägenheter har du tillgång till en fin, fullt möblerad, gemensamhetslokal. Här finns allt du behöver i fråga om glas och porslin. Perfekt när du har gäster, om du bor i en lite mindre lägenhet, och bra för gemensamma aktiviteter med grannarna, I föreningen finns också en övernattningslägenhet om du har gäster som vill sova över. Huset kommer dessutom att ha en intim och mysig innergård med soliga mötesplatser.
I varje Bonumförening finns en Bonumvärd och medlemmarna har möjlighet att få hjälp med en rad olika praktiska tjänster. Det kan handla om allt från blomvattning när man är på semester till montering av hyllor eller att få fönstren putsade. Det är en slags förstärkt fastighetsskötare och tjänsterna betalas bara när de utnyttjas.
Bonumvärden arrangerar i samråd med de boende även träffar och sociala aktiviteter, för att öka trivseln och gemenskapen.

Bobo och Cajsa kände sig inte gamla. Det gör de inte nu heller. Men de har hittat en Bonumlägenhet, där de känner att de kan bo kvar länge. Vi ville hellre flytta än att flyttas, säger Bobo Rangmar.