
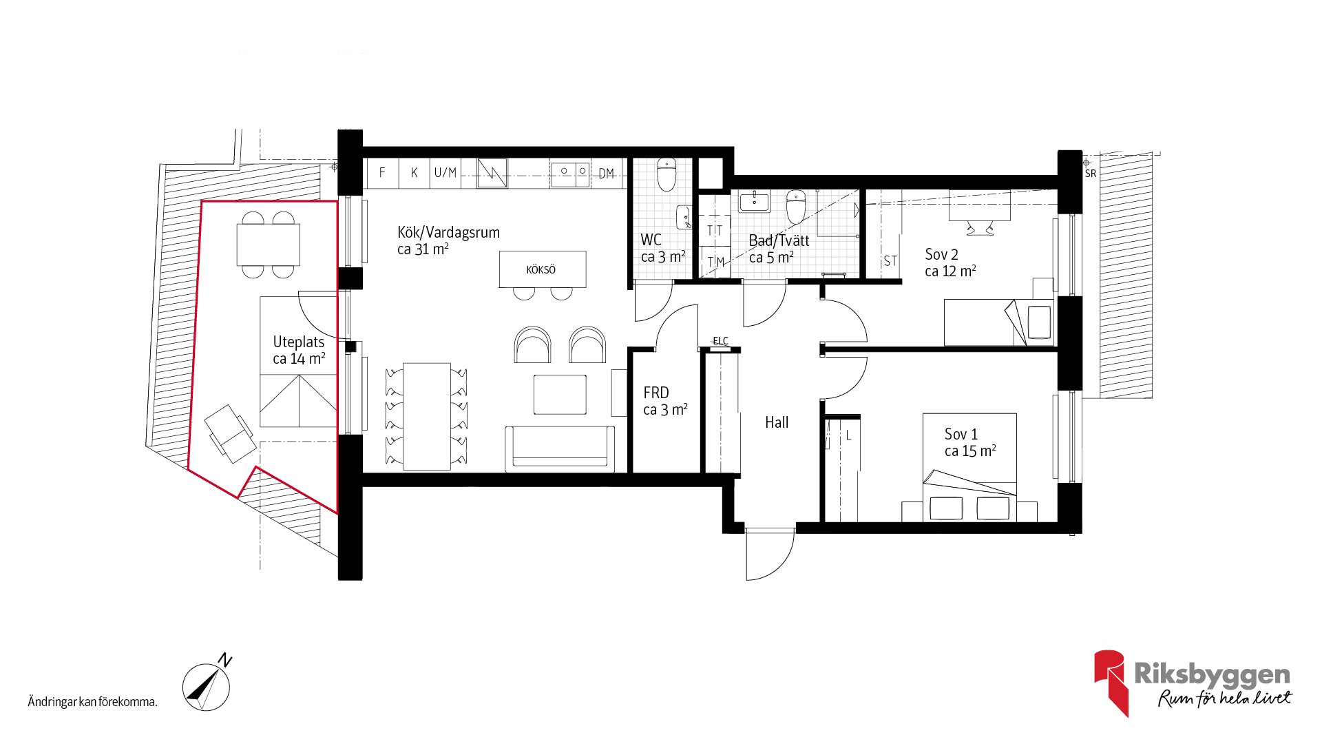
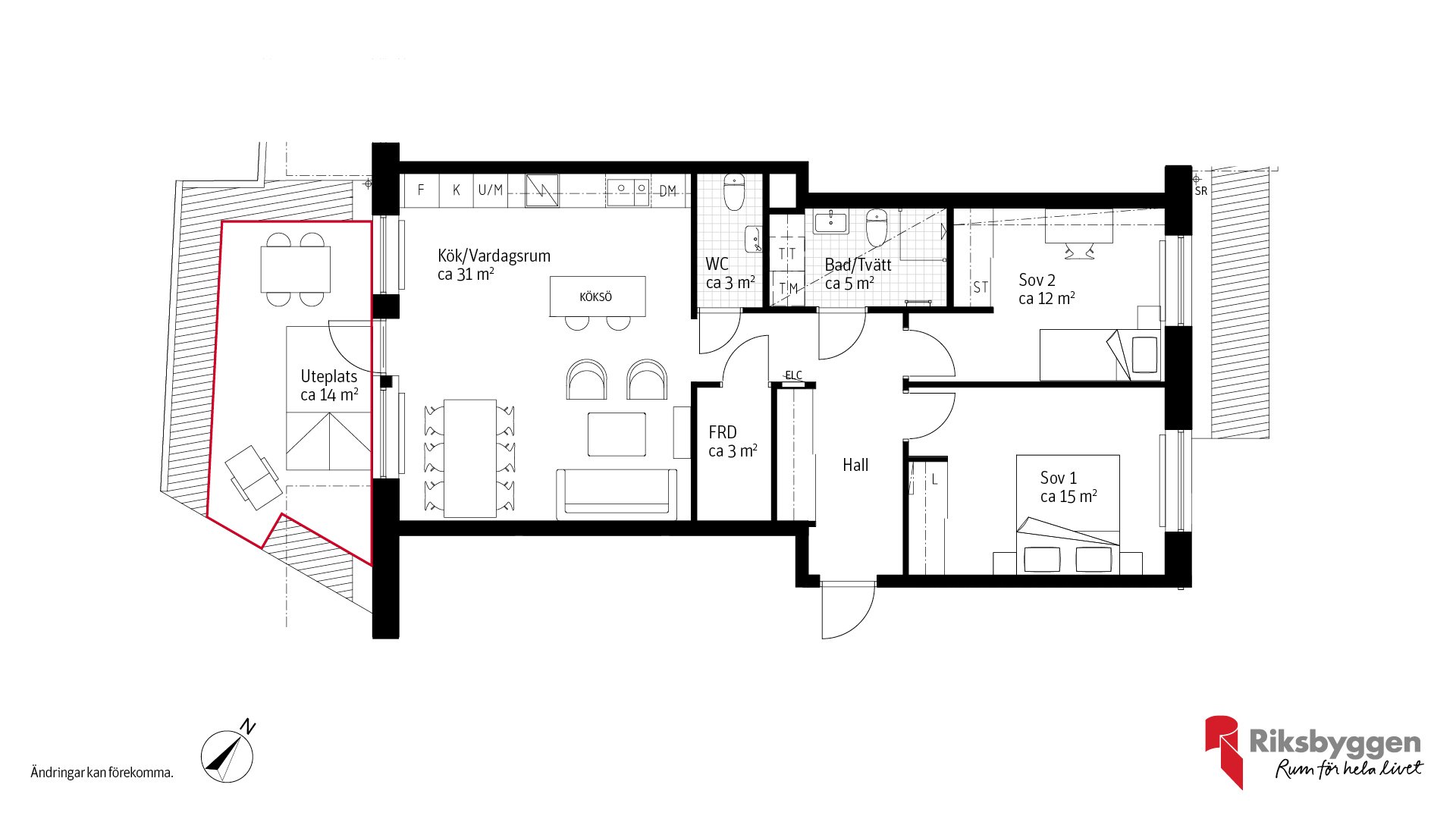
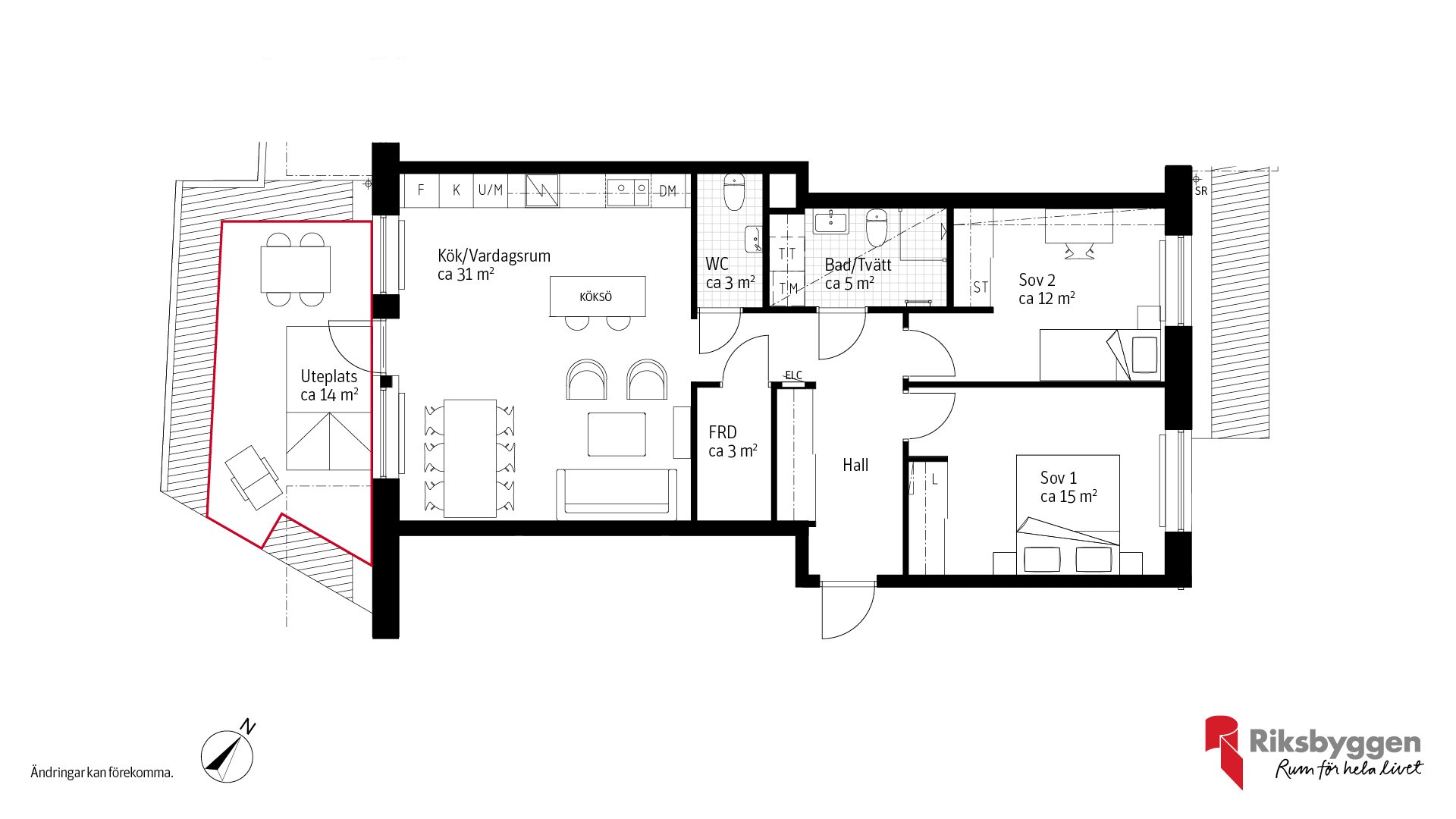
Charmig trea på markplan med generös takhöjd. Öppet mellan kök och vardagsrum. Två sovrum ger gott om plats för familj eller hemmakontor. Helkaklat badrum med tvättmöjligheter, samt separat toalett för extra bekvämlighet. Köket är välutrustat med diskmaskin, kyl och frys och inbyggd mikro. En av lägenhetens höjdpunkter är den privata uteplatsen .
2025
Oktober 2025
Är du nyfiken på Brf Livsglädjen och vill diskutera planlösningar eller vad en flytt kan innebära för er? Välkommen upp till Bostad&Co så berättar vi mer över en kopp kaffe!
Storgatann 25, Halmstad







Entré/hall
Golv: Klinker grå 30x30 cm innanför dörr.
Ekparkett, 3-stav mattlackad.
Golvsockel: Vitmålad.
Väggar: Vitmålade.
Inredning: Skjutdörrsgarderober och
garderober enligt ritning.
Vardagsrum
Golv: Ekparkett, 3 stav, mattlackad.
Golvsockel: Vitmålad.
Väggar: Vitmålade.
Sovrum
Golv: Ekparkett, 3-stav, mattlackad.
Golvsockel: Vitmålad.
Väggar: Vitmålade.
Tak: Vitmålat.
Inredning: Skjutdörrsgarderober och
garderober enligt ritning.
Kök
Golv: Ekparkett, 3-stav, mattlackad.
Golvsockel: Vitmålad.
Väggar: Vitmålade.
Stänkskydd: uppvik laminat.
Inredning: Skåpinredning från Vedum
med linnebeige släta luckor och lådor,
handtag i rostfritt.
Bänkskiva i laminat och underlimmad
diskho. Köksblandare, krom. LED-belysning
under väggskåp.
Utrustning: spisfläkt, induktionshäll, kyl
(rostfri), frys (rostfri), micro (rostfri) och ugn (rostfri) i högskåp, integrerad diskmaskin.
Badrum
Golv: Klinker, grå 15x15 cm.
Väggar: Kakel, grå 25x45 cm.
Vägghängd kommod från Svedbergs med lådor och tvättställ.
Duschväggar i klarglas.
Bänkskiva i laminat ovan tvättmaskin och torktumlare.
Väggskåp från Svedbergs med vita släta
luckor, handtag (rostfri).
Handduks- och klädkrokar, krom.
Utrustning: Tvättmaskin och torktumlare (vita).
För utförligare information se säljbroschyren.
I centrala Söndrum i Halmstad bor du med Halmstads stadskärna runt hörnet samtidigt som vinden från havet når din balkong. Bonum Söndrum Centrum ligger precis intill ICA Supermarket och folktandvården, här hittar du god service och trevligt utomhusliv. Ett par kvarter bort går nya Tylösandsvägen som enkelt tar dig till den härligt stora stranden.
En ny populär krog som dykt upp är Livbojen Mat & Bar som ligger ute vid vattnet i Grötvik, endast en kort bilresa bort eller en cykeltur bort. För dig som tycker om att spela golf om dagarna finner du många golfklubbar i närheten av Bonum Söndrum Centrum. Den närmaste är Halmstad Golfklubb och ligger på vägen ut till Tylösand.
I Söndrums nya bostadsrättshus kommer det finnas 18 nyproducerade bostadsrätter om två till fem rum och kök. Att Brf Livsglädjens bostadsrätter är noga planerade syns när man tittar in i de ljusa, öppna lägenheterna. Lägenheten ska vara bekväm att bo i, även om livet förändras. Rummen är stora och enkla att möblera och alla rum förutom badrummen är tröskelfria. Alla våra större treor och fyror har gäst-wc. Funktionell förvaring och smarta inredningsdetaljer är givna mervärden och något du får på köpet här.
Vill du byta ut gräsklippningen till en runda på golfbanan? Eller drömmer du om att köpa en lägenhet i Halmstad nära stad, hav och natur? Då är detta bostadsrättsföreningen för dig. Här finns lägenheter i många olika storlekar. Nu kan du få en alternativ vardag när Brf Livsglädjen byggs i Halmstad.
Alla lägenheter har en balkong eller uteplats som fungerar som en förlängning av bostaden. De indragna lägenheterna på övre plan har en terrass. Balkongerna, terrasserna och uteplatserna blir din alldeles egna oas!
Söndrum i Halmstad har alltid varit ett område där livsglädjen har flödat. Från de gröna parkerna till närheten till havet, har detta område varit en plats där människor har kunnat njuta av vardagen. Namnet "Livsglädjen" hyllar denna historia och speglar den positiva anda och energi som alltid har funnits i Söndrum.
Brf Livsglädjen erbjuder 18 bekväma och nyproducerade bostadsrätter, speciellt anpassade för dig som är mitt i livet eller senior. Här kan du byta vardagssysslorna mot aktiviteter som ger dig glädje och tillfredsställelse. Med närhet till både stad och natur, ger Brf Livsglädjen dig möjligheten att njuta av livet till fullo. Lägenheterna är utformade för att maximera komfort och funktionalitet, med ljusa, öppna ytor och smarta lösningar som gör vardagen enklare och mer bekväm.
I Brf Livsglädjen ser vi en framtid där varje dag fylls med nya möjligheter till glädje och bekvämlighet. Med fokus på trivsel och välbefinnande, strävar vi efter att skapa en miljö där varje boende kan leva livet med glädje och förväntan, oavsett livets förändringar.