
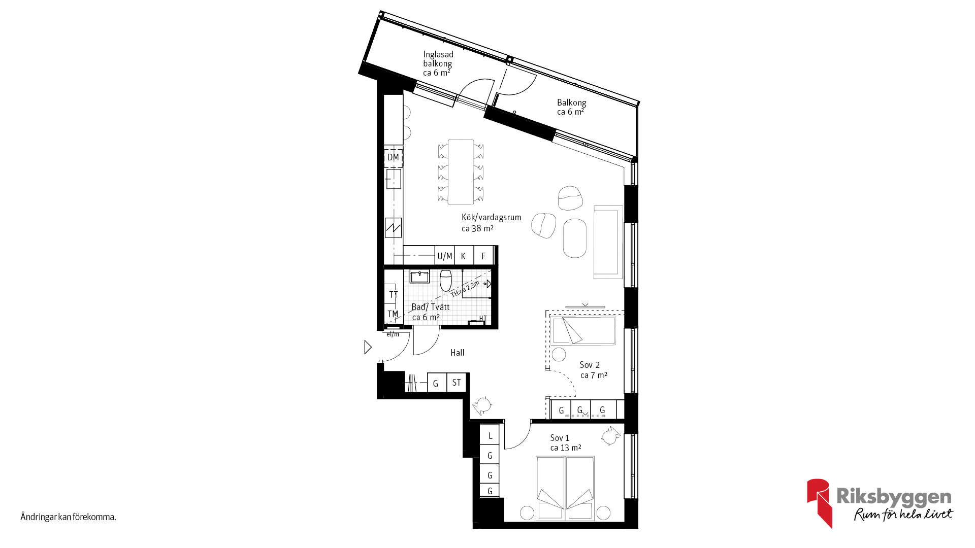
En 3 rok om 78 kvm på tredje våningen med hörnläge. Fönster i två väderstreck som skapar ett fantastiskt ljus. Det öppna kök/vardagsrummet om ca 38 m² har utgång till två balkonger i härligt västerläge, en öppen och en inglasad, perfekta för eftermiddags- och kvällssol. Två rymliga sovrum med bra förvaring samt ett funktionellt badrum med tvättmöjligheter. Ett modernt och välplanerat hem där sociala ytor och ljusinsläpp står i fokus.
Vår 2026
Här bor du mitt på Pottholmen, samtidigt som det är stadsmiljö är det lugna bostadskvarter, bara ett stenkast från havet.
Välkommen på första visning av ditt nya hem på Pottholmen hos Svensk Fastighetsförmedling.
Järnvägstorget 8A







































Entré/Hall
Ekparkett mattlackad i kallgrå nyans, 13 mm, 3-stav. Lägenheter i markplan i Tornet samt i Gnistan har klinker, 30X30 cm vid entrén (se planritning).
Målade väggar.
Hatthylla och garderober enligt ritning.
Vardagsrum/Allrum
Ekparkett mattlackad i kallgrå nyans, 13 mm, 3-stav.
Målade väggar.
Fönsterbänk av stenmaterial.
Sovrum
Ekparkett mattlackad i kallgrå nyans, 13 mm, 3-stav.
Målade väggar.
Garderober enligt ritning. Fönsterbänk av stenmaterial.
Kök
Ekparkett mattlackad i kallgrå nyans, 13 mm, 3-stav.
Målade väggar.
Rostfria vitvaror enligt ritning. Kyl- och frysskåp, induktionshäll, spiskåpa med belysning, inbyggnadsugn. Mikro i högskåp/väggskåp. Helintegrerad diskmaskin. Släta målade luckor med handtag, dämpande luckor och lådor. Bänkskiva i laminat med underlimmad rostfri diskho.
Fönsterbänk av stenmaterial.
Bad/Tvätt
Klinkerplattor på golvet, 15X15 cm.
Kakelplattor på väggarna, 25X45 cm.
Golvstående toalettstol. Spegelskåp med två dörrar och ljusramp. Kommod med lådor, släta vita. Handfat i porslin. Duschväggar i klarglas. Tvättmaskin och Torktumlare alternativt kombimaskin. Väggskåp med släta luckor. Bänkskiva av laminat. Elansluten handdukstork eller kombinerad el-vatten handukstork. Fast takarmatur. Toapappers-hållare och handukskrokar.
Wc/Dusch (enligt ritning)
Klinkerplattor på golvet, 15X15 cm.
Kakelplattor på väggarna, 25X45 cm.
Golvstående toalettstol. Spegelskåp med två dörrar och ljusramp. Kommod med l ådor, släta vita. Handfat i porslin. Duschdörrar i klarglas. Elansluten handdukstork eller kombinerad el-vatten handukstork. Fast takarmatur. Toapappershållare, handukskrokar.
Tvätt (enligt ritning)
Klinkerplattor på golvet, 15X15 cm.
Målade väggar
För utförligare information se säljbroschyren.
På Pottholmen har du nära till allt som Karlskrona stad har att erbjuda. Här är du inte bara granne med Borgmästarefjärden med dess vackra promenadstråk och inbjudande solnedgångar utan även nära till Trossö centrum med sina mysiga kullerstensgator, där det finns butiker, mataffärer, pubar, caféer, vårdcentral, apotek och mycket mer.
Dessutom har du nära till härliga picknickställen, flera badplatser, båtplatser och cykelavstånd till Blekinge Tekniska Högskola. Blickar du åt andra hållet så har du buss- och tågstationen och småbåtshamnen som nära granne.
Här kommer vi att skapa nya hem mellan urban grönska och en levande stadskärna. I Brf Brandtornet bor du mitt på Pottholmen, i en mix av urban citymiljö och lugna bostadskvarter, bara ett stenkast från vågorna i Borgmästarefjärden. Brf Brandtornet kommer att bestå av cirka 68 bostadsrätter i form av två tornhus. Det ena med sina ståtliga 14 våningar, som inte går någon obemärkt förbi, och det andra med sju våningar som smälter naturligt in i den redan vackra bebyggelsen. Det tredje huset inrymmer en lokal för framtida verksamhet, men även lägenheter på toppen.
Med tornens olika höjder bidrar kvarteret till ett varierande uttryck och tillsammans skapar de en sammanhållen oas. Kvarteret omringas av en historisk arkad och mellan tornen skapas ett grönt rum som leder från Blekingegatan ut mot Borgmästarefjärden och blickar ut mot kruthuset på Ljungskär. De tunga valven som omsluter kvarteret ger en känsla av oas innan man går vidare ut mot parksidan och blickarna automatiskt dras mot Borgmästarefjärden och den vackra strandpromenaden som binder samman Långö, Pantarholmen med Pottholmen och Trossö. Inte bara vacker arkitektur i en gemensam oas utan även gröna tak. Det höga huset kommer att ha solpaneler på toppen.
Längst ner i husen kommer tre studioettor samsas med flera lokaler i varierande läge och storlek där olika verksamheter kommer bidra till en levande plats. Här har vi även gjort plats för både gemensamhetslokal och övernattningslägenhet som du som boende kan hyra när du får långväga gäster eller vill bjuda in till en större fest. Alla lägenheter kommer ha separata förråd i varje hus.
Högst upp i huset med 14 våningar tronar två etagelägenheter med generösa balkonger och milsvid utsikt. Här kommer det kännas som om du bor bland molnen med en oslagbar magnifik utsikt över Karlskrona. Många av lägenheterna på de andra våningsplanen kommer att ha fri utsikt mot olika väderstreck och de flesta lägenheterna kommer ha balkong. Vissa lägenheter har till och med flera balkonger och alltid minst en inglasad och en del bjuder även på utsikt mot flera väderstreck.
Lägenheterna bjuder på öppna planlösningar med fokus på den sociala samvaron och smart förvaring. Vi vill att det ska vara enkelt att leva bra. Det kommer att vara olika inredning i lägenheterna beroende på vilket våningsplan du bor på. Det finns något för alla smaker. Inredningarna har tagits fram av inredningsexperter och håller såväl klass och funktion över tid.
Köken kommer att var från Vedum och inredningen i badrummen kommer vara från Svedbergs. Självklart är det helkaklade badrum, skön ekparkett, bra förvaring och fräscha nymålade väggar. Med tvätt-och torkutrustning i din egen lägenhet får till och med klädvården ett stänk av glamour. Mer information om inredningen kommer presenteras i samband med säljstart.
Vi tänker mycket på miljön när vi bygger nya bostäder och byggnaderna kommer att certifieras med Miljöbyggnad Silver. Miljöbyggnad Silver är ett svenskt system för certifiering av byggnader som premierar låg energianvändning, goda innemiljöer och granskade materialval. Utöver detta ställer nivån höga krav på dagsljusfaktorer i bostaden, ljudmiljö, behovsstyrda ventilationssystem och fuktsäkerhet. Det garanterar bra, ljusa och energieffektiva bostäder – och ett långsiktigt hållbart bostadsområde.
Bostäderna på har också till uppgift att underlätta en mer hållbar livsstil, för dig som boende, bland annat genom bilpool och föreningscykel. Det kommer finnas cirka 46 parkeringsplatser som kommer tillhöra Brf Brandtornet, i mobilitetshuset alldeles bredvid, som kommer att gå att hyra. Här finner du också bilpoolen. Mer information om hur detta kommer att gå till kommer till säljstarten. Cykelparkering kommer finnas i cykelrum i bostadshusen på markplan. i närområdet finns också kollektivtrafik i form av tåg och buss. Allt för att möta olika behov av transport.
Är det stort vardagsrum eller balkong med morgonsol som lockar? Med Riksbyggen Förtur får du chansen att se och välja nyproducerade bostadsrätter, äganderätter och hyrköp före andra.