
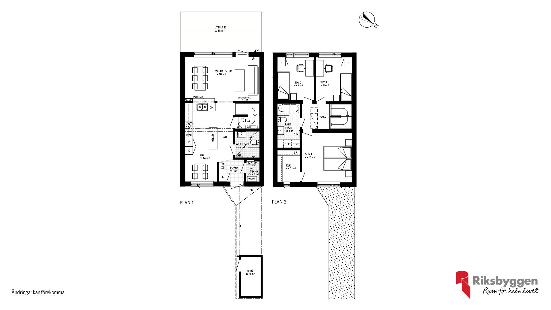
Radhus. Två plan om 104 kvm som passar utmärkt för den växande familjen. Ett attraktivt hem för dig som eftersöker ett bekvämt och lättskött boende med generösa umgängesytor för hela familjen. Köket är utrustat med en perfekt blandning av funktionell förvaring, energisnåla vitvaror och köksö att breda ut sig på. Planlösningen i entrévåningen är öppen mot vardagsrum för att skapa kontakt mellan rummen. Övre våningen innehåller tre sovrum, klädkammare och badrum. Ett hus att trivas i.
Vinter 2026
Vinter 2026
Vår 2026
Jan-maj 2027



















Entré
Klinkergolv. Vitmålade väggar.
Hatthylla. Garderob
Hall
Mattlackad ekparkett, 3-stav. Vitmålade väggar.
Tät trappa med vita vangalar och eksteg.
WC/Dusch
Klinkergolv. Kaklade väggar.
Inredning enligt ritning.
Kök/Matplats
Mattlackad ekparkett, 3 stav. Vitmålade väggar.
Inredning och vitvaror enligt ritning.
I öppning mot vardagsrum är det likadan bänkskiva som kök. Fönsterbänk i grå kalksten. Smyg i MDF i lågt sittande fönster i kök.
Vardagsrum
Mattlackad ekparkett, 3 stav. Vitmålade väggar.
Kamin. Fönsterbänk i grå kalksten.
Övervåning
Bad/Tvätt
Klinkergolv. Kaklade väggar.
Inredning enligt ritning.
Sovrum
Mattlackad ekparkett, 3 stav. Vitmålade väggar.
Fönsterbänk i kalksten. Garderober enligt ritning.
För utförligare information se säljbroschyren.
Stensjön har mycket bra kommunikationer. Med buss, bil eller cykel kommer du snabbt in till både Mölndals stad och Göteborg. Idag sitter tätorten Mölndal ihop med Göteborg. I Västtrafiks zonindelning ligger Mölndal och Göteborg i samma zon - Zon A. Det innebär att du reser för 36 kr enkel resa inom zon A. Strax utanför området ligger två busshållplatser, Tallkottegatan och Stensjökyrkan. Med buss 753 och 754 tar du dig snabbt och enkelt till Mölndals bro eller in till Heden, Göteborg. Från Mölndals bro kan du välja Västtågen eller Öresundstågen. Väljer du bilen så når du både E6 och riksväg 40 snabbt. Landvetter flygplats når du med bil på bara 20 minuter.
En stor fördel för dig som har skolbarn är närheten till skolorna. I närområdet finns flera skolor. Den om- och tillbyggda Lackarebäcksskolan ligger på andra sidan Frimärksgatan. Här finns också Stensjöns förskola. Några hundra meter ner mot Mölndals stad ligger även Svejserdalens Förskola som ett bra alternativ.
I Stensjön utanför Mölndal planerar Riksbyggen för de sista husen i området, 17 radhus och 4 friliggandevillor. Alla är välplanerade och anpassade speciellt för barnfamiljer. Husen ligger i ett naturskönt område med närheten till bad och friluftsliv, nära Mölndals Centrum och Göteborg.
Våra hus byggs med hög kvalitet och vi inkluderar mycket extra redan från början. Häckar, gräsmatta, förråd, plank, stenläggning/asfalt med mera ingår - bara att flytta in. Alla radhus har Energiklass B, vilket ger låga energikostnader, minskad miljöpåverkan, ökad komfort och ett högre fastighetsvärde. Ett klokt val för framtiden!
Här bor du med naturen och friluftslivet precis runt hörnet. Ett tryggt och trivsamt boende – perfekt för både barnfamiljer och dig som vill ha ett aktivt liv nära stan. På sommaren väntar badsjöar och härliga utflykter. Du kan ta en promenad, jogga, cykla, hyra kajak och paddla – eller utmana familjen på en minigolfrunda vid Stensjöns strand. I närområdet finns Gunnebo Slott med sina vackra trädgårdar, Herkulesgården med motionsspår och Bohusleden som passerar bara 300 meter från radhusen. Här finns alltid något att göra för den som älskar natur och aktivitet. Att bo vid Stensjön gör livet enklare, roligare och mer naturnära – för hela familjen.
I Mölndals Galleria hittar du ett brett utbud av shopping, service och matupplevelser. Med cirka 65 butiker, caféer och restauranger finns allt du behöver samlat under ett tak – från mode och accessoarer till dagligvaror och hälsoprodukter.
Stensjöparken 3 blir den sista etappen i området. Totalt har Riksbyggen haft nio byggetapper sedan de förvärvade området för drygt 10 år sedan. Det har varit både lägenheter i bostadsrättsform och radhus och friliggande i äganderättsform.
Intill Stensjön ligger Rådasjön. Rodd- och seglarklubbarna där erbjuder möjlighet för alla som vill vara aktiva på vattnet. Roddklubben tränar regelbundet och deltar i tävlingar både lokalt och nationellt. De erbjuder även kurser för nybörjare som vill lära sig från grunden. Seglarklubben välkomnar seglare på alla nivåer. Klubben arrangerar seglingskurser och har ett särskilt program för ungdomar Tillsammans bildar dessa klubbar till att det är aktivitet på sjön.
Kring förra sekelskiftet byggde timmerhandlaren Lars Larsson en isbinge med måtten 20x25 meter. Det blev lite som ett startskott för den ishantering som skulle pågå i området fram till någon gång runt 50-talet. Ishanteringen försörjde bland annat området med is för kylning av mat och diverse kylvaror. Namn från denna tid lever kvar i området idag där vi kan se gatunamn som Larssons Berg och fastighetsbeteckningar i form av Isbingen och Issågen.
Området nyttjades fram till slutet av 50-talet som en sand- och grustäkt av Gårda Johan. Under slutet 50-talet och början av 60-talet skedde en förändring av området. Marken omformades och grustäkten fylldes igen för att lägga grund för en mer användbar mark.
2010 påbörjade Riksbyggen exploateringen. Vägar anlades och marken sanerades, i samråd med miljöförvaltningen på Mölndals kommun, för att rensa bort tidigare avfall från kemikaliehanteringen. Under 2016 genomfördes kompletterande markundersökningar i området som nu är anlagd som park. Där fann man deponigas i marken. Gasen härstammar från organiska material som fanns i de fyllnadsmassor som man fyllde igen den gamla grustäkten med. Med tanke på upptäckten anlade då Riksbyggen en park över området för den gamla grustäkten för att den deponigas som når ytan från undre jorden ska neutraliseras när den kommer upp i jordmånen och gräsytan. Runt om denna parkmark har Riksbyggen bygga radhus i två etapper – Stensjöparken 1 och 2. Stensjöparken 3 kommer bli den sista etappen som kommer uppföras runt parkmarken.

Allt du behöver veta om att bo och köpa en nyproducerad äganderätt. Allt från allmän platsmark till värdeintyg.

Funderar du på att köpa äganderätt? Här går vi igenom steg för steg hur köpet går till.

Vårt Trygghetslöfte för äganderätt ger dig ekonomisk trygghet mot oförutsedda händelser när du köper ny bostad med äganderätt.