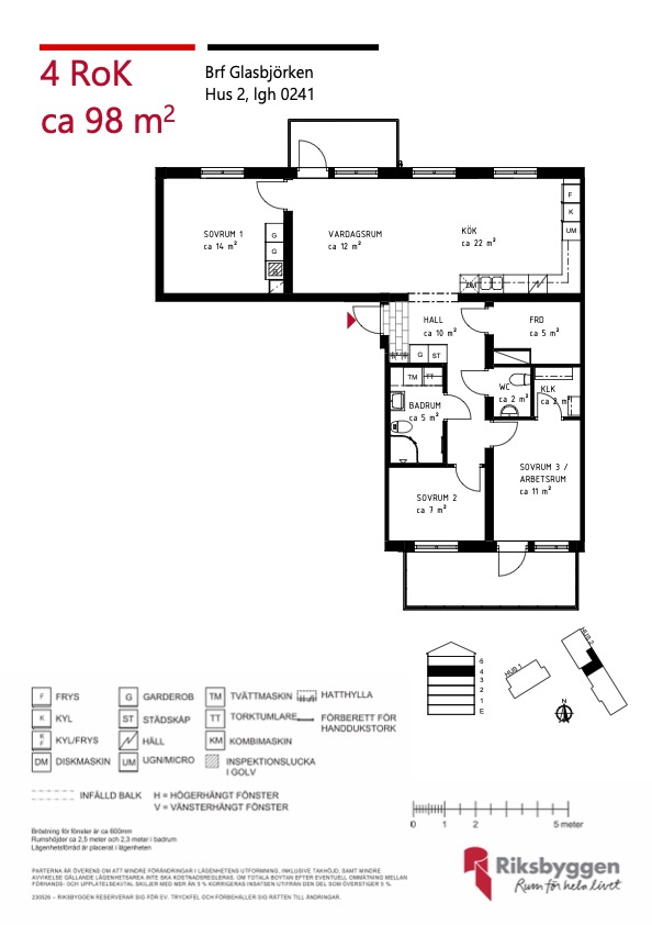
Välkommen till denna tilltagna bostadsrätt på 98 kvm. Den öppna planlösningen mellan vardagsrum och det tilltagna vinkelköket välkomnar till socialt umgänge. Från sovrummet kan du direkt ta kaffekoppen ut på den inglasade balkongen och avnjuta årstidernas skiftningar och solens strålar. Bostadsrätten är även försedd med bra förvaring och högstandard på inredning, med kök från Ballingslöv och helkaklat badrum med egen tork och tvättmaskin. Välkommen hem!
Höst 2023
November 2023
Mars 2025







Mattlackerad ekparkett. Vinylklickgolv. Vitmålade väggar.
Mattlackerad ekparkett. Vitmålade väggar.
Mattlackerad ekparkett. Vitmålade väggar.
Mattlackerad ekparkett. Vitmålade väggar. Stänkskydd av vitt matt slät kakel 50x30 cm. Gråa släta köksluckor. Bänkskiva i laminat.Kyl/frys i 1:or och 2:or. Kyl och frys i 3:or och 4:or.
Grått klinkergolv 10x10 cm. Kakel vitt matt 20x30 cm. Vitt spegelskåp med ledbelysning. Hörndusch med klarglas. Tvättmaskin och torktumlare. Kombimaskin i 1:or och 2:or.
Ljusgrå våtrumsmatta. Kakel vitt matt 20x30 cm.
För mer utförlig information se säljbroschyren under Dokument och faktablad.
Bostäderna i Brf Glasbjörken kommer ha ett centralt läge i Kirunas nya centrum precis intill ett grönområde, samtidigt som det är nära till service som restauranger, matbutiker, shopping och skola.
I Brf Glasbjörken i Kiruna bor du nära naturen och vackra strövområden, samtidigt som du har närhet till service som restauranger, shopping och skola.
När Kiruna skriver ny stadshistoria utgår det nya centrumläget praktiskt taget från din lägenhet. Så centralt är det. Med shopping, restauranger, det nya badhuset, det nya biblioteket och all service i er absoluta närhet räcker det att öppna ytterdörren för att kliva ut i den nya stadskärnan.
I kvarteren intill finns nya gallerior och butiker. Längs med Midnattsolssvägen finns 66 lägenheter fördelat på två fastigheter, ett sexvåningshus och ett femvåningshus där hiss är en självklarhet. Tack vare husens generösa höjd kommer det erbjudas insynsskyddade lägen med fina vyer. Alla lägenheter har inbjudande balkonger som är inglasade och förlänger utomhussäsongen på ett trevligt sätt. Tänk bara vilken lyxig känsla att spendera härliga middagar ute, fast ändå inne.
Att bo i Kiruna är speciellt och det är inte mycket som överträffar det som går att uppleva här – från 1800-talets mönsterstad till 2000-talets stadsomvandling. Från Luossavaara, Kungsleden, sjöarna och skogarna till midnattssolen och norrskenet. Det kan vara lätt att glömma bort allt det som är så självklart för Kirunaborna. Som den rena luften vi andas, skoterturerna, fisket och naturen. Men att bo i Kiruna är speciellt. Kanske beror det på människorna.

Intresserad av att köpa ny bostadsrätt? Här går vi steg för steg igenom hur ett bostadsköp går till.

Allt du behöver veta om att bo och köpa en nyproducerad bostadsrätt, från amortering till årsavgift.

Boende som köpt en lägenhet berättar om sin flytt. Allt från köpet av första lägenheten till flytten från villan.